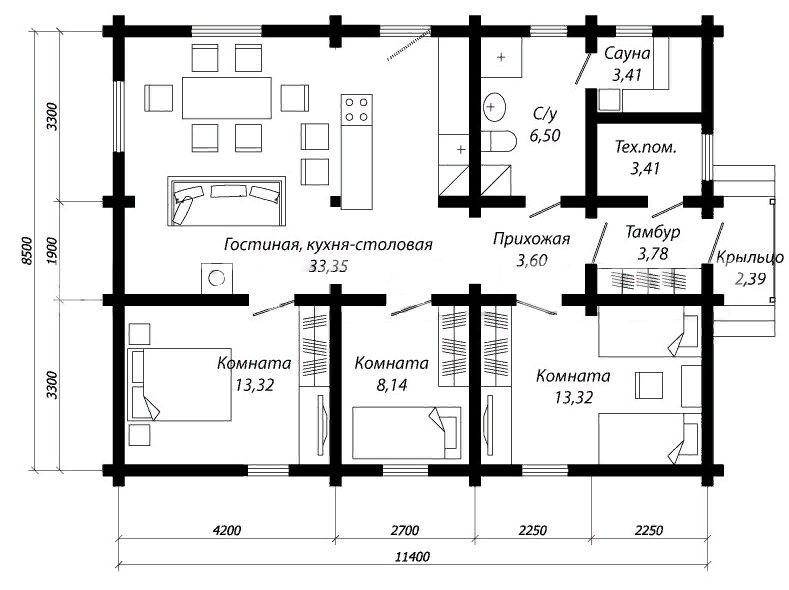
Дом выполнен по типу финского, простой прямоугольной формы с сауной и тремя спальными. Размер дома 8,5х11,4 м. Планировка. Вход выполнен со стороны 8,5 м. Тамбур 3,8 м2 имеет выход в техническое помещение, размер которого 3,4 м2-хорошее решение. При проведении ремонтных работ в тех.помещении шум и посторонние люди не попадают жилую часть дома. Прихожая. Прихожая, площадь которой 3,6, является зоной разграничения и является условно отдельным помещением. Сан.узел. 6,5 м2. Большой и просторный.Из него попадаем в сауну 3,4 м2. в холодное время года можно попариться или просто снять усталость. Есть любители проводить в парилке не только зимние вечера, я в том числе) Регулярно посещать парилку полезно для здоровья. Гостинная-кухня-столовая огромна! Более 33 м2. Имеет 3 окна, просторная и уютная. Спальни расположены по одной стороне, что тоже удобно. Две имеют площади по 13,3 м2. Третья поменьше - 8 м2.Может быть использована под кабинет, или гостевую. На планировке видн
