Добавить в корзинуПозвонить
Найти в Дзене
Николай Projectcore

Как мы проектируем электроснабжение загородного дома

Для нас - это проработанный дизайн-проект с расстановкой мебели, где обозначены выключатели, розетки, установлены высоты их применения.
Первый шаг: согласованный дизайн-проект с мебелью, приборами и и выключателями.
Далее мы собираем данные по потребителям в общую схему питания и принимая во внимание технические условия на питание дома собираем нагрузки и щитовое оборудование.
Шаг второй: исходя из технических условий и собранных нагрузок проектируем электротехническое оборудование ( щиты, группы защиты) Выполняем работу по расчету освещения, подбираем по параметрами светимости, энергопотребления, зональности. Шаг третий: исходя из технических условий и собранных нагрузок проектируем электротехническое оборудование ( щиты, группы защиты)
Если присутствует оборудование с реактивной нагрузкой и высокой пиковой нагрузкой ( насосы, вентиляторы, асинхронные двигатели), то выполняем расчет уравнивания потенциалов. Шаг четвертый: расчет схемы уравнивания потенциалов для аси


Всем привет.

Проектные работы мы начинаем с технического задания.
Для нас - это проработанный дизайн-проект с расстановкой мебели, где обозначены выключатели, розетки, установлены высоты их применения.


Первый шаг: согласованный дизайн-проект с мебелью, приборами и и выключателями.

-2

Далее мы собираем данные по потребителям в общую схему питания и принимая во внимание технические условия на питание дома собираем нагрузки и щитовое оборудование.


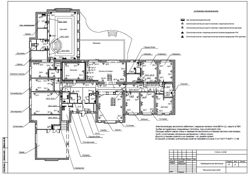
Шаг второй: исходя из технических условий и собранных нагрузок проектируем электротехническое оборудование ( щиты, группы защиты)

-3

Выполняем работу по расчету освещения, подбираем по параметрами светимости, энергопотребления, зональности.

Шаг третий: исходя из технических условий и собранных нагрузок проектируем электротехническое оборудование ( щиты, группы защиты)


-4

Если присутствует оборудование с реактивной нагрузкой и высокой пиковой нагрузкой ( насосы, вентиляторы, асинхронные двигатели), то выполняем расчет уравнивания потенциалов.

Шаг четвертый: расчет схемы уравнивания потенциалов для асинхронных двигателей


-5

Работаем с оптимальной прокладкой трасс, расположить их совместно с другими сетями ( водоснабжение, отопление).


Четвертый шаг: трассировка кабельных трасс, оптимально с другими сетями

-6

Составляем спецификации на закупку материалов и оборудования.
Если без проекта заказать материалы, то монтажники заказывают часто по факту и не всегда целиком. Если заказывать оптом, то можно сэкономить на логистике и оптовой закупке.

Пятый шаг: Составляем спецификацию для заказа материалов и оборудования

Заявки принимаем на info@projectcore.ru