Найти в Дзене
Татьяна Л.

Лофт для девушки студентки

Лофт для девушки студентки Дизайн проект однокомнатной квартиры 44 кв.м.  для девушки студентки. Задача: перепланировать однокомнатную квартиру в 2-х комнатную, выделить спальню с полноценным рабочим местом, а кухню и гостиную сделать общими. Стилевое предпочтение - лофт. Планировка Все не несущие перегородки убрали в результате чего получилось открытое пространство с несущей колонной, балкон утеплили и присоединили. В зоне балкона организовали небольшой кабинет, спальню изолировали спальню, а на остальном пространстве организовали кухню гостиную. Кухня гостиная Бетонный потолок  отшлифовали, отгрунтовали и покрыли лаком, разводка электрики на потолке выполнена с использованием ретро проводки, на стенах частично использовали ретро проводку. Отделка стен - декоративная штукатурка с эффектом бетона и кирпич с заводским клеймами. И королева интерьера - перегородка из стеклоблоков, а еще  роскошные амбарные двери, бетонные подвесы в зоне кухни и шкаф с дверцами - жалюзи. Несмотря на н
Оглавление

Лофт для девушки студентки

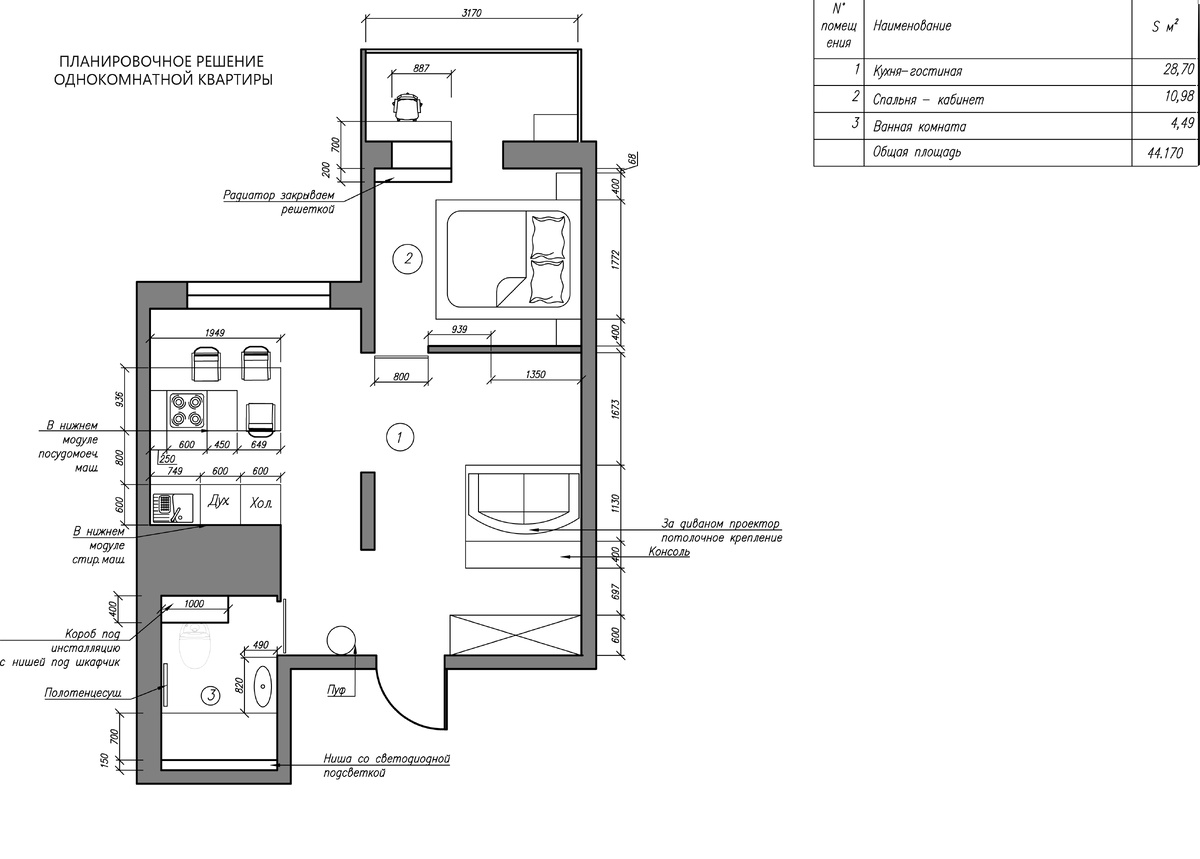
Дизайн проект однокомнатной квартиры 44 кв.м.  для девушки студентки.

Задача: перепланировать однокомнатную квартиру в 2-х комнатную, выделить спальню с полноценным рабочим местом, а кухню и гостиную сделать общими. Стилевое предпочтение - лофт.

Планировка

Все не несущие перегородки убрали в результате чего получилось открытое пространство с несущей колонной, балкон утеплили и присоединили. В зоне балкона организовали небольшой кабинет, спальню изолировали спальню, а на остальном пространстве организовали кухню гостиную.

Кухня гостиная

Бетонный потолок  отшлифовали, отгрунтовали и покрыли лаком, разводка электрики на потолке выполнена с использованием ретро проводки, на стенах частично использовали ретро проводку. Отделка стен - декоративная штукатурка с эффектом бетона и кирпич с заводским клеймами. И королева интерьера - перегородка из стеклоблоков, а еще  роскошные амбарные двери, бетонные подвесы в зоне кухни и шкаф с дверцами - жалюзи. Несмотря на на то, что владелица квартиры юная очаровательная девушка интерьер получился достаточно  брутальным. 

-2

-3
-4
-5
-6
-7

Спальня и кабинет

Спальню отделили от остального пространства стеклоблоками.

-8
-9
-10
-11
-12
-13

Ванная комната

В ванной комнате также в обилие присутствует бетон, от ванной отказались в пользу душа.

-14
-15
-16
-17

Больше фото и больше проектов можно посмотреть на сайте http://tatynalubyanaya.ru/