Найти в Дзене
Шелковый путь к себе

Основы дизайна на Дзен: Координация в спальне

Оглавление

www.desiretoinspire.net
www.desiretoinspire.net

Всем привет!

Продолжаю делиться с вами статьями для "продвинутых" дизайнеров. Если вы уже выросли из догм в стиле "какие обои сюда лучше подходят", "какой светильничек подобрать в прихожую", "эти архитекторы - все рисовальщики, я сделаю все лучше" и готовы оперировать фундаментальными понятиями планировки, конструкции и эргономики в дизайне интерьера - эти статьи для вас.

Сегодня читаем про координацию в спальне.

ххх

Чем отличается эргономичная спальня от неэргономичной?

Например:
Чем отличается эта планировка

-2

И эта?

-3

О принципе разделения направлений движения в спальне:

Рассматриваем первую:

В любой, даже маленькой комнате, нужно предусматривать основные направления движения людей, особенно той, где живет 2 человека. Как правило они двигаются от одного функционального объекта к другому, например, от кровати к шкафу, вдоль шкафа, от двери к кровати, вокруг кровати. Так или иначе, простроив эти направления на вашей планировке, можно всегда увидеть, где направления могут сталкиваться и мешать друг другу.

Например, здесь. Какие могут быть направления?

Один человек (синий) одевается и раскладывает одежду на кровати, двигается вдоль шкафа в процессе сбора, входит в комнату. Второй (оранжевый) входит в комнату, двигается тем же маршрутом вдоль шкафа, обходит кровать.

-4

Пространство, которое мы видим — не дифференцировано, потоки смешаны и сталкиваются. Конечно, это не критично, но довольно нерационально. Перемешаны не только потоки, но и сами личные зоны двух человек.

Наша задача — создать индивидуальные сценарии движения для каждого из двоих хозяев спальни и отточить эргономику.

Как построить эргономичную планировку:

Первое направление — это входное, оно всегда должно оставаться свободным.

-5

2) Ставим наш композиционный центр — кровать так, чтобы подойти было удобно с обеих сторон. Получаем еще два направления: они не противоречат друг другу и не пересекаются.

-6

3) Появляется система хранения — дифференцированная от спальной зоны и подчиненная основному направлению — входному маршруту.

-7

Как видите, количество произвольных маршрутов сократилось, они функционально разделились и перестали сталкиваться.

Двусторонняя система хранения удобно делится на 2 части, таким образом, каждый из двоих человек двигается по своей стороне. Конструкцию перегородки гардеробной можно делать светопрозрачной (не совсем прозрачной, а молочно-прозрачной) и не доводить до потолка, иначе это «съест» площадь комнаты.

Еще один пример грамотной планировки, где направления не противоречат друг другу:

-8

«Буферная» зона

Если ваша спальня не находится в приватном «крыле» спален с выделенным холлом, может возникать психологический дискомфорт от визуальной близости приватной зоны к шумной общественной или общеквартирному холлу. В этом случае, обосновано будет появление буферной зоны — небольшого выгороженного (полувыгороженного) пространства между входом и кроватью. Логичнее всего разместить там гардеробную — и организовать хранение так, чтобы оно не мешало в спальне.

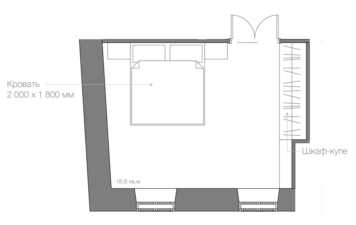
В пример снова приведу эту комнату. Обратите внимание — кровать максимально отнесена от входа.

-9

Потоки движения в общественных зонах

Если комната имеет две и больше дверей (чаще всего это общая комната), то это означает появление транзитных путей. Они не должны пересекать замкнутые зоны (обеденную, коммуникативную).

Представьте, как движется человек в гостиной от одной двери к другой — и учитывайте это направление, чтобы он не ходил между диваном и телевизором, между одним и другим диваном, между кухонным фронтом и обеденным столом. Это серьезно мешает.

Другие статьи из категории Дизайн интерьера - ЗДЕСЬ

Другие статьи из моего цикла Основы дизайна на Дзен:
Пространство и планирование
Обстановка и координация
Свет и цвет