Добавить в корзинуПозвонить
Найти в Дзене
Ростерн

Проект деревянного дома из Лос Анджелеса, как в видеоигре GTA 5.

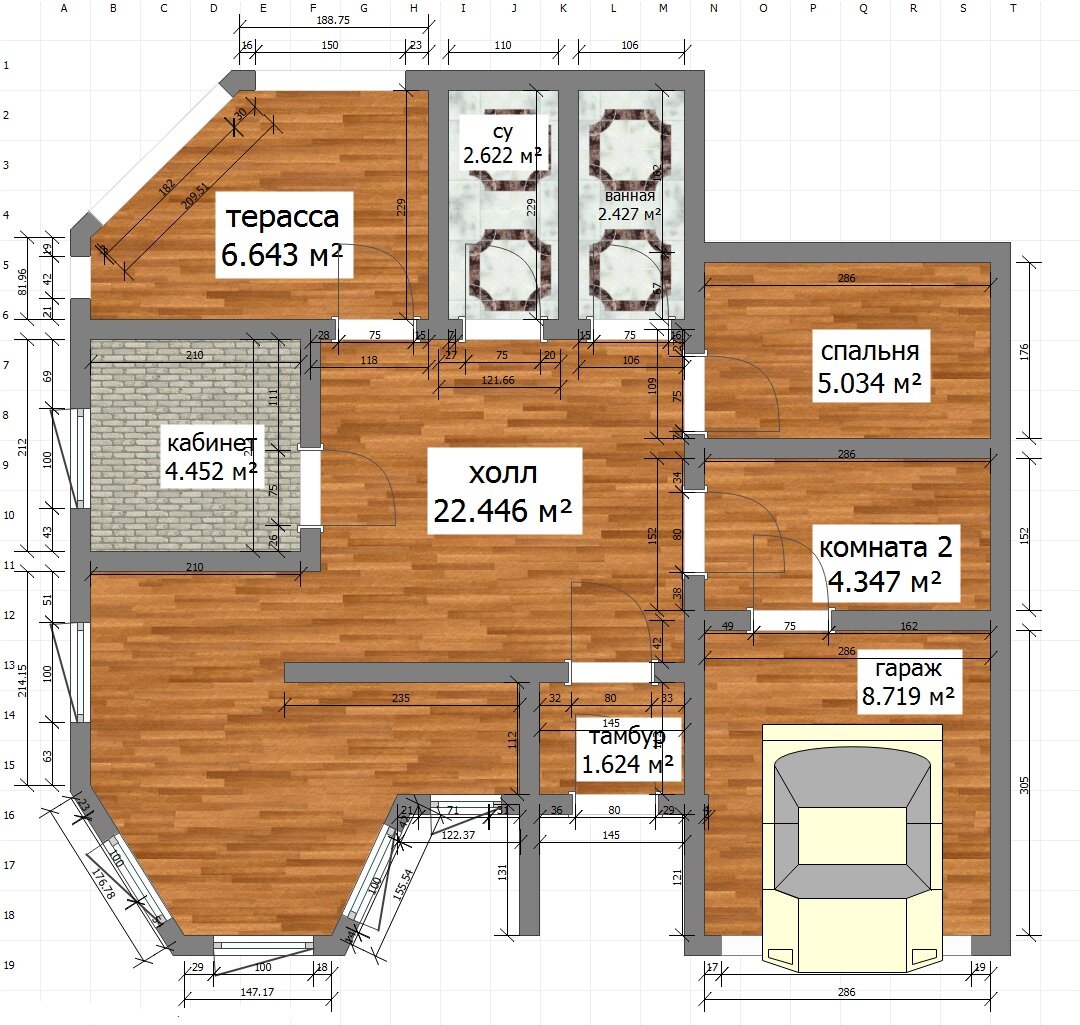
Проектирование деревянных домов и бань не стоит на месте, как многие думают. Архитекторы компании "Ростерн", сделали макет деревянного дома по мотивам всемирно известной игры GTA. Это дом Франклина, в Лос Анджелесе. Перейдем к самому проекту. Деревянный дом, находящийся в Лос Анджелесе уже говорит о том, что местность жаркая и солнцеобильная. Поэтому в деревянном доме много тонированного стекла. Смотрим первый этаж Итак, что мы видим? Мы видим гараж на 1 легковой автомобиль и место для мотоцикла. За входной дверью, мы видим тамбур, где можно раздерется и снять обувь. Далее попадаем в огромный холл, который составляет по площади 22.44 метра квадратных. Здесь просто рай для дизайнеров: можно сделать барную стойку, летнюю кухню, гостиную или например сделать огромную студию. Если смотреть по диагонали плана первого этажа на северо-запад, можно увидеть вторую террасу. Да-да, это тот самый выход к бассейну, с кого открывался вид на Лос Анджелес. В проекте первого этажа заложили раздел

Проектирование деревянных домов и бань не стоит на месте, как многие думают. Архитекторы компании "Ростерн", сделали макет деревянного дома по мотивам всемирно известной игры GTA. Это дом Франклина, в Лос Анджелесе.

Перейдем к самому проекту.

Деревянный дом, находящийся в Лос Анджелесе уже говорит о том, что местность жаркая и солнцеобильная. Поэтому в деревянном доме много тонированного стекла.

Смотрим первый этаж

первый этаж. rostern.ru  РОСКОШНЫЙ ДЕРЕВЯННЫЙ ДОМ В 2 ЭТАЖА Д-810
первый этаж. rostern.ru РОСКОШНЫЙ ДЕРЕВЯННЫЙ ДОМ В 2 ЭТАЖА Д-810

Итак, что мы видим? Мы видим гараж на 1 легковой автомобиль и место для мотоцикла. За входной дверью, мы видим тамбур, где можно раздерется и снять обувь. Далее попадаем в огромный холл, который составляет по площади 22.44 метра квадратных. Здесь просто рай для дизайнеров: можно сделать барную стойку, летнюю кухню, гостиную или например сделать огромную студию. Если смотреть по диагонали плана первого этажа на северо-запад, можно увидеть вторую террасу. Да-да, это тот самый выход к бассейну, с кого открывался вид на Лос Анджелес. В проекте первого этажа заложили раздельную ванную и санитарный узел.

Кстати про реальный ход строительства деревянных домов, можно посмотреть на нашей дзен-статье ниже.

Первый этап строительства деревянного дома в Московской области 9х11

В западной части первого этажа расположен кабинет для работы, а в восточной спальня. Также в ванфлор, имеется техническая зона, которая служит проходной из гаража в дом.

Вот как выглядит сам дом из дерева "Лос Анджелес"

  вид сзади Д-810 .rostern.ru  РОСКОШНЫЙ ДЕРЕВЯННЫЙ ДОМ В 2 ЭТАЖА Д-810
вид сзади Д-810 .rostern.ru РОСКОШНЫЙ ДЕРЕВЯННЫЙ ДОМ В 2 ЭТАЖА Д-810
 вид спереди Д-810. rostern.ru  РОСКОШНЫЙ ДЕРЕВЯННЫЙ ДОМ В 2 ЭТАЖА Д-810
вид спереди Д-810. rostern.ru РОСКОШНЫЙ ДЕРЕВЯННЫЙ ДОМ В 2 ЭТАЖА Д-810
 вид сверху Д-810. rostern.ru  РОСКОШНЫЙ ДЕРЕВЯННЫЙ ДОМ В 2 ЭТАЖА Д-810
вид сверху Д-810. rostern.ru РОСКОШНЫЙ ДЕРЕВЯННЫЙ ДОМ В 2 ЭТАЖА Д-810

Как можете заметить, стекла в доме очень много . Он идеально сочетается с деревом

Полный проект и стоимость строительства вы можете посмотреть тут.

Теперь зайдем в планировку второго этажа.

второй этаж. rostern.ru  РОСКОШНЫЙ ДЕРЕВЯННЫЙ ДОМ В 2 ЭТАЖА Д-810
второй этаж. rostern.ru РОСКОШНЫЙ ДЕРЕВЯННЫЙ ДОМ В 2 ЭТАЖА Д-810

На втором этаже этого современного, деревянного дома из видео игры GTA 5, расположены 7 помещений: 3 комнаты свободного назначения, балкон с видом на город Лос Анджелес, ванную, санитарный узел и огромный холл. Вы наблюдать что в восточной части нет окон. Это сделано намеренно, дабы оставить оригиналы видео игры.

Полный обзор проекта деревянного дома можно в этом видео

Подписывайтесь на наш канал, чтобы не пропустить оригинальных проектов деревянных домов. Наш плюс в том что выпуски выходят каждый день, без сбоев.
Другие наши проекты в дзене можно найти тут