Найти в Дзене

Проект бани из бруса 4 х 4 м + данные для сметы

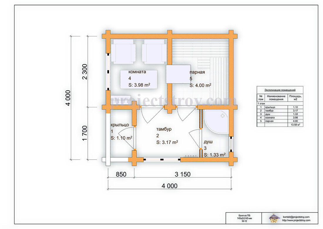
Мечтаете о бане? Есть проект для строительства своими руками Остается подготовить сумму, участок, фундамент и купить профилированный брус 145х(h)145 мм с чашками по проекту или чашкорез и вырезать чаши из бруса на участке))) Показатели для сметного расчета строительства M-12:
-общая площадь по экспликации - 14 кв. м;
-объем бруса 145х(h)145 мм ~12 куб. м (отход~4%);
-пог. длина бруса ~560 м;
-пог. длина фундамент ~24 м;
-стропила - 50х150 мм;
-балки пер. - 100х150 мм;
-площадь кровли и периметр - 40 кв. м и 32 пог. м;
-угол кровли ~22-23 гр.;
-высота 1-го этажа - <2.2 м

Небольшая баня из профилированного бруса 4 х 4 м


Мечтаете о бане? Есть проект для строительства своими руками

Остается подготовить сумму, участок, фундамент и купить профилированный брус 145х(h)145 мм с чашками по проекту или чашкорез и вырезать чаши из бруса на участке)))

Показатели для сметного расчета строительства M-12:
-общая площадь по экспликации - 14 кв. м;
-объем бруса 145х(h)145 мм ~12 куб. м (отход~4%);
-пог. длина бруса ~560 м;
-пог. длина фундамент ~24 м;
-стропила - 50х150 мм;
-балки пер. - 100х150 мм;
-площадь кровли и периметр - 40 кв. м и 32 пог. м;
-угол кровли ~22-23 гр.;
-высота 1-го этажа - <2.2 м

-3