Добавить в корзинуПозвонить
Найти в Дзене
Николай Андреев

Дом, который я бы построил. Как уложится в 100 кв.м.?

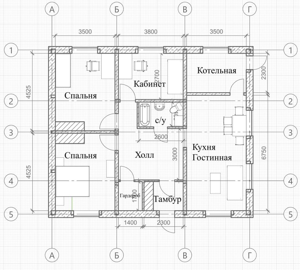
Доброго времени суток, дорого читатель! Сегодня я хотел бы рассказать о планировке одноэтажного дома размерами 10 м на 12 м, которую считаю оптимальной. Немного вводной информации. Дом планируется строить из газобетона толщиной 400 мм, плотностью D500. Плюс дополнительное утепление снаружи 5 см минеральной ваты и, скорее всего, вентилируемый навесной фасад по типу сайдинга. Таким образом получаем получаем достаточно экономичную толщу стены. Фундамент предполагается ленточным с высотой цоколя 300 мм над уровнем земли. Плюс утепленная отмостка. Полы по грунту. Перекрытие потолка деревянное с утеплением 200 мм. Итак, по плану выше видно, что сооружение имеет две несущих стены внутри дома толщиной 200 мм. Так как второй этаж не предусмотрен считаю толщину внутренних стен достаточной, тем более при наличии ж/б включений внутри стен. Внутренними несущими стенами дом делится на 3 области: спальную, распределительную, и общую. В доме имеются 2 просторные спальни и кабинет, из которого впо

Доброго времени суток, дорого читатель!

Сегодня я хотел бы рассказать о планировке одноэтажного дома размерами 10 м на 12 м, которую считаю оптимальной.

Немного вводной информации. Дом планируется строить из газобетона толщиной 400 мм, плотностью D500. Плюс дополнительное утепление снаружи 5 см минеральной ваты и, скорее всего, вентилируемый навесной фасад по типу сайдинга. Таким образом получаем получаем достаточно экономичную толщу стены.

Фундамент предполагается ленточным с высотой цоколя 300 мм над уровнем земли. Плюс утепленная отмостка. Полы по грунту. Перекрытие потолка деревянное с утеплением 200 мм.

Итак, по плану выше видно, что сооружение имеет две несущих стены внутри дома толщиной 200 мм. Так как второй этаж не предусмотрен считаю толщину внутренних стен достаточной, тем более при наличии ж/б включений внутри стен.

Внутренними несущими стенами дом делится на 3 области: спальную, распределительную, и общую.

В доме имеются 2 просторные спальни и кабинет, из которого вполне возможно сделать еще одну спальню, либо гостевую комнату.

Санузел совмещенный, но места в нем более чем достаточно.

Также присутствует тамбур. Неотъемлемая часть дома в суровых условиях России. Через перегородку расположена просторная гардеробная комната, в которой спокойно разместятся не сезонные вещи семьи из 4-х человек.

Мокрые зоны в доме скомпонованы в одной области для уменьшения расстояний протяжки труб водоснабжения и канализации. Размеры Котельной позволяют расположить внутри газовое оборудование и все остальное необходимое оборудование без особых трудностей. Также у котельной имеется собственный выход на улицу, это позволит не таскать грязь внутрь дома в случае каких то ремонтных работ или банальной необходимости принести дрова.

-2

Кровля дома предполагается четырехскатной с выносом 50 см.

В данном проекте еще не предусмотрено крыльцо, но в ближайшем будущем я доработаю этот момент.

Прошу не судить строго, это мой первый проект. Разработан для себя. Начать строить я планирую уже в этом году.

На этом вроде бы все, о чем я хотел рассказать в этой статье! Если у вас есть замечания или предложения то делитесь ими в комментариях!

Если вам понравилось, не поленитесь и поставьте палец вверх, а я в свою очередь продолжу писать свои мысли о стройке!

До скорой встречи...