Добавить в корзинуПозвонить
Найти в Дзене

Образец идеальной планировки 8х9 м с двумя эркерами

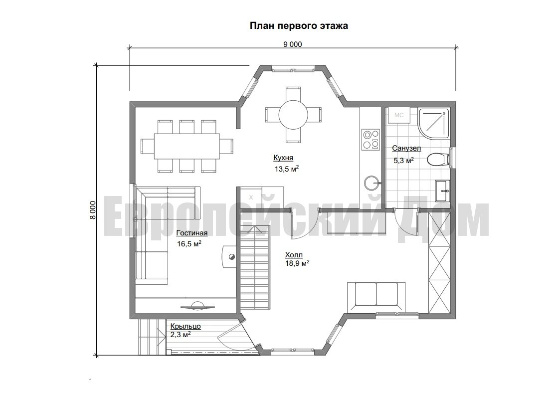
Характеристики проекта: 106,0 м2, полутораэтажный, дом с двускатной и полувальмовой крышей, прямоугольный , с эркером и кабинетом, от 100 до 150 кв.м. Здесь этот проект более подробно с ценой и характеристиками Этот проект интересен со всех сторон: у него запланированы два эркера, которые поднимаются и на второй этаж. Они украшают и экстерьер дома, и внутри создают уютные зоны, кроме того на втором этаже в них получаются помещения с полноценной высотой. На этот дом мы можем отдельно недорого продать проект (6 000) или подробную смету (4 000). Вход в дом организован через небольшое крыльцо. Войдя в дом, мы попадаем в просторный холл площадью 18,9 кв. м. В нем можно предусмотреть удобные шкафы и кушетку. Здесь же расположилась одномаршевая лестница на второй этаж. Площадь холла большая, поэтому при необходимости часть ее можно отдать под техническое помещение. Из холла вход в просторный санузел, его площадь 5,3 кв. м. Здесь прекрасно разместиться душевая кабинка или ванная,

Характеристики проекта: 106,0 м2, полутораэтажный, дом с двускатной и полувальмовой крышей, прямоугольный , с эркером и кабинетом, от 100 до 150 кв.м.

Здесь этот проект более подробно с ценой и характеристиками

Фасад дома. Источник фото: dom-bt.com
Фасад дома. Источник фото: dom-bt.com

Этот проект интересен со всех сторон: у него запланированы два эркера, которые поднимаются и на второй этаж. Они украшают и экстерьер дома, и внутри создают уютные зоны, кроме того на втором этаже в них получаются помещения с полноценной высотой.

На этот дом мы можем отдельно недорого продать проект (6 000) или подробную смету (4 000).

Вход в дом организован через небольшое крыльцо. Войдя в дом, мы попадаем в просторный холл площадью 18,9 кв. м. В нем можно предусмотреть удобные шкафы и кушетку. Здесь же расположилась одномаршевая лестница на второй этаж. Площадь холла большая, поэтому при необходимости часть ее можно отдать под техническое помещение.

Планировка первого этажа. Источник фото: dom-bt.com
Планировка первого этажа. Источник фото: dom-bt.com

Из холла вход в просторный санузел, его площадь 5,3 кв. м. Здесь прекрасно разместиться душевая кабинка или ванная, унитаз, раковина и стиральная машинка.

Здесь подборка отличных похожих домов с эркерами

Из холла мы также попадаем в кухню 13,5 кв. м. По стене, граничащей с санузлом, расположилась рабочая зона, а в эркере удобно поставить обеденный стол.

Планировка второго этажа. Источник фото: dom-bt.com
Планировка второго этажа. Источник фото: dom-bt.com

Из кухни через широкий проем мы проходим в гостиную. Ее площадь 16,5 кв. м. Главное место в гостиной - это диван, а напротив него камин и телевизор. Также здесь можно поставить большой стол для приема гостей.

Поднявшись на второй этаж, мы оказываемся в холле площадью 11,6 кв. м., где можно разместить зону отдыха, поставить полки под домашнюю библиотеку. Из холла три двери ведут в комнаты.

Две спальни площадью по 16,5 кв. м. разместят с комфортом жильцов дома: двуспальная кровать, гардеробы и диван для отдыха. Третья комната площадью 7,8 кв. м. расположилась в эркере. В ней можно разместить кабинет, детскую или комнату для гостей. Эркеры создадут большую зону остекления.

Зеркальный фасад дома. Источник фото: dom-bt.com
Зеркальный фасад дома. Источник фото: dom-bt.com

Проект имеет поднятие стены мансардного этажа, что дает возможность использовать всю площадь.

Здесь подборка отличных похожих домов с эркерами

Если вам интересны какие – либо детали об этом доме или у вас есть мнение как сделать его планировку лучше, ставьте лайк и пишите вопрос в комментариях и мы с удовольствием вам ответим!

Подписывайтесь на наш канал, здесь много интересного про дачу, а также новые проекты загородных домов каждый день!