Добавить в корзинуПозвонить
Найти в Дзене
ДОМИНО СК

Архитектурный проект: что это такое?

В прошлой статье мы рассмотрели зачем вообще нужен проект, а сегодня поговорим более предметно. Любой проект состоит из нескольких разделов, и сегодня мы рассмотрим первый, и пожалуй сложный раздел, а именно архитектурный. Архитектурный раздел проекта часто называют эскизным проектом, хотя многие интернет магазины выдают этот раздел за полноценный проект.Что же включает в себя АР проекта. 1. На первом листе всегда идет ведомость чертежей, а так же общие данные, в соответствии с которыми шла разработка. Обычно заказчик приходит на встречу с архитектором и совместно обсуждают все детали будущего дома: общую площадь, какие помещения необходимы, минимальная площадь, из чего планируется строительство, какие материалы используются. 2. Далее следует привязать дом по сторонам света, а для этого необходим выезд на участок. В результате, составляется генплан участка, отмечаются все строения и деревья, определяется площадь застройки с учетом градостроительных норм. После этого начинается прораб

В прошлой статье мы рассмотрели зачем вообще нужен проект, а сегодня поговорим более предметно. Любой проект состоит из нескольких разделов, и сегодня мы рассмотрим первый, и пожалуй сложный раздел, а именно архитектурный.

Архитектурный раздел проекта часто называют эскизным проектом, хотя многие интернет магазины выдают этот раздел за полноценный проект.Что же включает в себя АР проекта.

1. На первом листе всегда идет ведомость чертежей, а так же общие данные, в соответствии с которыми шла разработка. Обычно заказчик приходит на встречу с архитектором и совместно обсуждают все детали будущего дома: общую площадь, какие помещения необходимы, минимальная площадь, из чего планируется строительство, какие материалы используются.

2. Далее следует привязать дом по сторонам света, а для этого необходим выезд на участок. В результате, составляется генплан участка, отмечаются все строения и деревья, определяется площадь застройки с учетом градостроительных норм.

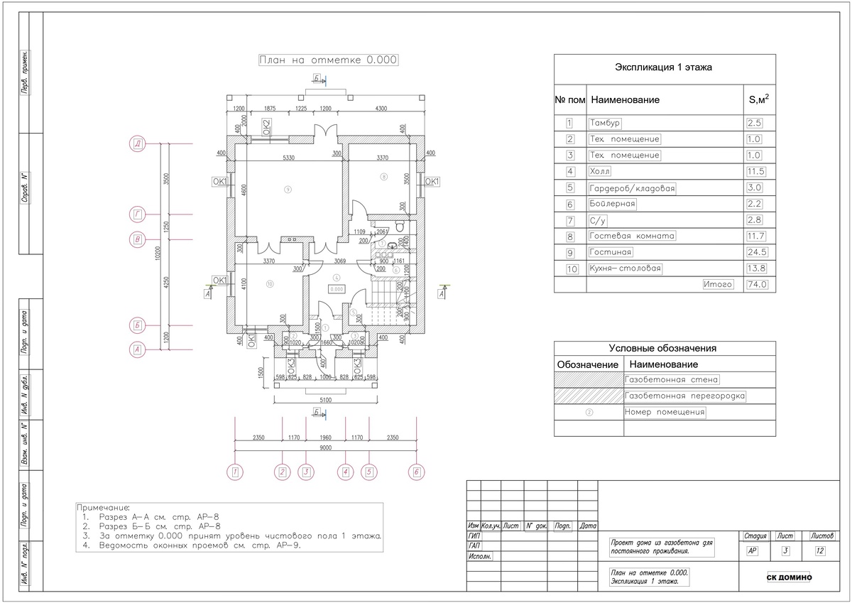
После этого начинается проработка всех внутренних помещений. От того, насколько качественно будет выполнена эта работа зависит итоговая стоимость дома. Обилие длинных узких коридоров увеличивает стоимость дома, но при этом полезная площадь остается малой. Такой дом будет неудобным и не комфортным.

Считается оптимальным, когда разница между общей и жилой площадью различается не более чем на 30%. Листы № 3-4 включают экспликацию помещений с указанием точной площади каждого, а так же сведения о поэтажных площадях.

-2

3. Далее обязательно идет план кровли, с указанием всех углов скатов, а так же сведения об общей площади кровли.

-3

4. Обязательно показываются фасады в осях с высотными отметками. Это позволяет увидеть как будет выглядеть дом снаружи. В нашем архитектурном бюро мы часто пишем подробную схему используемых фасадных материалов, с указанием цветов RAL. Это позволяет получить точную цветопередачу не зависимо от калибровки мониторов и настройки вывода на печать. Покупать колер для штукатурки зная точный цвет намного проще.

-4

5. В зависимости от сложности дома архитектурный проект включает в себя 1-2 разреза,которые показывают расположение перекрытий и несущих стен, а так же содержат сведения о чистовой высоте этажа, пироге стен и полов, устройстве крыши.

-5

6. Следующим листом идет ведомость заполнения оконных и дверных проемов.Этот лист можно отправить в оконную компанию и менеджеры произведут точный расчет и изготовят окна.Это удобно, что не требуется вызывать замерщика,особенно если выезд платный. Можно разослать спецификацию в разные компании и сравнить полученные предложения, не тратя средства на замеры.

-6

7. Последние несколько листов проекта занимают визуализации и аксонометрии помещений, которые помогают увидеть внешний дом.

-7

Мы проектируем дома на основе BIM технологии, создаем трехмерные модели и предлагаем заказчику прогуляться по виртуальному дому еще до момента строительства.

Подписывайтесь на наш канал, в следующей статье мы рассмотрим Конструкторский раздел проекта.