Найти в Дзене
4living

Из однушки – студия в эко-стиле

Люди устают от шума и суеты больших городов. Кто-то сбегает за город, а кто-то предпочитает устраивать воссоединение с природой прямо в своем жилище. Так эко-дизайн прописывается в городских квартирах.  Сведения о квартире: однокомнатная квартира площадью 54 кв. м на 5 этаже 6-этажного дома в п. Ромашково (Московская область). Владельцы квартиры: молодая пара. Пожелания клиентов: создать комфортный интерьер, использовать только натуральные материалы.  Дизайн однокомнатной квартиры-студии: план жилого пространства с расстановкой мебели. Заказчик, яркий неординарный мужчина, ведущий активный образ жизни, категорически не желал дробить свое жилище на отдельные помещения. Поэтому дизайнер решила объединить все зоны в единое открытое пространство. Спальное место обосновалось в гостиной, которая включила в себя и кухню вместе с обеденной зоной. Вторая просьба клиента касалась отделки — использовать только натуральные материалы. В итоге дизайн однокомнатной квартиры-студии был создан на с

Люди устают от шума и суеты больших городов. Кто-то сбегает за город, а кто-то предпочитает устраивать воссоединение с природой прямо в своем жилище. Так эко-дизайн прописывается в городских квартирах. 

Сведения о квартире: однокомнатная квартира площадью 54 кв. м на 5 этаже 6-этажного дома в п. Ромашково (Московская область).

Владельцы квартиры: молодая пара.

Пожелания клиентов: создать комфортный интерьер, использовать только натуральные материалы. 

-2

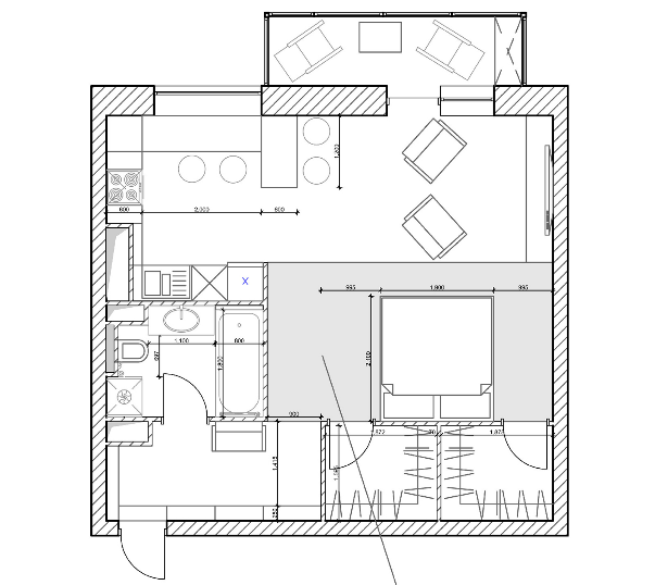
Дизайн однокомнатной квартиры-студии: план жилого пространства с расстановкой мебели.

Заказчик, яркий неординарный мужчина, ведущий активный образ жизни, категорически не желал дробить свое жилище на отдельные помещения. Поэтому дизайнер решила объединить все зоны в единое открытое пространство. Спальное место обосновалось в гостиной, которая включила в себя и кухню вместе с обеденной зоной. Вторая просьба клиента касалась отделки — использовать только натуральные материалы. В итоге дизайн однокомнатной квартиры-студии был создан на сочетании экологически чистых материалов, природной цветовой палитры и большого количества живой растительности в интерьере. 

-3

Главный принцип эко-дизайна — это естественность во всем. Поэтому в прихожей главенствуют природные цвета — древесный и живительный зеленый.

-4

Эко-дизайн дает возможность оценить девственную природную фактуру дерева, не перегруженную узорами и рельефами, «уличное» настроение создают и светильники, формой напоминающие уличные фонари. 

-5

Отсутствие перегородок и дверей делает интерьер просторным, обилие светлых тонов — светлым и воздушным, а зеленый «палисадник» у кровати — уютным и живым. По желанию заказчика в зоне гостиной установили камин, работающий на био-топливе. Лже-дымоход отделан декоративным камнем и перекликается с также оформленным воздуховодом в зоне кухни. 

-6

Зона отдыха на балконе напоминает дачную веранду — мягкие кресла, фонарь и прекрасный вид за окнами в пол.

-7

Панорамное остекление позволило создать отдельную зону отдыха, создание особой «дачной» атмосферы довершают цветы, выставленные на балкон.

-8

Освещение в санузле осуществляется с помощью встроенной подсветки между деревянными рейками на потолке.

-9

Стены в ванной комнате отделаны плиткой, имитирующей известняк, раковина выточена из монолитного куска камня и напоминает своим видом расколотый орех.