Найти в Дзене
В пути

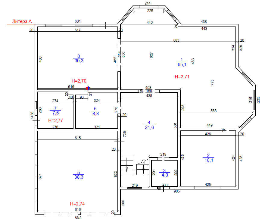
Выбирая проект, продумайте планировки.

Выбирая проект своего будущего дома, учитывайте следующее: 1. Представьте в деталях как вы будете реализовывать задуманное. Часто, красиво только на бумаге. Учитывайте такое понятие как "строительные размеры материалов". Например гостиная 8 на 8 метров заставляет застройщика отказаться от деревянных перекрытий, в пользу ж/б плит, что приводит к выбору более мощных и тяжелых стен, что приводит к выбору более дорогого фундамента. 2. Инсоляция. При выборе планировок, старайтесь разместить будущие помещения в которых будете проводить больше времени с южной стороны. Такими помещениями часто бывают гостиная с кухней. 3. Постарайтесь разместить рядом кухню, ванную, туалет. Выделите место под вертикальный стояк для инженерных сетей. Такое соседство сэкономит вам средства при строительстве. 4. Правильно определите местоположение дома на участке с учетом расположения скважины, септика/биостанции, подъезда к дому с улицы. 5. Спальные комнаты планируйте как можно меньшей площади. Уверяю в своем до
Продуманные планировки позволят вам сэкономить на устройстве инженерных сетей.
Продуманные планировки позволят вам сэкономить на устройстве инженерных сетей.

Выбирая проект своего будущего дома, учитывайте следующее:

1. Представьте в деталях как вы будете реализовывать задуманное. Часто, красиво только на бумаге. Учитывайте такое понятие как "строительные размеры материалов". Например гостиная 8 на 8 метров заставляет застройщика отказаться от деревянных перекрытий, в пользу ж/б плит, что приводит к выбору более мощных и тяжелых стен, что приводит к выбору более дорогого фундамента.

2. Инсоляция. При выборе планировок, старайтесь разместить будущие помещения в которых будете проводить больше времени с южной стороны. Такими помещениями часто бывают гостиная с кухней.

3. Постарайтесь разместить рядом кухню, ванную, туалет. Выделите место под вертикальный стояк для инженерных сетей. Такое соседство сэкономит вам средства при строительстве.

4. Правильно определите местоположение дома на участке с учетом расположения скважины, септика/биостанции, подъезда к дому с улицы.

5. Спальные комнаты планируйте как можно меньшей площади. Уверяю в своем доме в спальнях только спят, проводя основное время в гостиной/зале и на кухне. В проектах скандинавских стран часто можно заметить, что площади спален не превышают площадь больших кроватей.

6. Если позволяет площадь участка, умерьте амбиции, откажитесь от второго и последующих этажей. Опыт показывает, что жить в одноэтажном доме в разы комфортней. По крайней мере, домочадцев видеть будете чаще.

Выбирая проект, оценивайте свои возможности. Помните себестоимость строительства "под ключ" составит около 20 000 руб./кв. м. Стоимость самого проекта, как правило 5-10% от сметы на строительство. Поэтому "нарисовать" проект самому экономически оправдано.

Знайте, какой бы проект или листочек с планировками в результате ваших умозаключений не получился, строительство по нему вашего дома станет лучшим (не считая воспитания детей, конечно) жизненным опытом.