Найти в Дзене
Илья Александров

Дом за миллион: миф или реальность? Давайте разбираться.

Постоянно сталкиваюсь со статьями и видео других авторов о том, что можно построить дом за миллион рублей, а некоторые утверждают, что можно дешевле. И до сих пор не могу понять, для чего они себя обманывают и других пытаются убедить, что можно построить дешево. Далее пойдет речь о домах для ПМЖ. Для начала определимся что должно быть в доме, чтобы в нем можно было жить с минимальным комфортом: У дома должны быть стены, пол, кровля, окна-двери, вода, канализация, электричество, причем вода и канализация должна быть в доме. Так же дом должен обладать радом характеристик для комфортной жизни, и, помимо размера, должен быть теплым, с хорошей звукоизоляцией. Рассмотрим на примере дома для 4-х человек. В 100м2 можно неплохо уместиться. Уже давно посчитано, что для дома до 120м2 оптимальнее строить в 1этаж. На картинке выше пример неплохого одноэтажного дома без изысков. У кого бюджет пожимает рекомендую рассмотреть нечто подобное. Начнем издалека. В любом доме должна быть вода. Над этим

Постоянно сталкиваюсь со статьями и видео других авторов о том, что можно построить дом за миллион рублей, а некоторые утверждают, что можно дешевле.

И до сих пор не могу понять, для чего они себя обманывают и других пытаются убедить, что можно построить дешево.

Далее пойдет речь о домах для ПМЖ.

Для начала определимся что должно быть в доме, чтобы в нем можно было жить с минимальным комфортом:

У дома должны быть стены, пол, кровля, окна-двери, вода, канализация, электричество, причем вода и канализация должна быть в доме.

Так же дом должен обладать радом характеристик для комфортной жизни, и, помимо размера, должен быть теплым, с хорошей звукоизоляцией.

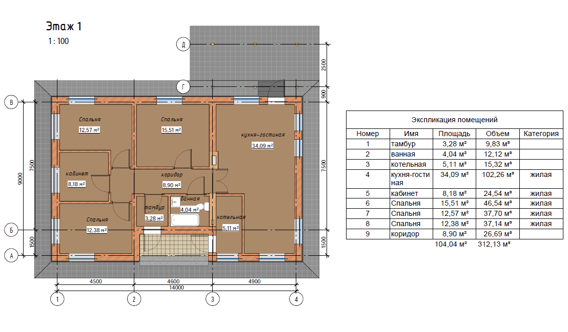
Рассмотрим на примере дома для 4-х человек. В 100м2 можно неплохо уместиться.

В рассматриваемом доме можно убрать кабинет и сделать спальни чуть больше.
В рассматриваемом доме можно убрать кабинет и сделать спальни чуть больше.

Уже давно посчитано, что для дома до 120м2 оптимальнее строить в 1этаж. На картинке выше пример неплохого одноэтажного дома без изысков. У кого бюджет пожимает рекомендую рассмотреть нечто подобное.

Начнем издалека.

В любом доме должна быть вода. Над этим вопросом стоит задуматься до начала стройки.

Даже вырыть колодец и завести воду в дом будет стоить от 30т.р. с насосной станцией, добавим обвязку, фильтры, разводку по дому и уже около 50т.р. + бойлер на семью из 4х надо не меньше 150л. (имея газ немного проще с этим и хватит меньшего объема) – еще тысяч 12-15.

Это не говоря уже об обустройстве скважины метров на 60-70 со стоимостью бурения и труб около 2-2,2т.р. за м.п. + кессон или адаптер + скважинный насос, который явно дороже простенькой насосной станции. И остальные «мелочи», которые выливаются в конечном счете в приличную сумму.

Канализация. Раз уж пользуемся водой, то надо эту воду куда-то девать. Правильно сделанный септик из колец в зависимости от условий выходит от 40т.р., а средняя цена правильно сделанной канализации от 100т.р. Причем не зависит от региона и размера дома – зависит от потребления конкретной семьи.

На этом этапе уже имеем от 100т.р. затрат и это еще не начали строить.

Проект.

Можно конечно сэкономить, но тогда в дальнейшем можно заплатить больше. Без опыта лучше строить по проекту. От 15т.р. – за типовой проект + проект фундамента, но обычно в типовых проектах закладывают плиту или ленту, что подходит для 90% условий. Строить по проекту или нет – личное дело каждого.

Фасад.
Фасад.

Фундамент.

Будем рассматривать эти 90% где подходят как плита, так и лента. По своему опыту скажу, что самым оптимальным будет УШП – и фундамент и отопление, и готовый пол + коммуникации. При одинаковых затратах на материалы по сравнению с лентой и полами по грунту, но большая скорость работ. Для примера, под рассматриваемый выше дом УШП можно собрать за 7-10 дней вдвоем.

Всякие сваи и деревянные перекрытия я не рассматриваю вообще, т.к. при деревянном перекрытии плохая звукоизоляция и он «барабанит» - мои личные ощущения, да и как-то не серьезно делать деревянными перекрытия для дома ПМЖ, тем более бюджетно все равно не получится.

У меня получилось 3700р./м2 моего фундамента. Возьмем 4000р./м2 – только материал, получим 504т.р. за готовой фундамент, пол + отопление, останется только котел подключить. Работы стоят от 2т.р./м2 или 252т.р.

Уже от 600т.р. – и еще стены не начали.

Пример расчета фундамента.
Пример расчета фундамента.

Стены.

Возьму ГБ, т.к. мне будет проще так считать, из других материалов будет +/- схоже.

Периметр дома 46м, высота стен 3м – для внешних стен толщиной 400мм потребуется около 50м3 блоков + на внутренние стены и перегородки уйдет еще около 25м3, Итого 75м3 блоков со стоимостью 3200 р./м3 = 240т.р. + доставка и разгрузка еще 30т.р. + армопояс – еще 30т.р. + клей 15т.р.. Работы по кладке стоят 1500 руб., или 112,5т.р.

Всего на стены уйдет на материал + работа – 315+112,5=427,5 т.р.

Отделку считать не буду, т.к. кому хватит покраски, кто будет штукатурить или кирпичом заложит, а кто так оставит.

Визуализация дома.
Визуализация дома.

Окна.

Для такого дома выйдет примерно 16м2 окон, можно больше. По ценам, за которые мне делали выйдут примерно в 100т.р. с монтажом.

Дверь нужна не китайская, а, чтобы не промерзала. Такая стоит около 40т.р. с установкой и доставкой.

Перекрытие с подшивкой и утеплением выйдет от 100т.р. Работа стоит от 500р./м2. Или от 50т.р.

Кровля.

Нормальное кровельное покрытие выходит от 450р/м2 + водосточка и прочие доборы, а также трубы-дымоходы – еще столько же.

Стропилка выйдет примерно в 100т.р. Работа по кровле – от 1500р./м2.

Площадь кровли для нашего дома составит примерно 190м2.

Получаем на кровлю нужно материала на примерно 300т.р. + работы выдут от 285т.р.

Стропильная система.
Стропильная система.

Разводка труб канализации и водопровода была учтена в фундаменте.

Электрика выйдет от 50т.р. – без наворотов, с простыми розетками.

Провести свет на участок - еще от 20 т.р.

Поставить простой котел – от 20т.р.

Получаем, что за коробку дома с минимальными условиями для проживания потребуется 1545т.р. – только на материалы, если самому контролировать процесс, то работы выйдут еще от 750т.р. Можно еще процентов 10 заложить на транспортные расходы, доставки + 10% на непредвиденные расходы – материал может немного подорожать или еще что.

Это без внутренней и внешней отделки, но уже в доме есть свет, вода, отопление –жить можно).

Расчет грубый, но порядок цифр верный. Сумма строительства от региона сильно не изменится, без потери качества не получится сильно дешевле сделать.

Можно сделать вывод, что дом за миллион построить не реально - только коробку без окон и дверей, на другом фундаменте и т.д., но потом все равно придется вкладывать недостающую разницу. Я называю это кашей из топора.

Вещи надо называть своими именами - строим дом, значит считаем за траты на дом, коробку - затраты на коробку.

Делайте правильные выводы, стройте с умом.

Ставьте большой палец вверх 👍🏻 | Подписывайтесь | Делитесь в соц сетях.