Найти в Дзене

Загородный дом 270 м2 за 4 647 600 ₽

Строительство дома по проекту CP-92-02 в стиле шале Проект двух этажного дома рассчитан для проживания 3 человек. Данный дом площадью 270 м2. План первого этажа На первом этаже располагается гараж, который вмещает одну машину. Просторная гостиная совмещена с кухней и столовой, но разделает перегородкой и уровнем пола, это визуально разделяет комнату, но и увеличивает пространство. План второго этажа На втором этаже находятся две спальни для взрослых и две детские комнаты, также, есть место для тренажерного зала, где можно поставить несколько тренажеров. Данный дом вы можете построить себе по
Австрийской технологии монолитного строительства - Uber Bau -
Всего за 4 647 600 ₽ Ознакомиться подробнее с домом можно здесь -->> Кому понравился дом ставьте 👍 или пишите комментарий как бы Вы адаптировали его под себя, что нравится, а что нет. Подписывайтесь на наш Канал, Вас ждет много интересного!!! Ваш www.Ремстройсервис.Москва
Оглавление
ПРОЕКТ ДОМА № CP-92-02
ПРОЕКТ ДОМА № CP-92-02

Строительство дома по проекту CP-92-02 в стиле шале

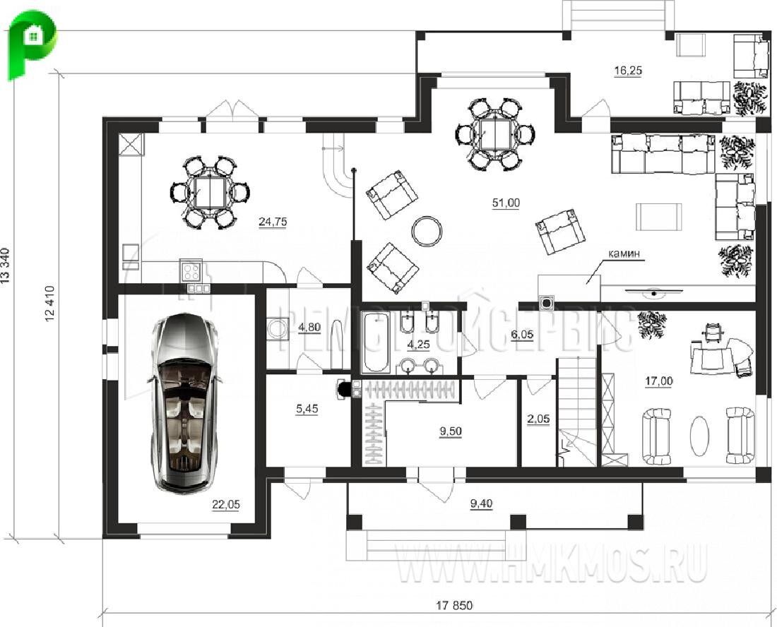
Проект двух этажного дома рассчитан для проживания 3 человек. Данный дом площадью 270 м2.

План первого этажа

На первом этаже располагается гараж, который вмещает одну машину. Просторная гостиная совмещена с кухней и столовой, но разделает перегородкой и уровнем пола, это визуально разделяет комнату, но и увеличивает пространство.

-2

План второго этажа

На втором этаже находятся две спальни для взрослых и две детские комнаты, также, есть место для тренажерного зала, где можно поставить несколько тренажеров.

-3

Данный дом вы можете построить себе по
Австрийской технологии монолитного строительства - Uber Bau -
Всего за 4 647 600

Ознакомиться подробнее с домом можно здесь -->>

Кому понравился дом ставьте 👍 или пишите комментарий как бы Вы адаптировали его под себя, что нравится, а что нет.

Подписывайтесь на наш Канал, Вас ждет много интересного!!!

Ваш www.Ремстройсервис.Москва