Найти в Дзене
Норма ПБ

ИПДЛ (линейный) от 5 до 70 метров

Доброго времени суток всем постоянным Читателям нашего сайта и коллегам по цеху! Тема нашей статьи сегодня – возможность установки ИПДЛ (линейный) на небольших расстояниях от излучателя до отражателя. Действительно, вопросов именно по этой теме нам задают много и часто, так как достаточно часто возникает проблема защиты помещений с высокими потолками, но небольших габаритов по длине и ширине помещения. Особенно это актуально для помещений, к перекрытиям которых проблематично добраться даже для установки пожарных извещателей, не говоря уже о регулярном техническом обслуживании.           Например, в помещении установлены какие либо производственные станки или стеллажи или еще что то, что не позволяет соорудить леса или установить передвижную туру для того чтобы добраться до пожарного извещателя, установленного на перекрытии или сам потолок является существующим натяжным потолком, на который не прилепишь пожарный извещатель. К нам не так давно обратился проектировщик, который раз

Доброго времени суток всем постоянным Читателям нашего сайта и коллегам по цеху! Тема нашей статьи сегодня – возможность установки ИПДЛ (линейный) на небольших расстояниях от излучателя до отражателя. Действительно, вопросов именно по этой теме нам задают много и часто, так как достаточно часто возникает проблема защиты помещений с высокими потолками, но небольших габаритов по длине и ширине помещения. Особенно это актуально для помещений, к перекрытиям которых проблематично добраться даже для установки пожарных извещателей, не говоря уже о регулярном техническом обслуживании.

          Например, в помещении установлены какие либо производственные станки или стеллажи или еще что то, что не позволяет соорудить леса или установить передвижную туру для того чтобы добраться до пожарного извещателя, установленного на перекрытии или сам потолок является существующим натяжным потолком, на который не прилепишь пожарный извещатель. К нам не так давно обратился проектировщик, который разрабатывал  решения для защиты системой пожарной сигнализации здания библиотеки  и столкнулся с задачей установки пожарных извещателей в помещении габаритами 6 х 6 метров и высотой потолков около 8 метров, на перекрытии – натяжной потолок. Решение очевидно – если на потолок нельзя установить пожарные извещатели, то надо установить их на стенах. На стенах можно установить извещатели пламени (световые), но из-за установленных стеллажей с книгами затененные площади помещения не позволяют контролировать все участки площади этого помещения. Обычные дымовые извещатели ИПДЛ (линейный) типа ИПДЛ-Д-II/4P или ИПДЛ-52 также установить не получается из-за нижней контролируемой границы – по паспорту минимальное контролируемое расстояние между излучателем и приемником (отражателем) – 8 метров, а в помещении всего 6 метров. Проектировщик попросил что ни будь посоветовать для решения вопроса в соответствии с нормами. Мы рекомендовали рассмотреть два варианта решения его проблемы:

Вариант 1(самый простой и бюджетный).

В подобном случае можно установить просто обычные точечные дымовые пожарные извещатели на стенах, в соответствии с СП5.13130-2009, п. 13.3.4. Подробнее о размещении точечных пожарных извещателей на стене Вы можете прочитать в статье на нашем сайте, пройдя по ссылке https://www.norma-pb.ru/p753/ .

13.3.4 Точечные пожарные извещатели следует устанавливать под перекрытием.

При невозможности установки пожарных извещателей непосредственно на перекрытии допускается их установка на тросах, а также стенах, колоннах и других несущих строительных конструкциях.

При установке точечных пожарных извещателей на стенах их следует размещать на расстоянии не менее 0,5 м от угла и на расстоянии от перекрытия в соответствии с приложением П.

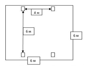
В соответствии с данным пунктом, расставляем пожарные извещатели на противоположных стенах, соблюдая расстояние между извещателями вдоль стены не более 4 метра. Получится следующая схема:

В этом случае, в соответствии с п. 14.1 СП5.13130-2009, а также примечанию к данному пункту соблюдается половинное расстояние между пожарными извещателями по одной из осей – 4 метра (длина или ширина), а по другой оси можно оставить без изменения – 8 метров (в данном случае 6 метров). Приведем пункт полностью:

14.1 Формирование сигналов на управление в автоматическом режиме системами оповещения, установками пожаротушения, оборудованием противодымной защиты, общеобменной вентиляции, кондиционирования, инженерным оборудованием объекта, а также иными исполнительными устройствами систем, участвующих в обеспечении пожарной безопасности, должно осуществляться  от двух пожарных извещателей, включенных по логической схеме «И»,  за время в соответствии с разделом 17, с учетом инерционности этих систем. Расстановка извещателей  в  этом случае должна производиться на расстоянии не более половины нормативного, определяемого по таблицам 13.3 – 13.6 соответственно.

Примечание – Расстояние не более половины Нормативного расстояние, определяемого по таблицам 13.3 -13.6, принимают между извещателями, расположенными вдоль стен, а также по длине или ширине помещения (Х или У). Расстояние от извещателя до стены определяется по таблицам 13.3 – 13.6 без сокращения.

         Как видите, решение простое и вполне соответствует действующим нормативам. Однако, бывают случаи, когда без установки ИПДЛ (линейный) никак не обойтись. Например, если высота помещения более 12 метров, при сохранении всех прочих параметров по габаритам – например колокольня в церковном храме. В этом случае, остается устанавливать или ИПДЛ (линейный)  или ИПДА (извещатель пожарный дымовой аспирационный). Предлагаем следующее решение.

Вариант 2 (дорогой, но простой)

           Как уже сказано выше, в обсуждаемом случае, можно установить или ИПДЛ (линейный)  или ИПДА (извещатель пожарный дымовой аспирационный). Про рекомендации установки ИПДА Вы можете прочитать на нашем сайте, пройдя по ссылке https://www.norma-pb.ru/aspiracionnye-pozharnye-izveshhateli/ (повторяться не будем). Поскольку статья у нас про ИПДЛ (линейный) то дадим конкретные рекомендации по ИПДЛ. Надо сказать, что существуют ИПДЛ (линейный) у которых нижняя граница менее 8 метров. Приведем в пример один из них – производство SystemSensor, модель 6500RS(ИП212-126). Границы извещателя – от 5 метров до 70 метров (можно больше при применении дополнительного аксессуара), степень защиты оболочки – IP54 (можно устанавливать в производственных помещениях), корректная температура воздушной среды – от 30 градусов мороза до 55 градусов тепла, напряжение питания – 15-32 вольта. В общем неплохой пожарный извещатель, только дорогое удовольствие – в пределах 30 тысяч стоит комплект, но если другого выхода нет, то можно использовать. Кстати сказать, комплект ИПДА также достаточно дорогой, так что стоимость будет вполне соизмерима. Однако установка и наладка ИПДЛ (линейный) гораздо проще чем монтаж ИПДА со всеми комплектными трубопроводами, котрые необходимо отрезать точно по размерам, клеить и потом монтировать на стены. Техническую документацию на извещатель можно скачать у нас на сайте пройдя по ссылке ipdl .

                   Поскольку поставленную задачу о примерах вариантов защиты узких и высоких помещений можно считать выполненной, так как варианты приведены выше, статью «ИПДЛ (линейный) от 5 до 70 метров» заканчиваю.

          Буду рад, если в данной статье Вы почерпнули для себя какую то полезную информацию. Копировать статью для размещения на иных ресурсах в интернете разрешаю только при условии сохранении всех нижеперечисленных ссылок на наш сайт, предлагаю Вам ознакомиться с другими статьями нашего блога по ссылкам:

https://www.norma-pb.ru/rezhim-raboty-svetovyx-opoveshhatelej/ - режим работы световых оповещателей

https://www.norma-pb.ru/dva-evakuacionnogo-vyxoda-iz-pomeshheniya-torgovogo-zala/ - два эвакуационных выхода из помещения торгового зала

https://www.norma-pb.ru/pozharnaya-signalizaciya-ili-pozharotushenie-na-obekte/ - пожарная сигнализация или пожаротушение на объекте?

https://www.norma-pb.ru/sistemy-avtomaticheskogo-pozharotusheniya-obzor-variantov/ - системы автоматического пожаротушения – обзор вариантов

https://www.norma-pb.ru/mnogotochechnyj-teplovoj-pozharnyj-izveshhatel/ - многоточечный пожарный извещатель

https://www.norma-pb.ru/p870/ – сколько пожарных извещателей ставить в отсеке ограниченном балками более 0,4 метра?

https://www.norma-pb.ru/p845/ – кабельные проходки «Стоп-огонь»

https://www.norma-pb.ru/p753/ – пожарный извещатель на стене

https://www.norma-pb.ru/p717/ – системы дымоудаления, компенсация

https://www.norma-pb.ru/p655/ – исходные данные для проектирования

https://www.norma-pb.ru/p574/ – отключение вентиляции при пожаре

Наш сайт -

О сайте (нормы пожарной безопасности) - Норма П.Б.

www.norma-pb.ru

Мы в Одноклассниках – https://ok.ru/group/52452917248157

Мы на Майле – https://my.mail.ru/community/norma-pb/

Мы в Facеbook - https://www.facebook.com/НОРМА-ПБ-460063777515374/timeline/

Наша группа В Контакте – https://vk.com/club103541242

-2