Найти в Дзене

Шикарный двухэтажный Дом по доступной цене

Шикарный проект дома, с просторными помещениями, гаражом, террасой и балконом. Двухэтажный дом с гаражом и террасой Данный стиль дома очень популярный. И это не просто так. Такой дом очень эффектный, красивый, можно выполнить комфортную и интересное планировочное решение. План первого этажа Посмотрите какое большое открытое пространство получается. 120 м2 для раздолья - это очень круто, нет ощущений сжатости или маленького пространства в каждой зоне, очень комфортные ощущения. Красивые эркер где можно разместить зону дивана. План второго этажа На втором этаже каждому хозяину понравится шикарная хозяйская спальная комната. Очень шикарная площадь и есть буквально все, гардероб, ванная, эркер, балкон... Так же еще есть большие 3 спальные комнаты. Стоимость реализации дома Данный дом вы можете построить себе всего за 7 600 000 ₽
Это полностью коробка с внешней отделкой под ключ. Больше фото по проекту можно посмотреть здесь, и не только это -
Проект дома T-06 Та же смотрите больше
Оглавление

Шикарный проект дома, с просторными помещениями, гаражом, террасой и балконом.

ПРОЕКТ ДОМА № T-06
ПРОЕКТ ДОМА № T-06

Двухэтажный дом с гаражом и террасой

Данный стиль дома очень популярный. И это не просто так. Такой дом очень эффектный, красивый, можно выполнить комфортную и интересное планировочное решение.

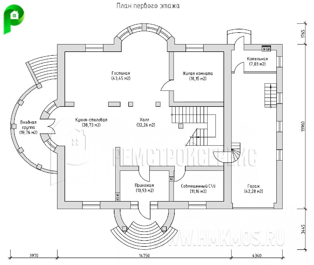
План первого этажа

Посмотрите какое большое открытое пространство получается. 120 м2 для раздолья - это очень круто, нет ощущений сжатости или маленького пространства в каждой зоне, очень комфортные ощущения. Красивые эркер где можно разместить зону дивана.

-2

План второго этажа

На втором этаже каждому хозяину понравится шикарная хозяйская спальная комната. Очень шикарная площадь и есть буквально все, гардероб, ванная, эркер, балкон... Так же еще есть большие 3 спальные комнаты.

-3

Стоимость реализации дома

Данный дом вы можете построить себе всего за 7 600 000
Это полностью коробка с внешней отделкой под ключ.

Больше фото по проекту можно посмотреть здесь, и не только это -
Проект дома T-06

Та же смотрите больше интересного, не совершайте ошибок, разные ЛайФХаКи, плюсы и минусы на нашем канале.

Ваш www.ремстройсервис.москва

-4