Найти в Дзене

Загородный двухэтажный дом с цокольным этажем 9 230 368 ₽

Двухэтажный дом H-1242 в современном стиле Проект двух этажного дома рассчитан для проживания 3-5 семей. Площадь дома составляет 463 м2. План цокольного этажа На цокольном этаже располагается большой водный комплекс с сауной где можно провести время после работы в спортивном зале. План первого этажа На первом этаже располагается гараж где можно разместить два автомобиля. Кухня совмещенная со столовой имеет выход на небольшую террасу, где можно в теплое время проводить чаепитие или устроить зону барбекю. План второго этажа На втором этаже находятся три комфортные спальни, одна просторная ванная комната и один небольшой кабинет для работы. Посмотреть подробнее проект H-1242 можно здесь -->> Строительство дома по проекту H-1242 Стоимость строительства теплого контура (коробка с внешней отделкой) данного дома Вам обойдется 9 230 368 ₽
Если кто-то заинтересовался и желает данный проект реализовать на своем участке Вы можете получить консультацию у наших специалистов по телефо
Оглавление
ПРОЕКТ ДОМА № H-1242
ПРОЕКТ ДОМА № H-1242

Двухэтажный дом H-1242 в современном стиле

Проект двух этажного дома рассчитан для проживания 3-5 семей. Площадь дома составляет 463 м2.

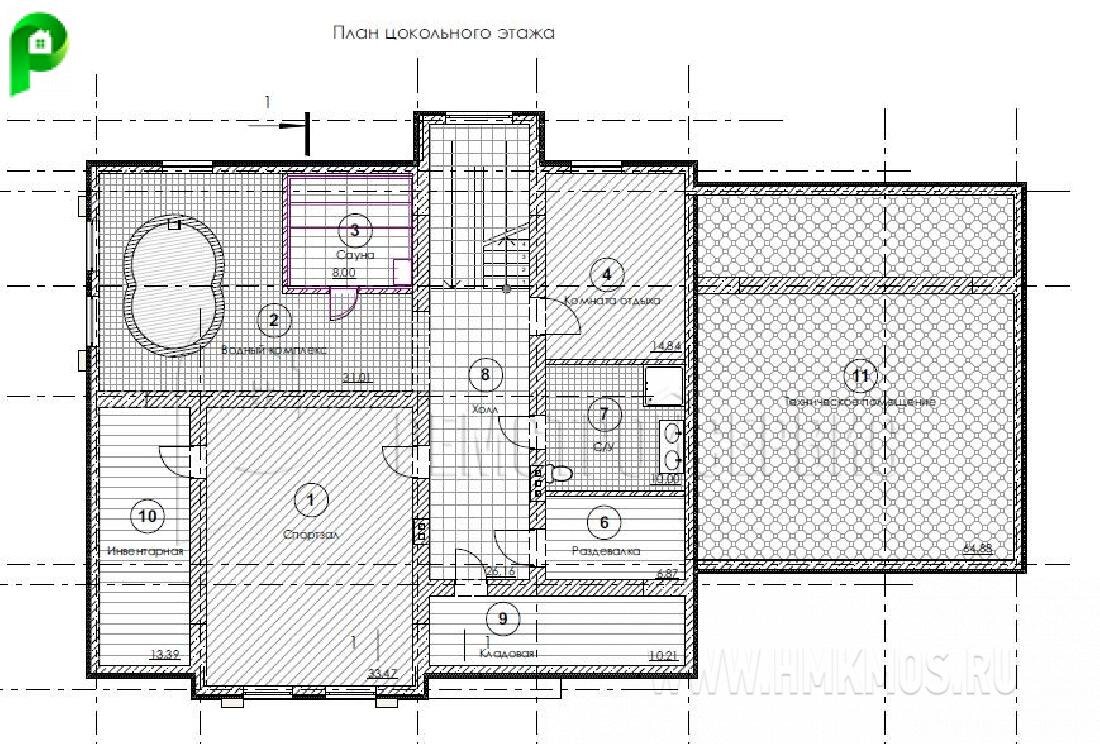
План цокольного этажа

-2

На цокольном этаже располагается большой водный комплекс с сауной где можно провести время после работы в спортивном зале.

План первого этажа

-3

На первом этаже располагается гараж где можно разместить два автомобиля. Кухня совмещенная со столовой имеет выход на небольшую террасу, где можно в теплое время проводить чаепитие или устроить зону барбекю.

План второго этажа

На втором этаже находятся три комфортные спальни, одна просторная ванная комната и один небольшой кабинет для работы.

-4

Посмотреть подробнее проект H-1242 можно здесь -->>

Строительство дома по проекту H-1242

Стоимость строительства теплого контура (коробка с внешней отделкой) данного дома Вам обойдется 9 230 368
Если кто-то заинтересовался и желает данный проект реализовать на своем участке Вы можете получить консультацию у наших специалистов по телефону или оставьте заявку на нашем сайте.

Ваш www.Ремстройсервис.Москва