Найти в Дзене

Проект Дуплекс в Дворцовом стиле 330 кв.м.

Проект дома H-1021 двухэтажный с мансардой Проект двух этажного дома рассчитан для проживания 2-ух семей. Данный дом площадью 331 м2. План первого этажа На первом этаже имеется два отдельных входа для двух семей. В каждой части дома располагается просторная гостиная совмещенная с кухней и просторная ванная комната. План второго этажа На втором этаже находятся в каждом крыле по две просторные спальни. В левом крыле есть большая гардеробная, а в правом просторный кабинет для работы. Посмотреть подробнее проект H-1021 можно здесь -->> Строительство дома по проекту H-1021 Стоимость строительства теплого контура (коробка с внешней отделкой) данного дома Вам обойдется 5 783 232 ₽
Если кто-то заинтересовался и желает данный проект реализовать на своем участке Вы можете получить консультацию у наших специалистов по телефону или оставьте заявку на нашем сайте.
Ваш www.Ремстройсервис.Москва
Оглавление
ПРОЕКТ ДОМА № H-1021
ПРОЕКТ ДОМА № H-1021

Проект дома H-1021 двухэтажный с мансардой

Проект двух этажного дома рассчитан для проживания 2-ух семей. Данный дом площадью 331 м2.

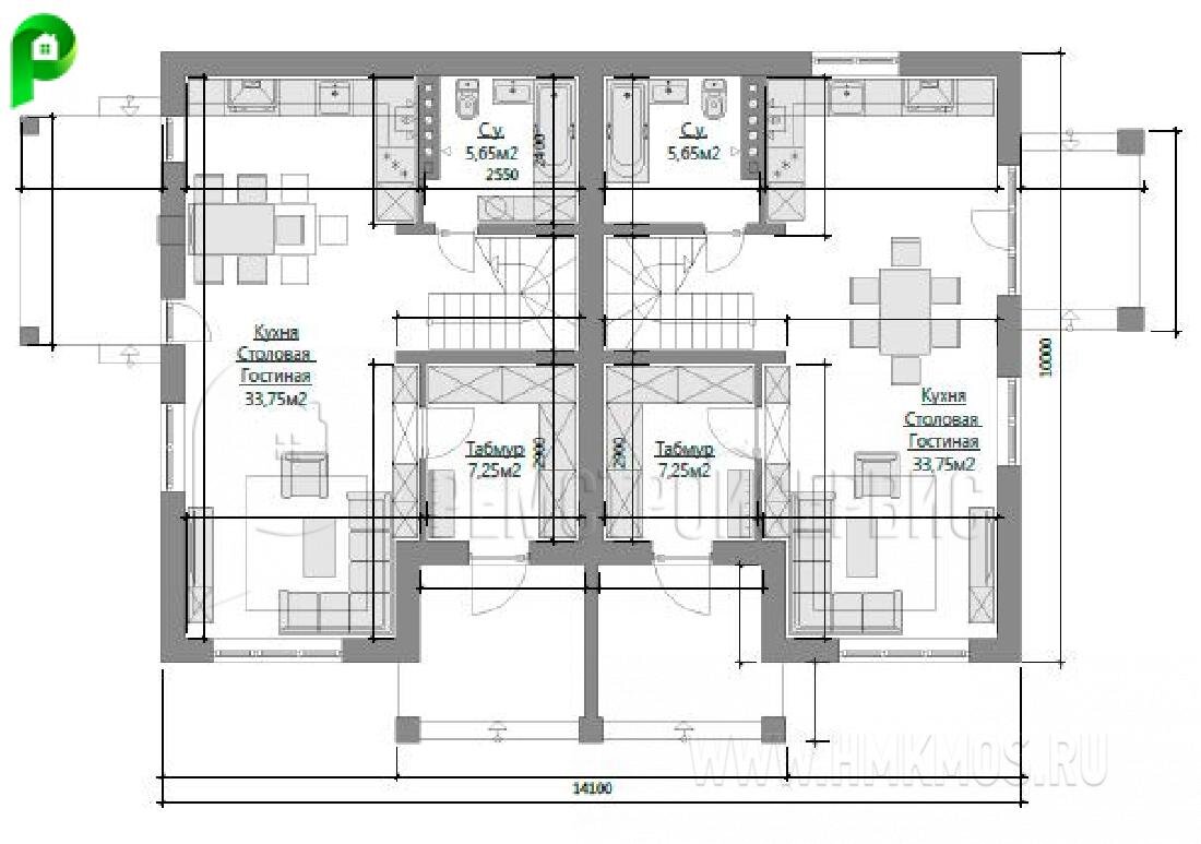
План первого этажа

-2

На первом этаже имеется два отдельных входа для двух семей. В каждой части дома располагается просторная гостиная совмещенная с кухней и просторная ванная комната.

План второго этажа

На втором этаже находятся в каждом крыле по две просторные спальни. В левом крыле есть большая гардеробная, а в правом просторный кабинет для работы.

-3

Посмотреть подробнее проект H-1021 можно здесь -->>

Строительство дома по проекту H-1021

Стоимость строительства теплого контура (коробка с внешней отделкой) данного дома Вам обойдется 5 783 232
Если кто-то заинтересовался и желает данный проект реализовать на своем участке Вы можете получить консультацию у наших специалистов по телефону или оставьте заявку на нашем сайте.

Ваш www.Ремстройсервис.Москва