Найти в Дзене
Планировочки

Планировка квартиры 30,6м2. На основе студии от ПИК

Всем привет, планировочки на связи. Сегодня мы решили взять за основу планировку от застройщика ПИК, под кодовым названием 1NL1_5.4-1_S_A. Это студия, довольно таки большая, наверное даже максимальная - 30,6м2. Наше предложение - зона входной группы, состоящая из прихожей, санузла и кладовой. Далее кухня-столовая, достаточно удобная для пары, гостиная, где можно разместить небольшую компанию, и спальная кровать за раздвижной перегородкой. Подписка на соцсети очень поможет развитию!

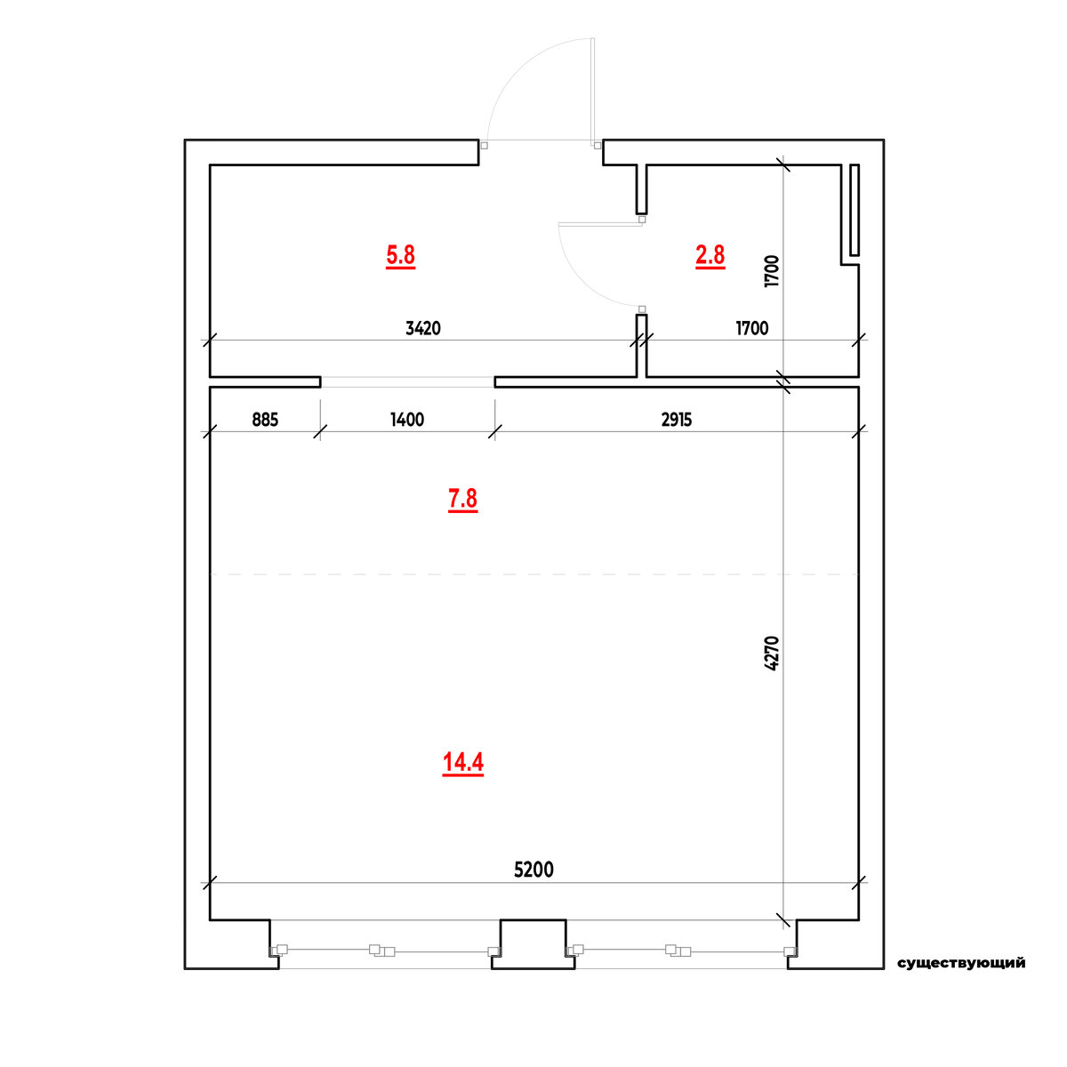
Всем привет, планировочки на связи.

Сегодня мы решили взять за основу планировку от застройщика ПИК, под кодовым названием 1NL1_5.4-1_S_A. Это студия, довольно таки большая, наверное даже максимальная - 30,6м2.

Наше предложение - зона входной группы, состоящая из прихожей, санузла и кладовой.

Далее кухня-столовая, достаточно удобная для пары, гостиная, где можно разместить небольшую компанию, и спальная кровать за раздвижной перегородкой.

-2

Подписка на соцсети очень поможет развитию!