Добавить в корзинуПозвонить
Найти в Дзене

Расчет площади квартиры, дома – как учитывать балкон, лоджию, проем в стене, крыльцо, лестницу.

Центр "КРДэксперт". Независимая строительная экспертиза в Краснодарском крае Центр "КРДэксперт", Краснодар.
Оглавление

Центр "КРДэксперт". Независимая строительная экспертиза в Краснодарском крае

Площадь квартиры и частного дома рассчитывается по одному и тому же СП 54.13330.2016. Все рассмотренное ниже по тексту для квартиры применяется также и для подсчета площади частного жилого дома.       Вначале определимся - что такое площадь квартиры. Согласно СНиП (сейчас они называются СП - Строительные Правила) площадь квартиры определяется как сумма площадей помещений квартиры. Помещение - это пространство, ограниченное строительными конструкциями (с 4-х сторон). Строительная конструкция - это не обязательно кирпичная (гипсокартонная) перегородка от пола до потолка. Ограждения балкона, лоджии тоже являются строительными конструкциями и, следовательно, балкон и лоджия также являются помещениями, и они входят в общую площадь квартиры с понижающими коэффициентами (балкон - 0,3; лоджия - 0,5). Если квартира двухуровневая (двухэтажная) или более, то площадь подсчитывается по каждому этажу в отдельности, после чего они складываются.
Площадь квартиры и частного дома рассчитывается по одному и тому же СП 54.13330.2016. Все рассмотренное ниже по тексту для квартиры применяется также и для подсчета площади частного жилого дома. Вначале определимся - что такое площадь квартиры. Согласно СНиП (сейчас они называются СП - Строительные Правила) площадь квартиры определяется как сумма площадей помещений квартиры. Помещение - это пространство, ограниченное строительными конструкциями (с 4-х сторон). Строительная конструкция - это не обязательно кирпичная (гипсокартонная) перегородка от пола до потолка. Ограждения балкона, лоджии тоже являются строительными конструкциями и, следовательно, балкон и лоджия также являются помещениями, и они входят в общую площадь квартиры с понижающими коэффициентами (балкон - 0,3; лоджия - 0,5). Если квартира двухуровневая (двухэтажная) или более, то площадь подсчитывается по каждому этажу в отдельности, после чего они складываются.
   Идем дальше. Так как площадь квартиры является суммой площадей помещений, то, как следствие: всё, что не является помещением не входит в площадь квартиры.  А это:
1). Крыльцо (квартиры в таунхаусе имеют крыльцо) и подъемные ступеньки на крыльцо не являются помещениями, т.к. отсутствуют ограждающие строительные конструкции с 4-х сторон.
2). Дверные проемы или просто проемы без дверей между помещениями или при выходе из квартиры (дома) также не являются помещениями.
3). Стояки канализации, водоснабжения должны находиться в шахте, т.е. отгорожены перегородками от помещения туалета (или ванной) и эта площадь шахты в площадь квартиры не включается.
4). Лестница не является помещением (хотя в разговоре часто говорят "площадь лестницы"). Лестница находится в помещении в двухуровневой квартире обычно это часть холла (прихожей) 1-го этажа.

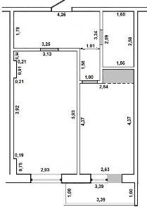
         Теперь разберем как рассчитывается "площадь лестницы". Пустота над лестницей на уровне пола 2-го этажа называется "2-й свет" и в площадь 2-го этажа (и тем более 1-го) не входит. Холл (прихожая), часть которого, занята лестницей (часть холла) находится на 1-м этаже. Площадь места под лестницей в этом помещении (части холла) - где расстояние от до низа лестницы до пола более 1,6 м включается в площадь холла (прихожей) 1-го этажа, а  остальная площадь под лестницей на участке с высотой от пола до низа выступающих конструкций лестницы 1,6 м и менее не включается в площадь помещения (холла, прихожей), в котором размещена лестница (указание СП 54.13330.2016 п. А.2.2).

   Ниже приведен план 1-го этажа квартиры в таунхаусе. Серая заливка означает, что эта площадь не включена в площадь квартиры, а также в общую площадь квартиры.
Идем дальше. Так как площадь квартиры является суммой площадей помещений, то, как следствие: всё, что не является помещением не входит в площадь квартиры. А это: 1). Крыльцо (квартиры в таунхаусе имеют крыльцо) и подъемные ступеньки на крыльцо не являются помещениями, т.к. отсутствуют ограждающие строительные конструкции с 4-х сторон. 2). Дверные проемы или просто проемы без дверей между помещениями или при выходе из квартиры (дома) также не являются помещениями. 3). Стояки канализации, водоснабжения должны находиться в шахте, т.е. отгорожены перегородками от помещения туалета (или ванной) и эта площадь шахты в площадь квартиры не включается. 4). Лестница не является помещением (хотя в разговоре часто говорят "площадь лестницы"). Лестница находится в помещении в двухуровневой квартире обычно это часть холла (прихожей) 1-го этажа. Теперь разберем как рассчитывается "площадь лестницы". Пустота над лестницей на уровне пола 2-го этажа называется "2-й свет" и в площадь 2-го этажа (и тем более 1-го) не входит. Холл (прихожая), часть которого, занята лестницей (часть холла) находится на 1-м этаже. Площадь места под лестницей в этом помещении (части холла) - где расстояние от до низа лестницы до пола более 1,6 м включается в площадь холла (прихожей) 1-го этажа, а остальная площадь под лестницей на участке с высотой от пола до низа выступающих конструкций лестницы 1,6 м и менее не включается в площадь помещения (холла, прихожей), в котором размещена лестница (указание СП 54.13330.2016 п. А.2.2). Ниже приведен план 1-го этажа квартиры в таунхаусе. Серая заливка означает, что эта площадь не включена в площадь квартиры, а также в общую площадь квартиры.
Напоследок пояснение, почему при расчете площади квартиры необходимо руководствоваться именно Строительными Правилами.     Нормативный документ СП 54.13330.2016 утвержден приказом Министерства строительства и жилищно-коммунального хозяйства РФ от 03.12.2016г. №883/пр. Т.е. СП 54.13330.2016 является вновь введённым документом, приложение «А» которого устанавливает единые правила подсчета площади квартир.
     Указом Президента Российской Федерации от 01.11.2013 №819 с 01.11.2013г. функция (право) нормативно-правового регулирования в сфере жилищно-коммунального хозяйства с 01.11.2013г. передана Министерству строительства и жилищно-коммунального хозяйства РФ.
Напоследок пояснение, почему при расчете площади квартиры необходимо руководствоваться именно Строительными Правилами. Нормативный документ СП 54.13330.2016 утвержден приказом Министерства строительства и жилищно-коммунального хозяйства РФ от 03.12.2016г. №883/пр. Т.е. СП 54.13330.2016 является вновь введённым документом, приложение «А» которого устанавливает единые правила подсчета площади квартир. Указом Президента Российской Федерации от 01.11.2013 №819 с 01.11.2013г. функция (право) нормативно-правового регулирования в сфере жилищно-коммунального хозяйства с 01.11.2013г. передана Министерству строительства и жилищно-коммунального хозяйства РФ.

Центр "КРДэксперт", Краснодар.