Найти в Дзене

Дом на две семьи! "Семейное гнездо".

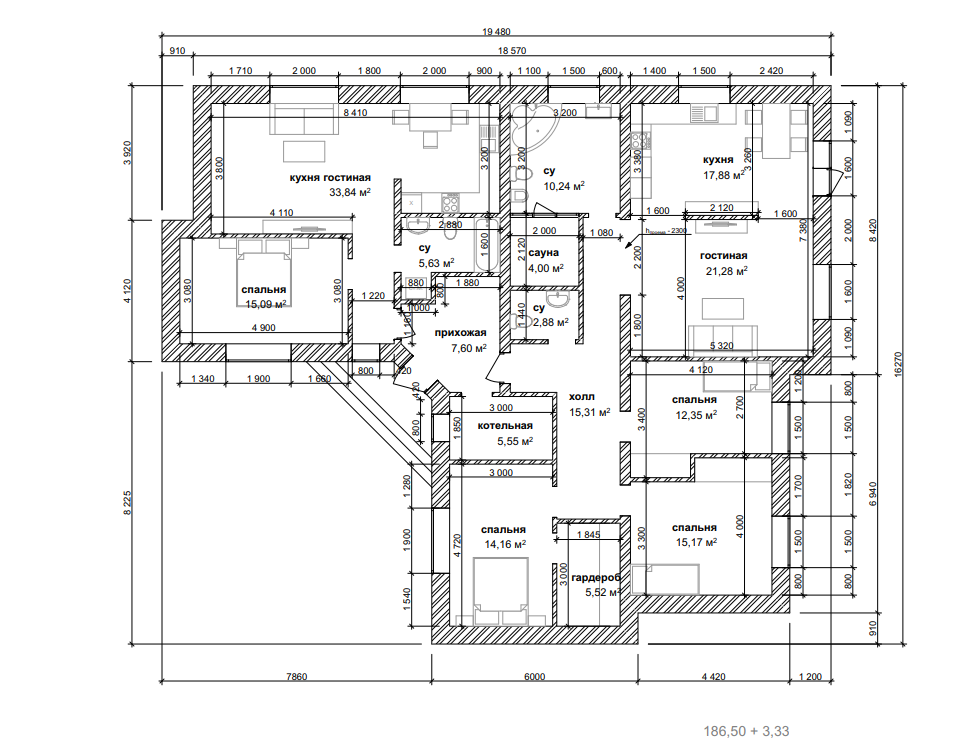
Дом "Семейное гнездо" ориентирован на двух хозяев, срок возведения 4.5 месяца. Строительство дома выполняется под ключ. Технические характеристики проекта «Семейное гнездо» Общая площадь дома 186,5м2
Этажность   1
Количество жилых комнат 6
Количество санузлов  2
Материал несущих стен  керамзитоблок
Тип фундамента  ленточный на буронабивных сваях
Тип кровельного покрытия  мягкая кровля
Облицовка стен  керамический кирпич «Брылино»
Срок постройки   4,5 месяца Описание проекта Для многих молодых семей важно быть поблизости с родителями, но при этом иметь собственное жилье. Наша компания нашла необычное решение для подобной ситуации. Представляем Вашему внимаю дом на две семьи «Семейное гнездо», построенное по индивидуальному проекту «под ключ». Одноэтажное строение в плане имеет сложную геометрическую форму, общий вход и функциональное разделение на две части. Левая сторона дома принадлежит родителям и имеет меньшую площадь, которая вмещает в себя спальню, просторную кухню-гостиную

Дом "Семейное гнездо" ориентирован на двух хозяев, срок возведения 4.5 месяца. Строительство дома выполняется под ключ.

Технические характеристики проекта «Семейное гнездо»

Общая площадь дома 186,5м2
Этажность   1
Количество жилых комнат 6
Количество санузлов  2
Материал несущих стен  керамзитоблок
Тип фундамента  ленточный на буронабивных сваях
Тип кровельного покрытия  мягкая кровля
Облицовка стен  керамический кирпич «Брылино»
Срок постройки   4,5 месяца

Описание проекта Для многих молодых семей важно быть поблизости с родителями, но при этом иметь собственное жилье. Наша компания нашла необычное решение для подобной ситуации. Представляем Вашему внимаю дом на две семьи «Семейное гнездо», построенное по индивидуальному проекту «под ключ». Одноэтажное строение в плане имеет сложную геометрическую форму, общий вход и функциональное разделение на две части. Левая сторона дома принадлежит родителям и имеет меньшую площадь, которая вмещает в себя спальню, просторную кухню-гостиную и совмещенный санузел. Чтобы попасть в левую часть дома, нужно пройти небольшой коридор-прихожую, оснащенный общим гардеробом. Правая сторона предназначена для проживания молодой семьи с детьми. Здесь предусмотрены две детских комнаты, одна спальня и санузел. Длинный коридор выводит в помещение, предназначенное для приема гостей, приготовления пищи и обеденной зоны. Такое совмещение различных функций в одной комнате освобождает от громоздких перегородок и визуально увеличивает пространство. Для освещения значительного по площади помещения предусмотрены панорамные окна с видом во двор. В проекте учтена установка всех инженерных сетей и коммуникаций для комфортного проживания двух семей.

ВИДЕООБЛЁТ С ДРОНА!! СМОТРЕТЬ ВСЕМ!!

Проекты 2019 года! СВЕЖАК!!!