Добавить в корзинуПозвонить
Найти в Дзене
Проекты домов

Проект жилого коттеджа с мансардным этажом 148м²

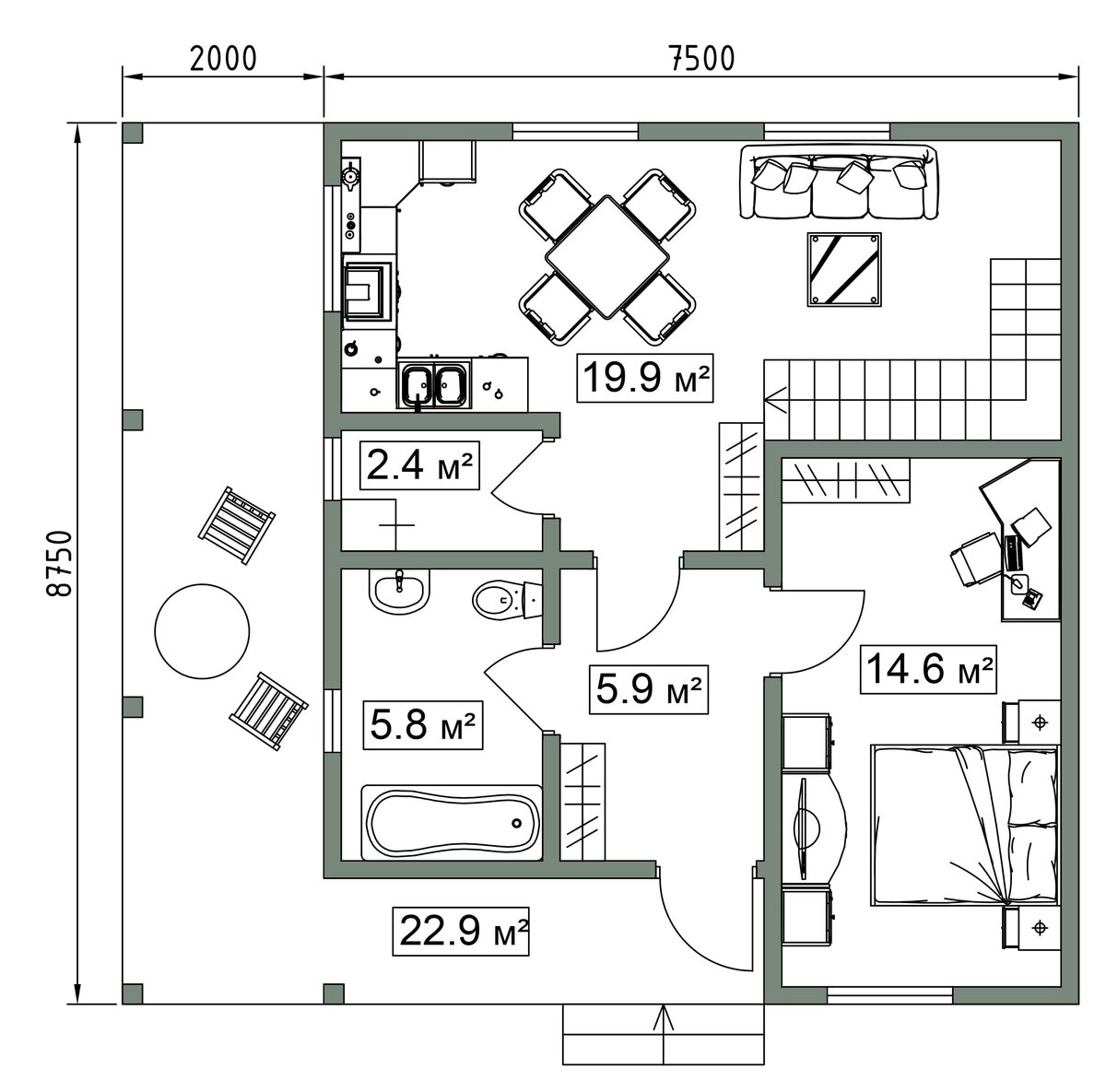
Планировки Описание проекта Проект SIP 18 - это большой дом с покатой крышей и просторной планировкой. Все помещения в этом коттедже спроектированы для максимального комфорта его жителей. На первом этаже размещена большая кухня-гостиная, где есть три окна, одно из которых выходит на террасу. Помимо ванной комнаты, здесь предусмотрено помещение для бойлерной. Также на первом уровне дома есть одна спальная комната. На мансардном этаже запланированы две спальни, в одной из которых сделан выход на балкон. На втором уровне холл совмещен с зоной гостиной. В итоге получился удачно спроектированный дом, в котором члены семьи не будут чувствовать себя стесненными благодаря вместительным помещениям. Открыть проект
Оглавление

Планировки

-2

Описание проекта

Проект SIP 18 - это большой дом с покатой крышей и просторной планировкой. Все помещения в этом коттедже спроектированы для максимального комфорта его жителей. На первом этаже размещена большая кухня-гостиная, где есть три окна, одно из которых выходит на террасу. Помимо ванной комнаты, здесь предусмотрено помещение для бойлерной. Также на первом уровне дома есть одна спальная комната.

-3

На мансардном этаже запланированы две спальни, в одной из которых сделан выход на балкон. На втором уровне холл совмещен с зоной гостиной. В итоге получился удачно спроектированный дом, в котором члены семьи не будут чувствовать себя стесненными благодаря вместительным помещениям.

Открыть проект