Найти в Дзене
ПРОЕКТЫ ДОМОВ

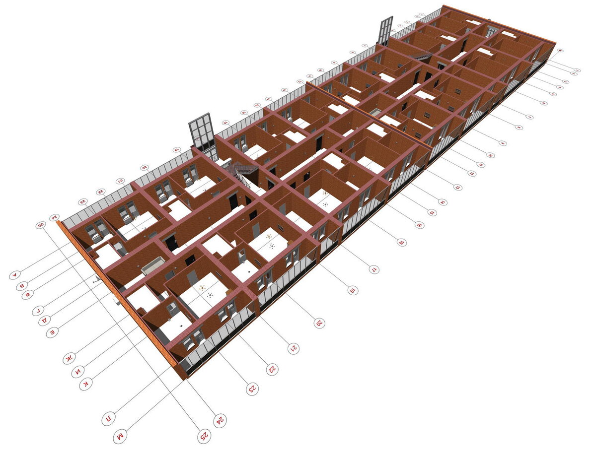
Готовый проект трехэтажного двухподъездного жилого дома на 48 квартир с техническим этажом (чердаком)

-2
-3
-4
-5
-6
-7
-8
-9
-10
-11
-12
-13
-14
-15
-16
-17
-18
-19
-20
-21
-22
-23
-24
-25
-26
-27