Добавить в корзинуПозвонить
Найти в Дзене
ПРО Дизайнер

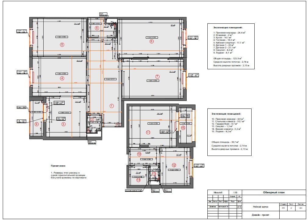
Обмерный план ч.1

Обмерный план ч.1 Каждый дизайн-проект начинается с обмерного плана помещения. От точности определения геометрических размеров зависит точность расстановки мебели и оборудования в квартире или доме. Что такое обмерный план? Обмерные план - вид рабочей документации. Цель обмерных работ – определение действительных геометрических размеров помещений или конструкций. Для изготовления обмерного плана тщательно измеряются высота и ширина каждой стены и параметры оконных и дверных проёмов. Кроме того, если работы проводятся в целом здании, а не в отдельном помещении, на чертёж наносятся планы каждого этажа и фасады здания.
В обмерный план заносится расположение вентиляционных шахт, систем электроснабжения, водоснабжения и водоотведения, системы отопления и других имеющихся инженерных коммуникаций.

Обмерный план ч.1

Каждый дизайн-проект начинается с обмерного плана помещения. От точности определения геометрических размеров зависит точность расстановки мебели и оборудования в квартире или доме.

Что такое обмерный план?

Обмерные план - вид рабочей документации. Цель обмерных работ – определение действительных геометрических размеров помещений или конструкций.

Для изготовления обмерного плана тщательно измеряются высота и ширина каждой стены и параметры оконных и дверных проёмов. Кроме того, если работы проводятся в целом здании, а не в отдельном помещении, на чертёж наносятся планы каждого этажа и фасады здания.
В обмерный план заносится расположение вентиляционных шахт, систем электроснабжения, водоснабжения и водоотведения, системы отопления и других имеющихся инженерных коммуникаций.