Найти в Дзене
ДизайнИК / WorkShopKnitty

Три в одном. Детская комната для троих детей

Разместить троих детей в одной комнате - задача не из простых. А как вам задача еще и разделить комнату для разнополых детей? Итак, у нас есть комната 19 кв. м. и дети. Девочка 7 лет и мальчик 3-х лет. Третьего ребенка еще нет, но семья планирует его появление в будущем. И решено было сразу придумать такую комнату, в которую легко потом разместятся все дети. Одним из пожеланий явилось по возможности разделить комнату, т.к. дети разнополые и, немного погодя, каждому надо будет свое местечко. Сделав небольшую перепланировку, о которой я расскажу в другой раз, у нас получилась отличная комната. Итак, детская. Пусть вас не смущает наличие двух дверей. Ведь в будущем, когда дети подрастут, будет поставлен еще один шкаф. Он разделит комнату окончательно на две. Пока же можно использовать это деление как игровая зона и спальня. Да, согласна, что одна комната не имеет своего окна. Эту проблему мы решили следующим образом. Мебель рабочего места имеет конструкцию с "окном". Это стекло-пакет из м

Разместить троих детей в одной комнате - задача не из простых.

А как вам задача еще и разделить комнату для разнополых детей?

Итак, у нас есть комната 19 кв. м. и дети. Девочка 7 лет и мальчик 3-х лет. Третьего ребенка еще нет, но семья планирует его появление в будущем. И решено было сразу придумать такую комнату, в которую легко потом разместятся все дети.

Одним из пожеланий явилось по возможности разделить комнату, т.к. дети разнополые и, немного погодя, каждому надо будет свое местечко.

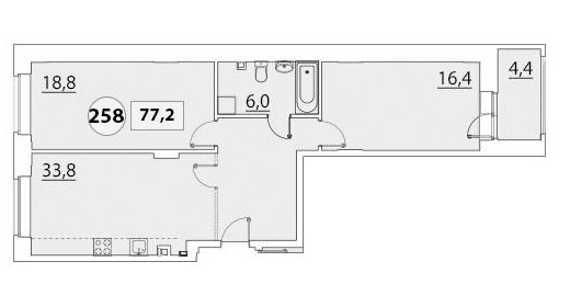
Исходный план
Исходный план

Сделав небольшую перепланировку, о которой я расскажу в другой раз, у нас получилась отличная комната.

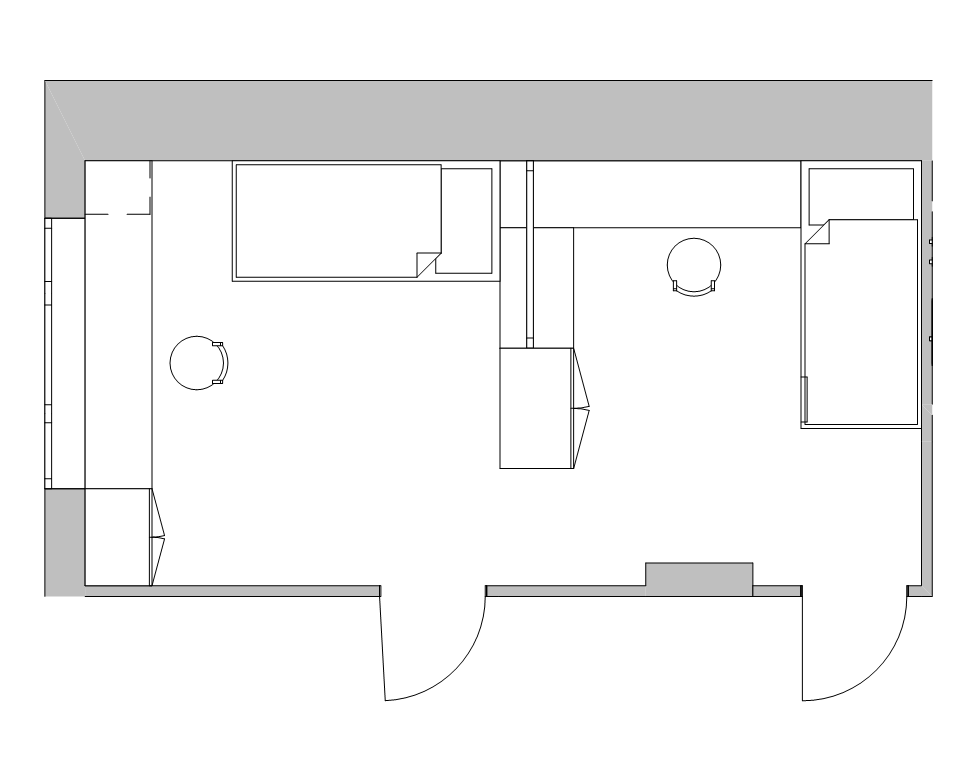
Детская план
Детская план

Итак, детская. Пусть вас не смущает наличие двух дверей. Ведь в будущем, когда дети подрастут, будет поставлен еще один шкаф. Он разделит комнату окончательно на две. Пока же можно использовать это деление как игровая зона и спальня.

Да, согласна, что одна комната не имеет своего окна. Эту проблему мы решили следующим образом. Мебель рабочего места имеет конструкцию с "окном". Это стекло-пакет из матового светопрозрачного стекла. Сверху предусмотрена фрамуга для проветривания.

Деление комнаты
Деление комнаты

Вся комната в целом имеет общее стилевое оформление. Светлые стены, мебель, единый материал для пола.

При этом каждая часть комнаты оформлена с небольшими акцентами, позволяющими придать индивидуальности и характера своего владельца.

Это декоративные элементы, цвет фасадов, текстиль.

Для девочки
Для девочки
Для мальчика
Для мальчика

А вот и ракурс на "окно", дающее небольшой свет в дальнюю часть комнаты.

Светопрозрачная конструкция
Светопрозрачная конструкция

Разделяющее окно сделано таким образом, что играет так же роль прикроватной тумбочки, или лучше сказать полочки. На которую можно поставить ночник, будильник и еще какие-то приятные мелочи.

Ну а если третьим ребенком родится девочка, оформление комнат взаимозаменяемо.

Как вам такая идея? Поделитесь своим мнением.

ЛАЙК, если понравилось.