Найти в Дзене
Проекты Коттеджей

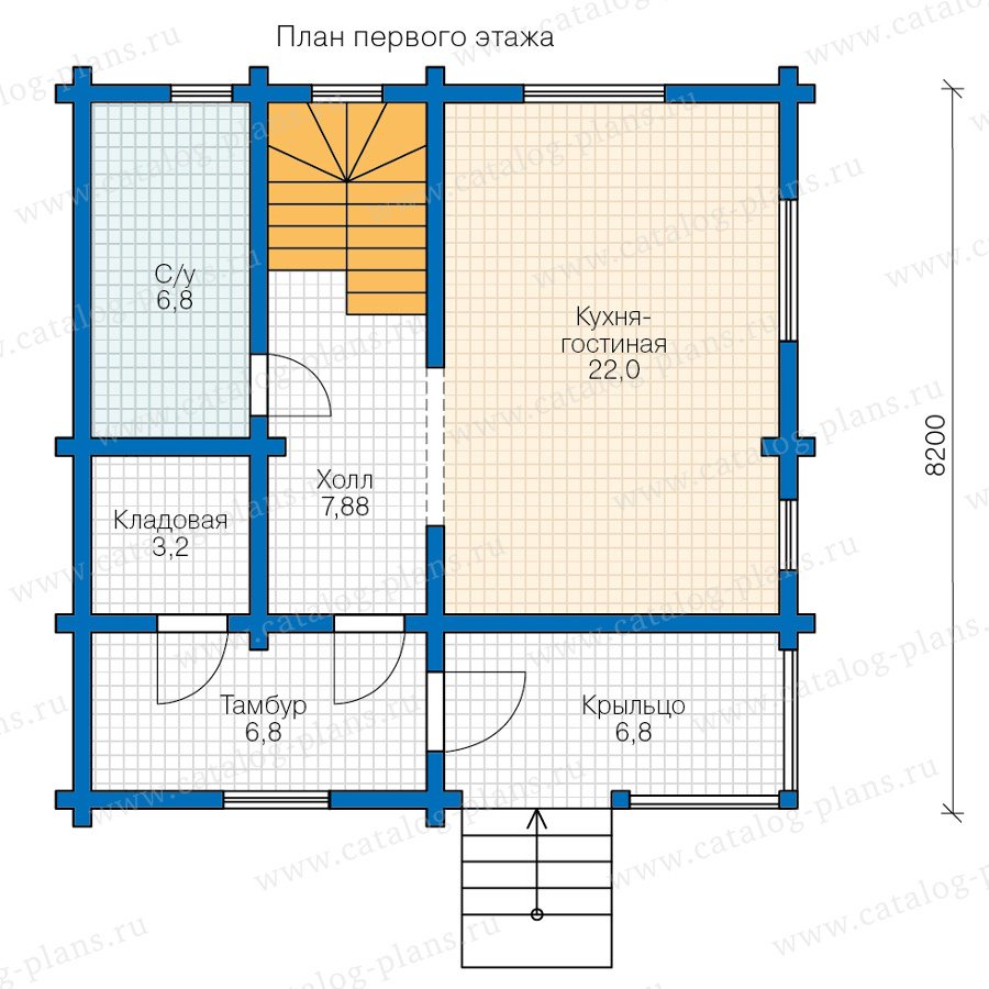
Проект деревянного дома 100 м²

Общая площадь: 100 м² Террасы,балконы: 6.8 м² Габариты: 8.2x8.2 м Высота конька: 7.84 м Наружние стены: брус 200 Фундамент: свайно-ростверковый ж/б Перекрытия: по деревянным балкам Крыша: мансардная Кровля: металлочерепица Наружная отделка: окраска Цоколь: нет Архитектурный стиль: скандинавский Ссылка на оригинал проекта на сайте автора:
https://catalog-plans.ru/catalog/13-95

Общая площадь: 100 м²

Террасы,балконы: 6.8 м²

Габариты: 8.2x8.2 м

Высота конька: 7.84 м

Наружние стены: брус 200

Фундамент: свайно-ростверковый ж/б

Перекрытия: по деревянным балкам

Крыша: мансардная

Кровля: металлочерепица

Наружная отделка: окраска

Цоколь: нет

Архитектурный стиль: скандинавский

-2
-3

Ссылка на оригинал проекта на сайте автора:
https://catalog-plans.ru/catalog/13-95