Добавить в корзинуПозвонить
Найти в Дзене
Проекты домов

Проект жилого двухэтажного дома 133м²

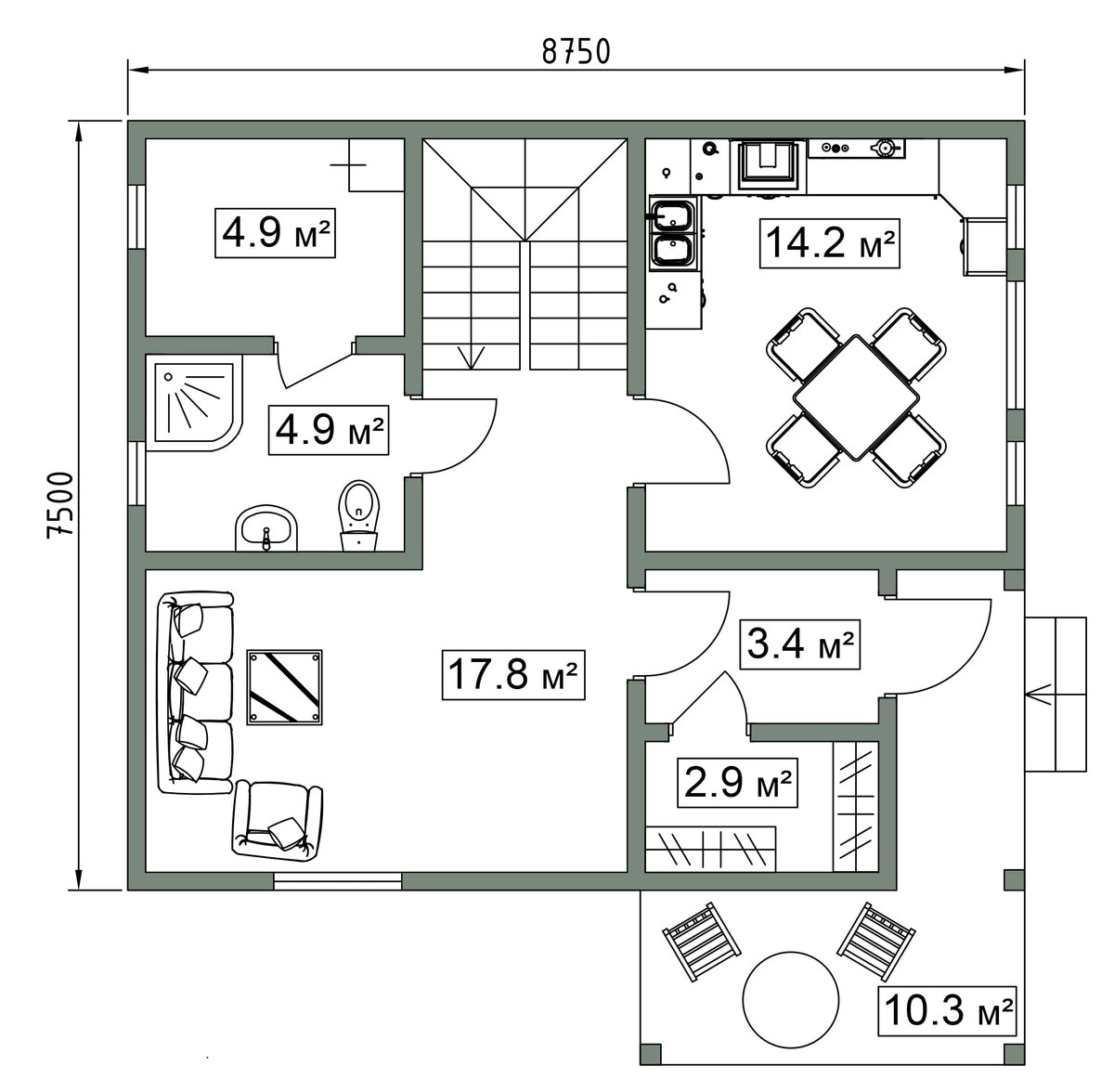
Планировки Описание проекта Проект SIP 13 Коттедж по проекту SIP 13 - это удобный двухэтажный дом с террасой и подсобными помещениями. На первом этаже предусмотрен тамбур, откуда сразу можно попасть в гардеробную комнату. Помимо совмещенного санузла, на первом этаже есть большое помещение под бойлерную. Также на первом уровне спроектирована кухня и отдельная комната для гостиной. Второй этаж по проекту SIP 13 предполагает три спальных комнаты и вместительное помещение под санузел, где с легкостью поместится как душевая кабина и ванна, так и стиральная машина. Терраса занимает площадь чуть больше 10м2 и украшена колоннами, которые придают всему строению элегантный вид. Открыть проект
Оглавление

Планировки

-2

Описание проекта

Проект SIP 13 Коттедж по проекту SIP 13 - это удобный двухэтажный дом с террасой и подсобными помещениями. На первом этаже предусмотрен тамбур, откуда сразу можно попасть в гардеробную комнату. Помимо совмещенного санузла, на первом этаже есть большое помещение под бойлерную.

-3

Также на первом уровне спроектирована кухня и отдельная комната для гостиной. Второй этаж по проекту SIP 13 предполагает три спальных комнаты и вместительное помещение под санузел, где с легкостью поместится как душевая кабина и ванна, так и стиральная машина. Терраса занимает площадь чуть больше 10м2 и украшена колоннами, которые придают всему строению элегантный вид.

Открыть проект