Найти в Дзене

Выступ на выступе: как обыграть конструктивные элементы в интерьере

Индивидуальная архитектура фасадов многих ЖК эффектна снаружи. Нам досталась квартира в ЖК «Невский» с эркером. Красивое внешнее решение застройщика обернулось двумя пилонами в торце кухни. Кроме того, в другом торце находится стояк. Бинго! Застройщик не обязан продумывать эстетику и эргономику внутри квартиры, поэтому нестандартные помещения приходится дорабатывать либо жильцам, либо дизайнеру. Получив в работу квартиру свободной планировки 40 кв. м и составив обмерный план, поделили студию на кухню-гостиную и спальню. А вот кухня-гостиная заставила поломать голову. Известно, что на кухне места много не бывает. А когда в узком помещении находятся два пилона и стояк, место съедается катастрофически. Гарнитур можно было расположить линейно, но заказчики хотели, чтобы общественное пространство больше походило на гостиную и просили спрятать зону готовки. Задачу усложнили стояк и просьба об устройстве небольшой кладовой около него. В итоге для кухонной зоны мы спроектировали нишу, где с о

Индивидуальная архитектура фасадов многих ЖК эффектна снаружи. Нам досталась квартира в ЖК «Невский» с эркером. Красивое внешнее решение застройщика обернулось двумя пилонами в торце кухни. Кроме того, в другом торце находится стояк. Бинго!

-2

Застройщик не обязан продумывать эстетику и эргономику внутри квартиры, поэтому нестандартные помещения приходится дорабатывать либо жильцам, либо дизайнеру. Получив в работу квартиру свободной планировки 40 кв. м и составив обмерный план, поделили студию на кухню-гостиную и спальню.

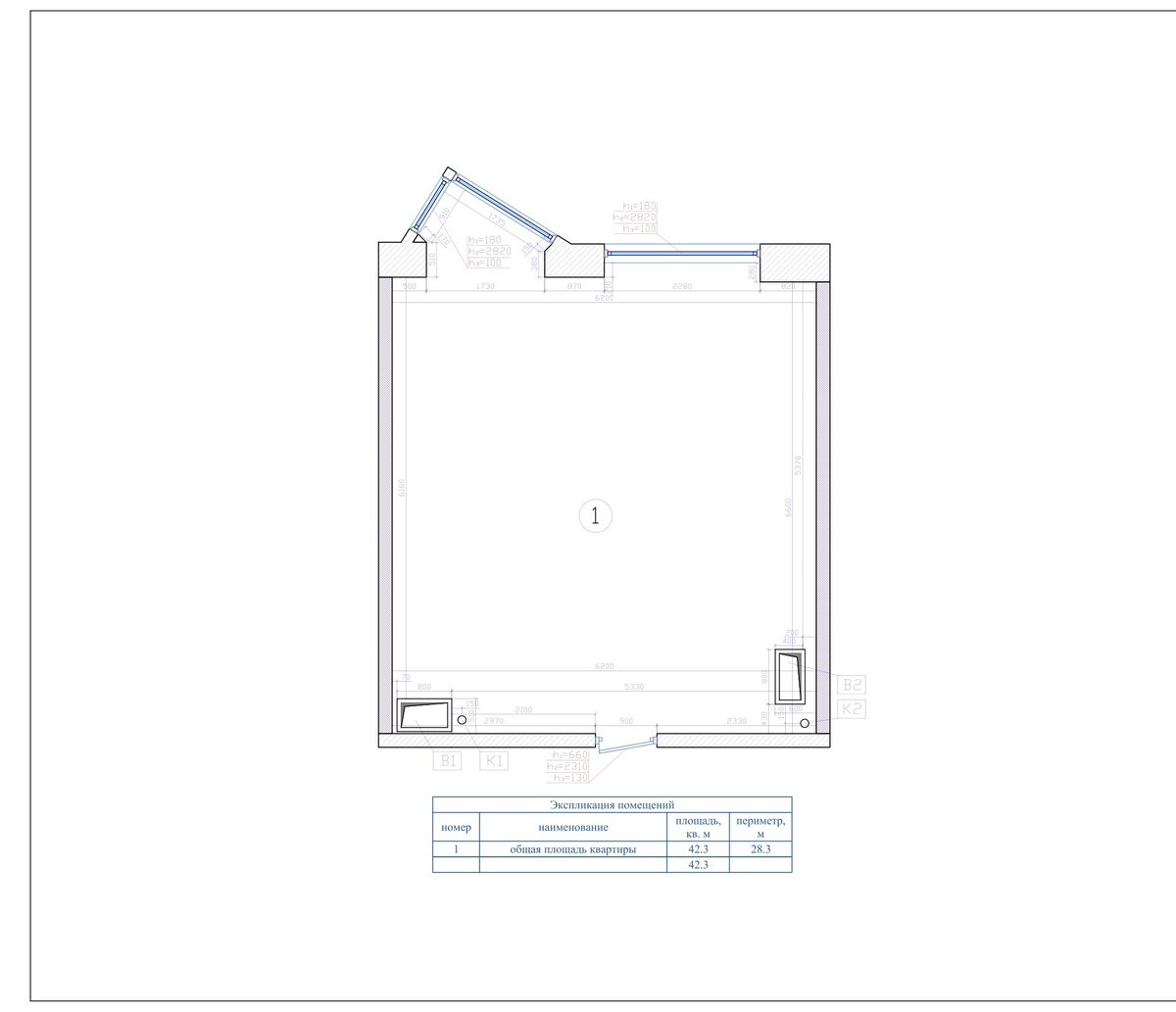
Планировочное решение квартиры, согласно которому заказчик получил изолированную спальню и кухню-гостиную
Планировочное решение квартиры, согласно которому заказчик получил изолированную спальню и кухню-гостиную
Спальня в квартире ЖК "Невский" в современном стиле
Спальня в квартире ЖК "Невский" в современном стиле

А вот кухня-гостиная заставила поломать голову. Известно, что на кухне места много не бывает. А когда в узком помещении находятся два пилона и стояк, место съедается катастрофически. Гарнитур можно было расположить линейно, но заказчики хотели, чтобы общественное пространство больше походило на гостиную и просили спрятать зону готовки. Задачу усложнили стояк и просьба об устройстве небольшой кладовой около него.

Заказчик не хотел акцентировать внимание на кухонной зоне
Заказчик не хотел акцентировать внимание на кухонной зоне

В итоге для кухонной зоны мы спроектировали нишу, где с обратной стороны расположены кладовая и стояки, а в утепленном эркере предусмотрели лаунж. Не забыли про лаконичную гостиную с диваном и ТВ между пилоном и нишей и обеденную зону напротив кухни.

Кухня убрана в нишу и не привлекает внимания
Кухня убрана в нишу и не привлекает внимания
В вытянутом по форме помещении 18,8 кв. м  размещен  весь необходимый заказчику функционал
В вытянутом по форме помещении 18,8 кв. м размещен весь необходимый заказчику функционал

Совет. Выйти с честью из непростой планировочной ситуации можно, если недостаток обратить в достоинство. Например, укромный уголок между стенами превратить в уютную зону для релакса.

-8

Хотите больше рекомендаций по дизайну? Мы готовы дать их вам бесплатно в формате онлайн. Вступайте в нашу группу по ремонту и дизайну во ВКонтакте и присылайте вопросы. В январе проведем первую трансляцию, где наш дизайнер ответит на них!

Понравился проект? Больше фото смотрите у нас в ПОРТФОЛИО.

Первыми новые работы видят подписчики в Инстаграм. Присоединяйтесь, чтобы ничего не пропустить.