Найти в Дзене
ДизайнИК / WorkShopKnitty

Переделка санузла.

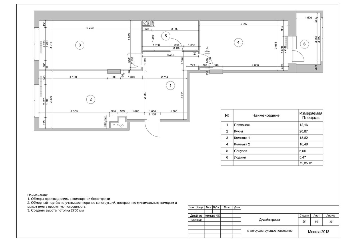
Сколько нужно санузлов в квартире? Несомненно, чтобы ответить на этот вопрос я бы задала в ответ несколько встречных: Для кого эта квартира? Сколько человек в семье? Если это квартира для семьи? Какие пожелания по наполнению санузла? Что люди привыкли иметь для комфортного проживания в квартире? Или чего им не хватает и просто необходимо организовать. Хочу сегодня поделиться проектом, который в работе. Имеем: Квартира почти 80 кв.м. для семьи из 4-х человек - родители и двое детей. Возможно, в будущем появится еще ребенок. Прикреплю планировку квартиры Да, возможно кто-то скажет, что для большой семьи нужна квартира по-больше... Но что имеем, с тем и работаем. По плану от застройщика предполагается один санузел. Но одним из пожеланий хозяйки было устроить два санузла. Оно и понятно - семья большая. Так как в спальню ведет небольшой коридорчик, мы не смогли увеличить площадь санузлов за счет коридора. Это помешало бы комфортному проходу в комнату. Поступили следующим образом: Просто ра

Сколько нужно санузлов в квартире? Несомненно, чтобы ответить на этот вопрос я бы задала в ответ несколько встречных:

Для кого эта квартира?

Сколько человек в семье? Если это квартира для семьи?

Какие пожелания по наполнению санузла? Что люди привыкли иметь для комфортного проживания в квартире? Или чего им не хватает и просто необходимо организовать.

Хочу сегодня поделиться проектом, который в работе.

Имеем:

Квартира почти 80 кв.м. для семьи из 4-х человек - родители и двое детей. Возможно, в будущем появится еще ребенок.

Прикреплю планировку квартиры

План от застройщика
План от застройщика

Да, возможно кто-то скажет, что для большой семьи нужна квартира по-больше... Но что имеем, с тем и работаем.

По плану от застройщика предполагается один санузел. Но одним из пожеланий хозяйки было устроить два санузла. Оно и понятно - семья большая.

Так как в спальню ведет небольшой коридорчик, мы не смогли увеличить площадь санузлов за счет коридора. Это помешало бы комфортному проходу в комнату.

Поступили следующим образом:

Просто разделили существующий санузел на два. Один - небольшой санузел с унитазом, раковиной и гигиеническим душем. Он же предполагается для гостей. И ванная комната, включающая в себя большую раковину с двумя смесителями, унитаз, ванну с душевым гарнитуром и шторкой. Кроме всего этого тут уместилась и стиральная машина.

Устройство санузлов
Устройство санузлов

По стилистике квартира выполнена в современном стиле.

Ванная комната решена в светлом цветовом решении с вкраплением голубой плитки

-3

Отказались от нагромождения шкафов, чтобы не перегружать помещение. Хранение необходимых аксессуаров предполагается в выдвижной тумбе под раковиной

-4

В санузле решили добавить ярких красок и использовать частично обои на стенах

-5

А за дверками спрячется сантехнический шкаф и накопительный водонагреватель.

-6

Поделитесь в комментариях своим мнением.

Второй санузел в квартире - норма жизни или прихоть и излишки?