Добавить в корзинуПозвонить
Найти в Дзене
Умный Угол

Кухонный гарнитур с пеналом и встроенным холодильником

В этой трехкомнатной квартире живет семья с детьми. Примерный размер помещения для гарнитура кухни – 4,5 м х 2,05 м (стена у входа). Мы выбрали угловую кухню 3,1 м х 2 м, так чтобы осталось больше места для обеденного стола и стульев, а также место для дивана с тумбой под ТВ. Высота навесных шкафов 720 мм. Бытовая техника – встроенный холодильник, духовой шкаф шириной 600 мм, варочная панель шириной 600 мм, встроенная вытяжка, встроенная СВЧ, встроенная посудомоечная машина. В проекте есть широкий шкаф под сушилку, пенал  под духовой шкаф и СВЧ, симметричные витринные шкафы слева и справа от вытяжки Первый шаг Выставляем фильтры на странице поиска по каталогу: https://spb.umugol.ru/kuhni-na-zakaz-v-spb/uglovyye-kuhni/s-holodilnikom/so-vstroyennoy-duhovkoy/s-posudomoykoy/s-mikrovolnovkoy?height=720&left=3.1&right=2.0&mode=schemes&page=1 Второй шаг Переходим на карточку дизайн-проекта: https://spb.umugol.ru/konstruktor-kuhni-v-spb/82748 Дорабатываем проект в конструкторе: https://spb

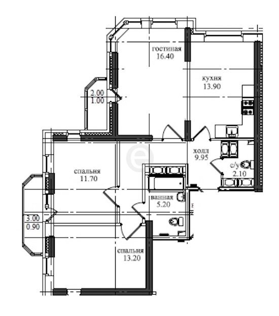
В этой трехкомнатной квартире живет семья с детьми.

Планировка
Планировка

Примерный размер помещения для гарнитура кухни – 4,5 м х 2,05 м (стена у входа). Мы выбрали угловую кухню 3,1 м х 2 м, так чтобы осталось больше места для обеденного стола и стульев, а также место для дивана с тумбой под ТВ. Высота навесных шкафов 720 мм.

Бытовая техника – встроенный холодильник, духовой шкаф шириной 600 мм, варочная панель шириной 600 мм, встроенная вытяжка, встроенная СВЧ, встроенная посудомоечная машина.

В проекте есть широкий шкаф под сушилку, пенал  под духовой шкаф и СВЧ, симметричные витринные шкафы слева и справа от вытяжки

Первый шаг

Выставляем фильтры на странице поиска по каталогу:

https://spb.umugol.ru/kuhni-na-zakaz-v-spb/uglovyye-kuhni/s-holodilnikom/so-vstroyennoy-duhovkoy/s-posudomoykoy/s-mikrovolnovkoy?height=720&left=3.1&right=2.0&mode=schemes&page=1

Второй шаг

Переходим на карточку дизайн-проекта:

Готовый проект из каталога
Готовый проект из каталога

https://spb.umugol.ru/konstruktor-kuhni-v-spb/82748

Дорабатываем проект в конструкторе:

  • стол под духовой шкаф меняем на стол под варочную панель с 2 дверьми,
  • удаляем стол с 3 ящиками и шкаф под СВЧ,
  • на их место добавляем пенал под духовой шкаф и СВЧ,
  • стол с 1 ящиком слева от варочной панели меняем на стол с 3 ящиками,
  • удаляем стол с 1 ящиком справа от варочной панели и стол под угловую мойку,
  • в угол ставим угловой стол с полкой,
  • справа от посудомоечной машины ставим стол под мойку шириной 60 см,
  • крайний правый стол с 1 ящиком заменяем на стол с 3 ящиками шириной 35 см,
  • шкаф шириной 40 см с витринными фасадами заменяем на шкаф шириной 45 см с глухими фасадами,
  • перемещаем шкаф-сушилку правее,
  • меняем ширину открытого шкаф с 20 до 15 см.
Схема измененного проекта
Схема измененного проекта

https://spb.umugol.ru/konstruktor-kuhni-v-spb/d250d31809869d400c3a2f366f39ed68

Третий шаг

Для этой кухни мы подобрали эффектные фасады из рамочного МДФ с темно-вишневым профилем и кремовой вставкой. Столешница цвета “Оникс классический бежевый” и светло-желтая стеновая панель сочетаются с цветом вставки фасада:

Готовый дизайн-проект
Готовый дизайн-проект

https://spb.umugol.ru/dizayn-kuhni-v-spb/kuhni-iz-ramochnogo-mdf/d250d31809869d400c3a2f366f39ed68?design=p_vish&wallpanel=svetlo-zheltyj

(Перейдите по ссылке, чтобы посмотреть проект в 3D)