Добавить в корзинуПозвонить
Найти в Дзене

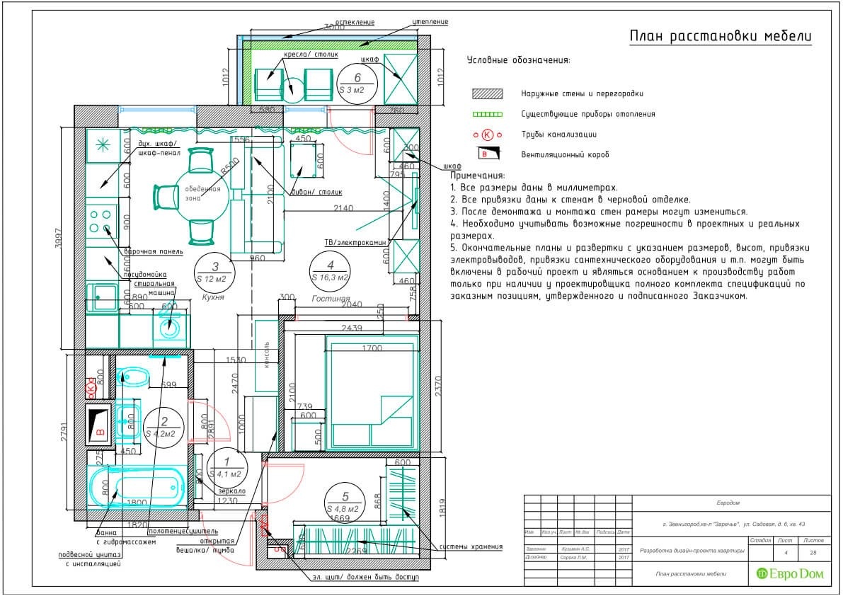
Планировка и ремонт квартиры

Ремонт – это событие, которое рано или поздно приходится переживать практически всем. Однако в настоящее время это не является большой проблемой, так как есть масса вариантов и альтернатив. Что касается строительных материалов, то в них недостатка вы не испытаете, причем ценовая политика настолько разнообразна, что каждый подберет себе подходящий вариант. Если вы не обладаете большими финансовыми

Ремонт – это событие, которое рано или поздно приходится переживать практически всем. Однако в настоящее время это не является большой проблемой, так как есть масса вариантов и альтернатив. Что касается строительных материалов, то в них недостатка вы не испытаете, причем ценовая политика настолько разнообразна, что каждый подберет себе подходящий вариант. Если вы не обладаете большими финансовыми возможностями, то сможете выбрать скромные материалы, если же вы планируете эксклюзив, в таком случае вы не останетесь без покупок.

Косметический ремонт предполагает лишь небольшое обновление здания, которое может производиться довольно часто, так как особых финансовых вложений не требует. Капитальный же ремонт может стоить довольно дорого, так как речь идет о полном изменении дизайна и даже перепланировке.

Если вы задумали такой ремонт, в таком случае необходимо просить помощи у профессионалов, так как самостоятельно вам справиться с такими объемами будет довольно сложно, к тому же перепланировка – ответственное мероприятие, которое следует делать профессионалу, в ином случае вы можете привести дом в аварийное состояние.

В настоящее время строительные компании, которые обладают накопленным опытом, а также грамотными специалистами, с удовольствием разрешат все ваши вопросы, которые у вас возникнут по поводу перепланировки и ремонта вашего помещения.

Чтобы перепланировка прошла удачно, вначале составляется проект, в котором учитывается возможность сноса одних перестенков и в случае необходимости построения других.

-2

Если выясняется, что желаемая стена для сноса является несущей, в таком случае категорически запрещены любые действия в данном направлении.

При личной беседе с дизайнером, который для вас создаст проект перепланировки, вы определите, что именно хотите получить в конечном варианте, а затем уже приступите к его выполнению, согласовав при этом все свои действия с представителями жилищных служб. В настоящее время перепланировку делает огромное количество людей, создавая в своих домах уют.

А компании, которые занимаются ремонтом «под ключ» всегда с большим удовольствием берутся за данный вид услуг. Хотя вам стоит знать, что в финансовом плане такой ремонт обойдется довольно дорого. Однако конечный результат будет стоить всех приложенных вами усилий. Сделайте свою жизнь комфортнее и красивее.