Найти в Дзене
Мечтаево

Слегка не одет: каркасный дом в зиму без отделки

Сдали каркасный дом в Серпуховском районе. Молодая семья с двумя малышами будет жить в потрясающем доме "Графит", со вторым светом, с 4-мя комнатами, в чудесном месте возле леса.
Дом сдаем без внешней отделки, поэтому интереснее будет остановится на планировке, потому что она очень удобная и функциональная.
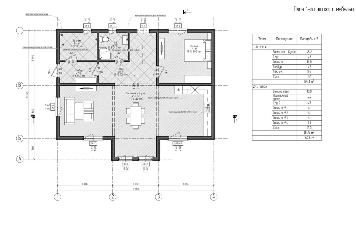
Коттедж в 167, 6 кв.м, 11,3 *9,3 м.
Оглавление
Сдали каркасный дом в Серпуховском районе. Молодая семья с двумя малышами будет жить в потрясающем доме "Графит", со вторым светом, с 4-мя комнатами, в чудесном месте возле леса.

Дом сдаем без внешней отделки, поэтому интереснее будет остановится на планировке, потому что она очень удобная и функциональная.

Коттедж в 167, 6 кв.м, 11,3 *9,3 м, с гостиной – кухней в 45 кв.м, 2 с/у, тамбуром, тех. помещением, холлом, вторым светом, лестничным проемом, 4 спальнями, холлом.

Примеры работ →→→

-2

Технология

Дом в технологии перекрёстного утепления. Когда на основной каркас в 150 мм на стойки 40*45 мм перекрестно набиваются еще балки, и укладывается плита утеплителя в 50 мм. Этот общий контур в 200 мм и обеспечивает энергоэффективность. Самое же главное, почему этот дом будет теплым и супер экономичным – это фундамент УШП.

-4

УШП – это монолитный плитный фундамент, с дренажом, слоем утепления из экструдированного пенополистирола (ЭППС), с коммуникациями для теплого пола по всему периметру первого этажа, с идеально ровной поверхностью без необходимости стяжки для чистовой отделки пола.

В чем разница двойного каркаса и обычного - читайте здесь →→→

-5

Кровельное покрытие – металлочерепица цвета ТО35 РЕ 19 мкм

Окна пластиковые Rehau BLITZ 60 мм и Двери террасные, профиль Rehau Doors, дверь входная металлическая с терморазрывом.

ПО внешней отделке – только основа – это ОСП 9 мм, куда впоследствии установят Cedral.

По инженерии - Вентиляционный и Фановый стоки. Вот такая вот заготовка – но работы тут еще очень много.

Но все же мы рекомендуем вам предусмотреть и запланировать в смету хотя бы внешнюю отделку, ведь материал стен не предназначен для капризов погоды и перепадов температур.. Хрупкие ОСП плиты несмотря на уверения производителей в том, что они спрессованы, в составе не имеют природной воды, могут изменить геометрию, что не позволит потом нанести штукатурку или плитные материалы.

Ссылка на портфолио и примеры работ →→→

-7

Помните, ничего нет более постоянного, чем временное! Наряжайте свои дома в качественную отделку! У нас - это все от винилового сайдинга до имитации камня, очень популярны фиброцементыне панели, а также на пике гибкие плитки от технониколь.

Отделка каркасного дома →→

Успевайте на акцию по каркасным домам! Строим двойной каркас повышенной прочности по цене обычного и фиксируем стоимость на весну! Подробнее жми!

-8

Подписывайтесь на наш дзен-канал! Есть вопросы по строительству? Звоните: +7-495-660-83-34.