Добавить в корзинуПозвонить
Найти в Дзене
Mebel.ru

Маленькая квартира с необычной планировкой. Как дизайнер сделал её удобной

Квартира - сплошные углы. Смотрите, что получилось

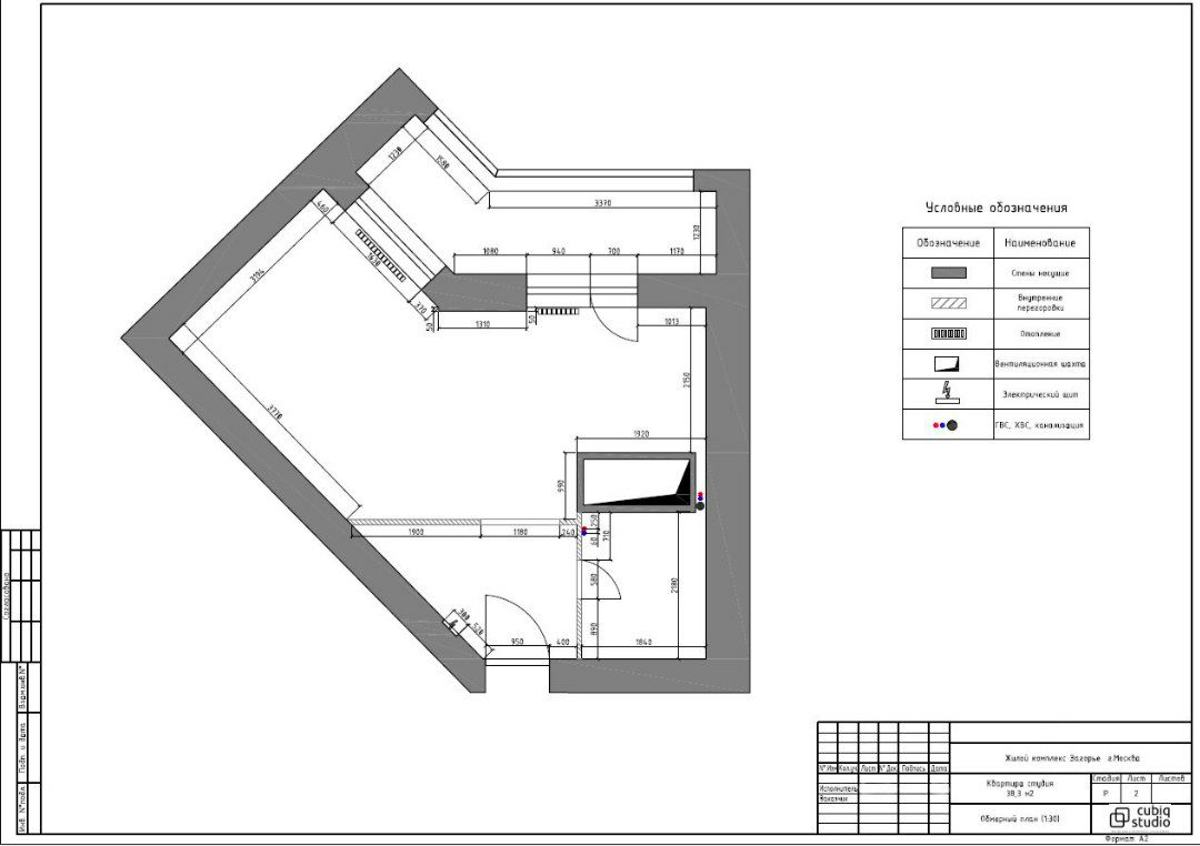
Предупреждаем сразу: для того, чтобы оценить по достоинству эту переделку, сначала стоит как следует рассмотреть изначальный план этой квартиры. Иначе вы рискуете запутаться здесь, как кэрроловская Алиса в Зазеркалье. Линии этой планировки настолько необычны, что мастерство дизайнеров, преобразивших однокомнатную студию в полнофункциональное жильё, вызывает искреннее восхищение. Ну что, отправляемся за белым кроликом?

-2
Задумываетесь о том, чтобы обновить интерьер? На Mebel.ru найдутся варианты, рассчитанные на любой бюджет. Переходите и выбирайте!

Задача перед дизайнерами стояла действительно нетривиальная: заказчица просила обустроить на 38 кв.метрах полноценную спальню, гостиную и кухню с обеденной группой. Скажем сразу: с этим заданием профессионалы, по нашему мнению, справились блестяще. Они выполнили все пожелания, использовали необычные и интересные приёмы и не забыли о таких нужных вещах, как системы хранения.

Прихожая и коридор. Здесь расположили зеркальный шкаф-купе и комод из IKEA. Люстра, выбор обоев, отделка потолка молдингами, широкие плинтуса наводят на мысли о стиле американских 50-х, элементы которого привнесли в этот современный легкий интерьер дизайнеры. И постер на стене у входа в основное помещение этой квартиры – первый реверанс эстетике того времени.

-3

Если общий стиль холла был заметен сразу, то здесь, казалось бы, царит откровенная эклектика. Но, заметьте, эклектика выверенная и тщательно рассчитанная! Оттого и сложное для реализации и совмещения сочетание нескольких очень разнородных функциональных зон не выглядит нагромождением мебели и прочего добра. Оцените сами!

-4

Общий стиль этой квартиры с лёгким оттенком ностальгического романтизма выдержан и здесь – причём в каждой зоне по-своему. Маленькая, но очень современная кухня со столешницей тёплого тона, кухонный яркий фартук в морских тонах с «чешуйчатым» рисунком – минимализм этой части помещения смягчается мягкими песочными шторами и уютной обивкой мебели, примыкающей к столовой зоне. Стилизованные дизайнерские стол и стулья – ещё один намёк на минималистичное ретро прошлого века.

-5

Гостиную зону можно охарактеризовать одним словом: уютно. Здесь царят теплые тона, пастельные и яркие штрихи декора и атмосфера отдыха.

-6

А вот и спальная зона – отделённая от гостиной, кухни и столовой зеркальной стеной, она похожа на настоящее гнездо… причём с телевизором – поворотный механизм крепления обеспечивает хозяйку просмотром любимых сериалов в постели. Необычное и интересное решение, правда?

-7

Балкон – отдельная и тоже многофункциональная зона этой квартиры. Здесь расположена столешница, которая может выполнять роль как барной стойки, так и обеденного и рабочего стола. Здесь же зона кабинета и ещё одна система хранения.

-8

Нам кажется, что дизайнеры справились с задачей блестяще. А как думаете вы?

-9

Больше примеров красивых и современных интерьеров, а также советы о том, как сделать свою квартиру уютней, ждут вас на нашем сайте. Читайте и вдохновляйтесь!

Источник: Мебель.ру.