Добавить в корзинуПозвонить
Найти в Дзене
Алексей Лисовский

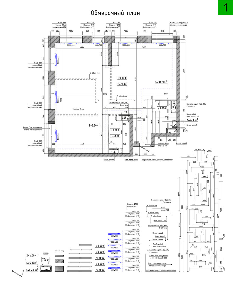
Обмерочный план. Рабочая документация

Правильное оформление рабочих документаций - чертежей для дизайн проектов.
Рубрика " Черчу, черчу, сейчас как вычерчу!"
•⠀
Многие задают вопросы что? Откуда и куда? За несколько лет деятельности сформировался свой опыт и взгляд на оформление рабочих чертежей к дизайн-проектам. Это вовсе не значит, что все должны так подходить к данному вопросы, не претендую - а только публикую свой взгляд . Если

Правильное оформление рабочих документаций - чертежей для дизайн проектов.

Рубрика " Черчу, черчу, сейчас как вычерчу!" 

•⠀

Многие задают вопросы что? Откуда и куда? За несколько лет деятельности сформировался свой опыт и взгляд на оформление рабочих чертежей к дизайн-проектам. Это вовсе не значит, что все должны так подходить к данному вопросы, не претендую - а только публикую свой взгляд . Если у вас будут вопросы по публикации - пишите комментарии - будем обсуждать).

Какой же проект не начинается с выезда на объект и вычерчивания ОБМЕРОЧНОГО плана. Само собой рулеткой всё померили, а ещё обратили внимание на:
•⠀материал ограждающих конструкций.
•⠀направление открывания входной двери/окон.
•⠀отметки и перепады пола.
•⠀высотные отметки по всей площади помещений.
•⠀высоту дверного порога.
•⠀коммуникации с фиксацией всех выпусков и выводов.
•⠀электрическое и техническое оборудование.
•⠀отопительное оборудование и коммуникации.
•⠀габариты простенков на лоджиях/балконах для возможного утепления.
•⠀горизонтальные и вертикальные размеры всей геометрии, включая откосы и т.п.

Обмерочный план
Обмерочный план

Посмотрим, как пойдёт данная рубрика - если будет интересно, сделаю серию публикаций и расскажу про все основные листы рабочих чертежей или на нашем сленге - рабочки. Оставляйте свой фидбэк ;). Спасибо

#allisovski #studio_allisovski #рабочаядокументация #рабочка #техническийдизайн #студиятехническогодизайна #студиядизайна #чертежи #чертеж #обмерочныйплан #обмер #оформлениеобмера #обмерочный #интерьер #автокад #строительныечертежи #ищучертежника #чертежник #чертежидлядизайна #technicaldesign #drawing #design #interiors #designer #interiordesign #autocad #revit #cad #studio