Добавить в корзинуПозвонить
Найти в Дзене
Волочай Иван

В гостях в уютном финском каркасном доме

В доме: толщина стен 60 см, рекуператор, большие пролёты...

Здравствуйте, друзья.

Сегодня я в гостях у Евгения в его прекрасном уютном доме. Дом небольшой и аккуратный, площадь всего 82м2.

Дом выполнен по финскому проекту, по каркасной технологии.

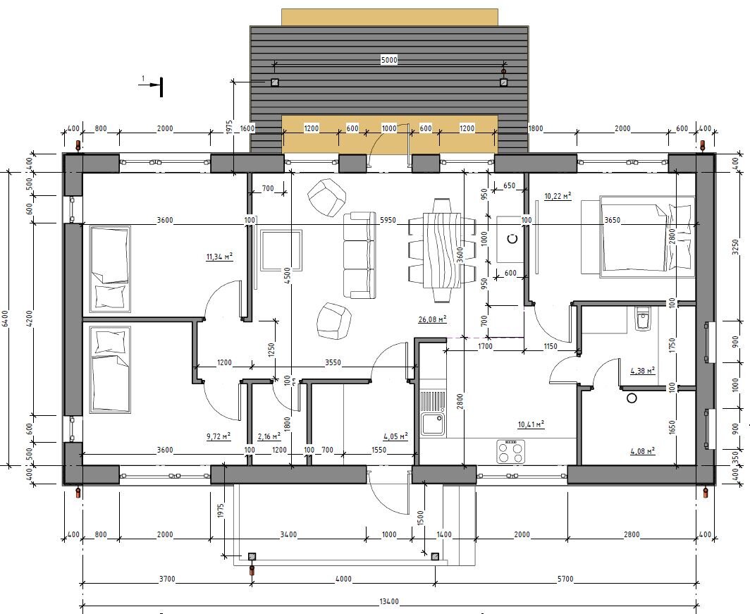
План дома
План дома

Отличительная черта дома - открытая планировка с проходной гостиной - вход по центру дома с одной стороны, выход по центру с противоположной стороны. Планировка удобная - три спальни. Для родителей и двух разнополых детей. А больше и не требуется. В доме есть кладовка, удобная кухня и большой санузел. Центром и украшением дома является печь-камин.

Евгений с семьей въехал в новый дом
Евгений с семьей въехал в новый дом

Евгений строил этот дом сам, применил утепленный финский фундамент - лента и утепленные полы по грунту.

Фундамент УФП
Фундамент УФП

Стены выполнены из каркаса шириной 400 мм. Этот каркас необычный именно своей конструкцией, по типу стоек Ларсена. Две вертикальные доски креплены между собой перемычкой. В качестве перемычки Евгений применил металлозубчатые пластины - МЗП. Кровля выполнена в виде ферм также на металлозубчатых пластинах МЗП.

Возведение каркаса на МЗП
Возведение каркаса на МЗП

Это позволило сделать перекрытие с длиной пролета больше 6 метров, а именно 6,4 м.

Фермы на МЗП сбольшими пролетами
Фермы на МЗП сбольшими пролетами

Утепление по перекрытию 500 мм - вентилируемый чердак. В качестве утепления в стенах и перекрытию использовалась эковата. Эковата - это современный насыпной утеплитель на органическом связующем с добавлением антипиренов (веществ препятствующих горению).

Разрез дома, на котором видно устройство чердака
Разрез дома, на котором видно устройство чердака

На крыше уложен фальц.

-8

Отопление обеспечивается конвекторами, электрическим теплым полом и печью растапливаемой больше для красоты чем для необходимости. Благодаря мощному утеплению (стены 400, перекрытие 500) затраты на отопление в зимний месяц составляют 1500 рублей.

Отличительной чертой инженерной составляющей этого дома, является наличие системы принудительной вентиляции с рекуперацией. Это вносит существенный вклад в экономию по отоплению, т.к. обычно потери на вентиляцию составляют 30% энергозатрат всего дома. Рекуператор снижает эти потери на 80-90 %. Немаловажно то, что рекуператор обеспечивает дом свежим и чистым воздухом, в доме полностью исключено появление сквозняков, т.к. окна не требуется открывать для проветривания.

Рекуператор и система принудительной вентиляции
Рекуператор и система принудительной вентиляции

Фальцевая кровля темно-серого цвета в сочетании с красно-бордовым деревянным фасадом и белыми элементами придает определенный шарм этому дому. Дом производит сильное визуальное впечатление. Особенно глядя на толстые стены, глубокие откосы в окнах. Крепко сбитый толстячок)

Первая зимовка в доме
Первая зимовка в доме

Вы можете ознакомиться с этим домом поближе на вот этом видео:

По всем вопросам пишите ivan@volochai.ru

Андрей прожил в этом доме более 3 лет, он очень доволен своим домом. А сейчас у него более грандиозные планы, поэтому этот дом решил продать. Вот его объявление: https://spb.cian.ru/sale/suburban/237403821/