Добавить в корзинуПозвонить
Найти в Дзене

Интерьер: Квартира, в которой нашли еще одну комнату

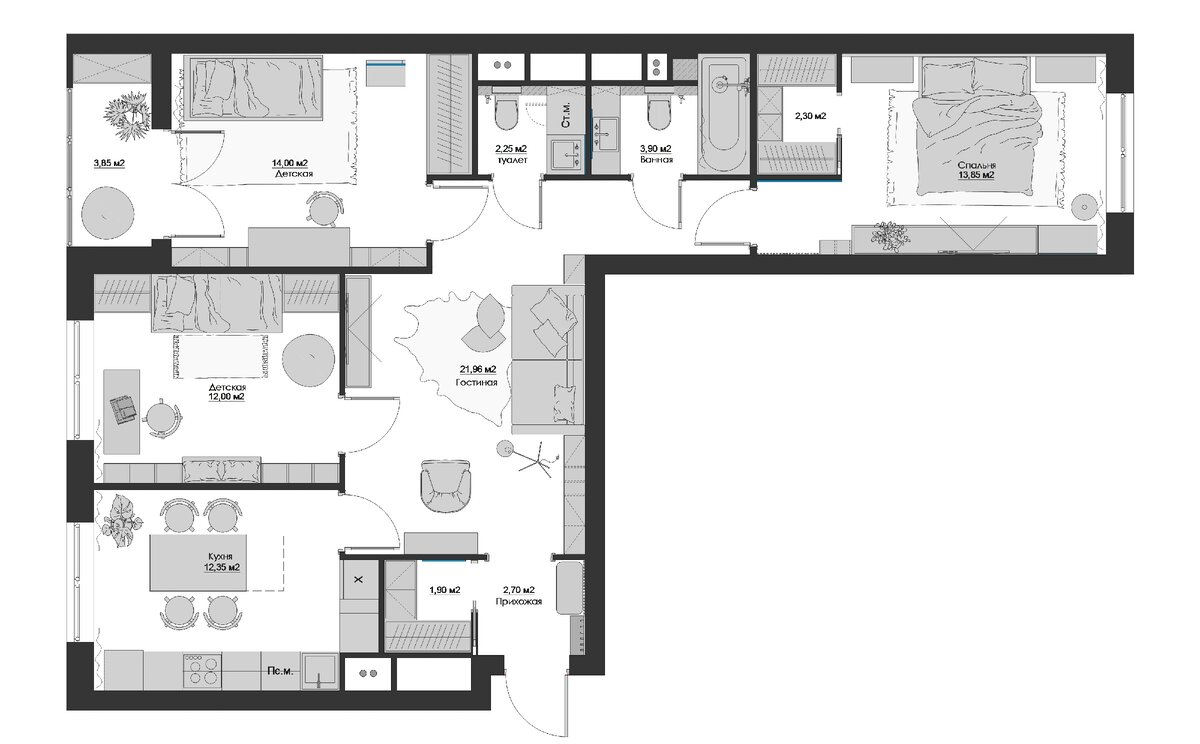
Проекты с перепланировкой – это и сложно, и интересно. Но когда перепланировка исполняет заветную мечту заказчика, то ещё и очень приятно. Недавно мне довелось исполнить как раз такую мечту. И оказалась она о гостиной молодой семьи с двумя детками. Мама по образованию экономист, но сейчас – в декретном отпуске, занимается дочками (2 года и 6 лет) и домом. Папа – программист. Вся семья активно готовится к укотовлению. В ближайшем будущем в квартире должен появиться первый домашний питомец – кот-мурлыка. Трёшки для всех-всех-всех нужд четырёх человек (и, в планах, одного кота) не хватало. Родители при первой встрече сразу же описали своё заветное желание: гостиная, где одновременно могут находиться десять человек и более. Но это желание вступало в противоречие с необходимостью отдельных полноценных детских для каждой из девочек. Однако компромисс был достигнут :) Кухня и одна из комнат «отдали» часть своей площади, таким образом объединив этот метраж с коридором. Вот мы и получили гостин

Проекты с перепланировкой – это и сложно, и интересно. Но когда перепланировка исполняет заветную мечту заказчика, то ещё и очень приятно.

Недавно мне довелось исполнить как раз такую мечту. И оказалась она о гостиной молодой семьи с двумя детками. Мама по образованию экономист, но сейчас – в декретном отпуске, занимается дочками (2 года и 6 лет) и домом. Папа – программист.

Вся семья активно готовится к укотовлению. В ближайшем будущем в квартире должен появиться первый домашний питомец – кот-мурлыка.

Трёшки для всех-всех-всех нужд четырёх человек (и, в планах, одного кота) не хватало. Родители при первой встрече сразу же описали своё заветное желание: гостиная, где одновременно могут находиться десять человек и более. Но это желание вступало в противоречие с необходимостью отдельных полноценных детских для каждой из девочек.

Однако компромисс был достигнут :)

Кухня и одна из комнат «отдали» часть своей площади, таким образом объединив этот метраж с коридором. Вот мы и получили гостиную.

Планировочное решение
Планировочное решение

Удалось выделить еще зону прихожей с гардеробной для верхней одежды. Да, гостиная получилась… без окон. Но это как раз та комната, где окна не играют существенной роли. При этом мокрые зоны (ванную и туалет) перепланировка не затронула.

Гостиная
Гостиная
Гостиная
Гостиная
Гостиная
Гостиная
Гостиная
Гостиная
Гостиная
Гостиная

В итоге две детские практически сравнялись по площади, кухня чуть уменьшилась, но все приборы (мойка, варочная индукционная панель, вытяжка) остались на своих местах.

Наверху минимальный набор подвесных шкафчиков, куда поместили вытяжку и сушку для посуды. Такое решение сыграло в плюс эстетической составляющей: на виду у всех красуется плитка кухонного фартука с ромбами.

Кухня-столовая
Кухня-столовая
Кухня-столовая
Кухня-столовая

Кухонный гарнитур выглядит компактным, но он достаточно вместительный. Для системы хранения предназначена высокие колонны-шкафы в нише. В центре кухни поставили обеденный стол, чтобы вся семья могла собираться за завтраком или ужином.

Кухня-столовая
Кухня-столовая
Кухня-столовая
Кухня-столовая

Один санузел отвели под ванную комнату, а второй – под технический туалет со стиральной машинкой. Кстати, в ванной удалось установить второй унитаз, что для семьи из четырёх человек весомый плюс.

Для своей спальни родители выбрали кровать без изголовья и ножек, но зато с подъёмным механизмом. Изголовье и тумбочки были изготовлены отдельно на заказ.

Спальня родителей
Спальня родителей
Спальня родителей
Спальня родителей

Также в спальне для взрослых нашлось место для бьюти-столика и зеркала «от пола до потолка» для примерки одежды.

Спальня родителей
Спальня родителей
Спальня родителей
Спальня родителей
Спальня родителей
Спальня родителей
Спальня родителей
Спальня родителей
Спальня родителей
Спальня родителей

В детскую для младшей дочки выбрали кровать-домик, а для старшей – кровать «как у взрослых».

Детская для старшей девочки
Детская для старшей девочки
Детская для старшей девочки
Детская для старшей девочки
Детская для старшей девочки
Детская для старшей девочки
Детская для старшей девочки
Детская для старшей девочки
Детская для старшей девочки
Детская для старшей девочки

Остальную мебель для детей, в том числе и для рабочих мест, я выбирала максимально похожую, чтобы сёстрам не было обидно, что кому-то досталось что-то оригинальное.

«Фишкой» квартиры стали принты. В спальне родителей «поселились» обои с обезьянками, а в гостиной – фотопанно с туманным лесом.

Гостиная
Гостиная

Для старшей выбрали обои с пёрышками. Для детской младшей девочки в использовали фотопанно с воздушными шарами.

Детская для младшей девочки
Детская для младшей девочки
Детская для младшей девочки
Детская для младшей девочки
Детская для младшей девочки
Детская для младшей девочки
Детская для младшей девочки
Детская для младшей девочки
Детская для младшей девочки
Детская для младшей девочки
Детская для младшей девочки
Детская для младшей девочки

Большая часть стен квартиры – покраска, простая, но качественная. В спальне и кухне – декоративная штукатурка. Отделочные материалы мы подбирали с учётом экологичности и стоимости. Потому в дизайне так много натуральных материалов. В гостиной вы видите - присутствует эффектная мозаика из кокосового ореха в портале за диваном в гостиной.

Гостиная
Гостиная
Гостиная
Гостиная

Некоторые участки стен декорированы рейкой из массива дерева, в прихожей открытую вешалку для одежды защитили пробкой.

Прихожая
Прихожая
Прихожая
Прихожая
Прихожая
Прихожая

Ну, а все шторы в квартире выполнены из льняной ткани. Жаль, бюджет заказчиков не позволял массив в качестве напольного покрытия, потому вместо него – ламинат, но хорошего качества - Haro. А на кухне – керамогранит под дерево.

Кухня-столовая
Кухня-столовая

От идеи натяжного потолка клиенты отказались ещё на стадии переговоров, так появились гипсовые светильники, плавно выступающие из потолка и создающие иллюзию единого целого с ним.

Заказчики представляли свою квартиру в светлых тонах. Однако, как вы видите, вышло так, что из общей гаммы выбивается насыщенная зелёная гостиная и туалет, выполненный в синих тонах.

Гостиную выделили цветом специально, чтобы подчеркнуть её как акцент среди других их комнат. В комнате старшей девочки кстати тоже присутствуют зелёные акценты. Она изначально призналась в любви к зелёному цвету и я учла это при разработке проекта. Родители для своей спальни выбрали благородную серо-розовую гамму, которая даёт отдых глазам.

Коллекцию плитки для ванной выбрали из новинок у Kerama Marazzi: так появились растительные мотивы.

Ванная комната
Ванная комната
Ванная комната
Ванная комната
Ванная комната
Ванная комната
Ванная комната
Ванная комната

Для туалета взяли плитку под дерево в сочетании со строгой геометрией.

Туалет
Туалет
Туалет
Туалет

Более половины мебели подобрали в каталоге IKEA, остальное – мебель на заказ и имеющиеся в наличии модели российских фабрик. Обе гардеробные выстроены с расчётом на систему «Альгот» от IKEA.

Сложно чётко определить стиль этой квартиры, ведь при разработке дизайна мы не придерживались какого-то одного направления. Использование натуральных материалов (кокоса, пробки, реек, дерева) отсылает к экостилю, а простота и чёткость форм и линий – к современному дизайну интерьера. В итоге получился лёгкий микс изящной простоты и домашнего уюта для семьи, которая ценит каждую минуту общения с близкими.

Дизайнер и автор проекта Юля Чернова, студия дизайна интерьера 3DGroup

Реализацию этого проекта можно посмотреть на нашем сайте

Было интересно? Ставьте 👍 и подписывайтесь на канал!

Больше полезного:

Связаться со мной и заказать дизайн-проект можно написав в телеграм