Добавить в корзинуПозвонить
Найти в Дзене
Дом и баня из бруса

Проекты угловых бань

Особенностью угловых бань является их необычная форма. В классическом угловом варианте основная часть помещения (парилка и моечная) строится перпендикулярно, под углом 90⁰ к дополнительным комнатам для проведения досуга.
Зачем строить угловую баню, и какие преимущества она имеет перед прямоугольным строением?
Печь в таких строениях находится посередине между парной и комнатой отдыха, так что она
Оглавление

Особенностью угловых бань является их необычная форма. В классическом угловом варианте основная часть помещения (парилка и моечная) строится перпендикулярно, под углом 90⁰ к дополнительным комнатам для проведения досуга.

Зачем строить угловую баню, и какие преимущества она имеет перед прямоугольным строением?

  1. Печь в таких строениях находится посередине между парной и комнатой отдыха, так что она способна обогревать все помещение целиком, что особенно актуально в зимнюю пору.
  2. Угловые бани разработаны специально для установки на участках небольших размеров либо во дворах, где уже присутствуют дополнительные постройки, клумбы, садовая мебель и другие элементы декора. Здание размещается обязательно в одном из углов участка, а потому не занимает много места и не нарушает общей композиции.
  3. Здание, которое по своей форме напоминает угол либо треугольник – довольно необычное и интересное архитектурное решение.

Кроме всех своих дополнительных преимуществ, компактные угловые бани, изготовленные опытными специалистами, отлично справятся со своей основной целью – помочь человеку либо компании людей хорошо провести время.

Угловая бани из бруса

Компактное строение оснащено тамбурным помещением, что дополнительно способствует сохранению теплой температуры в здании даже в самую морозную пору.

Баня угловая

Данный проект занимает совсем немного места на участке, но в то же время здание является довольно вместительным и практичным.

-2

Комната отдыха и помывочная здесь совмещены, что позволяет сохранить больше свободного пространства в помещении и сэкономить на затратах на строительные материалы.

-3

Двухэтажная угловая баня

Представленный проект имеет очень интересную треугольную форму и будет оригинально смотреться на любом дачном участке.

-4

На первом этаже расположены все основные составляющие (парная, помывочная, тамбур и санузел), а на втором этаже находятся дополнительная комната отдыха, где можно обустроить кухню, бильярдную или даже мастерскую и очень вместительный балкон, на котором в летнее время хорошо проводить романтические свидания и дружеские посиделки.

-5

Данный проект очень примечателен благодаря необычному дизайну и просторной открытой веранде.

Пример углового размещения бани с досуговым комплексом

-6

На веранде установлена печь-барбекю, так что в теплое время года, здесь можно проводить барбекю-вечеринки.

-7

Внутри здания размещены парилка, раздельные помывочная и санузел и три комнаты для отдыха и досуга, которые можно обставить на собственный вкус.

-8

Угловая баня с террасой и барбекю

Проект с террасой и барбекю придется по душе всем любителям бани и традиционного отдыха на природе, поскольку здесь совмещаются все компоненты для идеального проведения досуга.

-9

Угловая бани на 10 человек

Прекрасный проект с вместительной парилкой и открытой террасой, где может свободно разместится компания до 10 человек.

-10

Баня с бассейном на 129 кв. м.

Элегантное строение гарантировано украсит ваш участок и придаст ему статусности. Обустроенная внутри здания комната с бассейном в более чем 40 квадратных метров с комфортом охладится после водных процедур.

-11

Здание имеет основной (с террасы) и дополнительный (с крыльца) вход, обустроено отдельными кухней и гостевой комнатой, раздельным санузлом и комфортной парной.

-12

На втором этаже располагается дополнительная гостевая комната, где можно обустроить спальню или бильярдную комнату, что позволит использовать здание, как гостевой домик либо даже основной дом.

-13

Баня с верандой и барбекю 8x9

Удивительно компактный и в то же время очень миловидный и вместительный проект строения с барбекю – идеальный выбор для людей, которые озабочены вопросом комфортного проведения досуга.

-14

Закрытая веранда с большими окнами позволяет комфортно проводить время в бане и в летнюю и в зимнюю пору. Также здание вмещает в себя небольшую комнату отдыха, помывочную, парную и санузел.

-15

Баня с верандой и барбекю 8x10

Небольшую баню с отдельной комнатой барбекю смело можно назвать удачным архитектурным решением, поскольку здание размерами 8х10 фактически умещает в себя просторную кухню, совмещенную со столовой, гостиную, раздельный санузел и парилку.

-16

Разработчиками предлагается также установка камина в комнате для отдыха для поддержания атмосферы уюта и возможности автономного отопления всех помещений бани.

-17

Фактически в таком здании можно не только с комфортом проводить время досуга, но даже устраивать праздничные вечеринки, размещать неожиданно приехавших гостей и жить самостоятельно.

-18

Двухэтажная баня из клееного бруса 94 кв.м.

Здании из клееного бруса отличаются не только своей надежностью, но и большой скоростью сборки строения. Заказав постройку данного проекта, вы сможете наслаждаться процедурами на собственном участке в самые короткие сроки.

-19

Двухэтажная баня с отдельной котельной комнатой очень удобна спроектирована с учетом в первую очередь комфортности и гигиеничности посещения парилки и проживания в доме.

-20

На первом этаже размещены все основные помещения, включая туалетную комнату, кухня и гостиная, а второй этаж идеально подойдет для оборудования на нем спальни. Таким образом, данное строение может прекрасно исполнять не только свои основные функции, но и служить прекрасным местом для проживания небольшой семьи.

-21

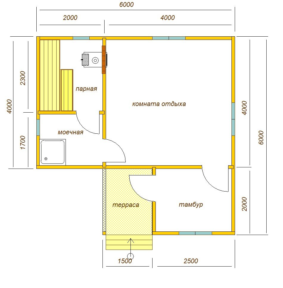
Баня г-образной формы

Проект г-образной формы разработан специально для размещения в углу участка. Строение объединяет в себе отдельные раздевалку, парную, помывочную, санузел и тамбур,  также просторную комнату для отдыха.

-22