Найти в Дзене
lovelivenow

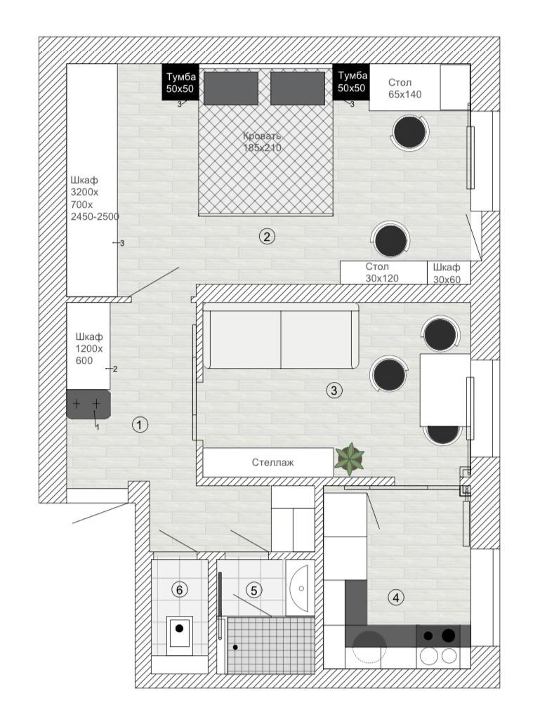
МЕБЕЛИРОВКА №1

Мебелировка квартиры #1 была разработана для молодой пары. Площадь квартиры 42 кв.м.
▪️КОРИДОР
Заходя в квартиру, мы видим на левой стене настенную вешалку для верхней одежды и под ней пуф с полками для хранения обуви. За ними идёт шкаф для верхней одежды. На стене справа от входа висит большое зеркало.
Было принято решение объединить проходом кухню и гостиную. Вход на кухню через коридор

Мебелировка квартиры #1 была разработана для молодой пары. Площадь квартиры 42 кв.м.

▪️КОРИДОР

Заходя в квартиру, мы видим на левой стене настенную вешалку для верхней одежды и под ней пуф с полками для хранения обуви. За ними идёт шкаф для верхней одежды. На стене справа от входа висит большое зеркало.

Было принято решение объединить проходом кухню и гостиную. Вход на кухню через коридор заложить и организовать в конце коридора зону постирочной со стиральной машиной, спрятанной в шкаф, и навесными шкафами под потолок. Рядом стоит узкий, но глубокий шкаф под потолок, в котором будет удобно хранить сушилку для белья, гладильную доску и швабру.

▪️КУХНЯ И ЗАЛ

Кухню и зал решили обьединить за счёт проема, который при необходимости закрывается раздвижной дверью-купе. Тем самым мы создали на кухне удобную зону готовки, а обеденную зону перенесли в комнату. Так же в комнате встал раскладной диван, на котором могут разместиться гости хозяев. Напротив дивана в углу стоит шкаф-витрина под потолок со стеклянными дверцами в средней части, внизу и вверху дверцы глухие. Рядом с ним подвесной модуль под телевизор. Под этим модулем отлично встала база для робота-пылесоса.

Двери в гостиную раздвижные для экономии пространства (одно из пожеланий заказчиков).

▪️СПАЛЬНЯ

Слева от двери стоит встроенный шкаф купе во всю стену до потолка, в котором без проблем поместятся все необходимые вещи.

Напротив входа стоит большая двухспальная кровать (180х200) с подъемным механизмом, где разместится все постельное белье или сезонная обувь. По краям от неё стоят прикроватные тумбы с выдвижными ящиками. Рядом с кроватью стоит длинный компьютерный стол с возможностью размещения принтера (пожелание заказчиков), а напротив столик для макияжа с зеркалом с узким шкафом для хранения всяких женских штучек.

▪️ВАННАЯ

Было принято решение не совмещать ванную и с/у. По желанию заказчика в ванной комнате установлена душевая кабина, рядом с ней раковина.

▪️С/У

В санузле стоит инсталляция.

Отдельно с заказчиком были разработаны планы освещения, электрики, была спроектирована кухня и шкаф-купе в спальне.

Другие темы о дизайне в профиле❤️