📐📌Заказали дизайн проект у дизайнера, вот 2 варианта, помогите определиться. Плюсы и минусы расписала.
1 Вариант планировки
Плюсы ➕
🧱Не надо сносить стены (а значит дешевле💵)
📐📌Заказали дизайн проект у дизайнера, вот 2 варианта, помогите определиться. Плюсы и минусы расписала.
1 Вариант планировки
Плюсы ➕
🧱Не надо сносить стены (а значит дешевле💵)
...Читать далее
Оглавление
📐📌Заказали дизайн проект у дизайнера, вот 2 варианта, помогите определиться. Плюсы и минусы расписала.
1 Вариант планировки
Плюсы ➕
- 🧱Не надо сносить стены (а значит дешевле💵)
- ☀️ В гостиной много света и выход на балкон
- 💻 В гостиной удобнее расположить рабочее место
Минусы ➖
- 🧸Мало места в детской (некуда поставить шкаф)
- 🚪 Шкафы в коридоре в проходной зоне
- 🦻Спальня родителей рядом с детской (двери в двери) плохая шумоизоляция
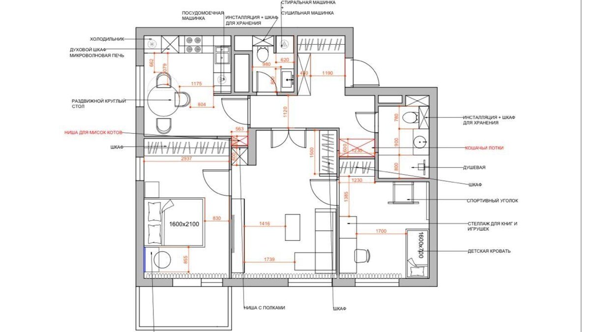
2 Вариант планировки
Плюсы ➕
- 🍴👶🏻 За счёт ненужного коридора прибавилось место на кухне и в детской, есть место для кошачьих лотков🐈
- 👈👉 Спальни удалены друг от друга
- 📦 Большой шкаф в спальне
Минусы ➖
- 💠В гостиной всего одно небольшое окно.
- 💸Дороже стоимость перепланировки
- 💻 Непонятно где сделать рабочий стол 🤷♀️
У кого то есть проходная гостиная или балкон в спальне? может у вас рядом детская, это удобно?