Добавить в корзинуПозвонить
Найти в Дзене
Андрей Слабов

Дизайн квартиры «как в отеле». Разбираем новый проект.

«Хотим квартиру, которая будет похожа по дизайну на отель. Хочется, чтобы каждый день в ней был особенным. Нам нравятся отели в Дубае, так вот, нужно сделать круче!!)» - именно с таким запросом ко мне пришли клиенты по одному из последних проектов. В условиях пандемии и отчасти закрытых границ такое желание вполне нормальное. Иногда хочется абстрагироваться от порядком надоевшей рутины.

«Хотим квартиру, которая будет похожа по дизайну на отель. Хочется, чтобы каждый день в ней был особенным. Нам нравятся отели в Дубае, так вот, нужно сделать круче!!)» - именно с таким запросом ко мне пришли клиенты по одному из последних проектов. В условиях пандемии и отчасти закрытых границ такое желание вполне нормальное. Иногда хочется абстрагироваться от порядком надоевшей рутины. Перенестись хотя бы мысленно туда, где нет проблем, солнце круглый год и все радует глаз. Поэтому новая задача и для меня отчасти стала отдушиной!

Владельцам апартаментов в башне Neva Tower хотелось каких-то необычных и нестандартных решений. Они предполагали, что возможно в будущем будут сдавать эту квартиру, поэтому заранее хотели выделить ее среди толпы скучных конкурентов на рынке недвижимости красивым, не похожим на классические варианты дизайном.

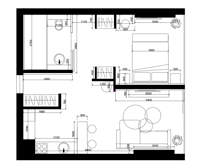
Итак, изначальные данные:

Небольшая квартира площадью 53,7 кв.м. Собственник просил сохранить две комнатны – спальную и гостиную.

-2

При работе над проектом я использовал свои любимые приемы и решения. Во-первых, максимально продуманная и комфортная планировка, скрывающая от глаз все места для хранения. Например, в проекте задумана антресоль. Во-вторых, там где это возможно и уместно раздвигал визуально пространство с помощью зеркальных стен и глянцевых поверхностей. В-третьих, чтобы сделать пространство особенным, не боялся использовать такие сложные и необычные интерьерные решения как 3D панели, перфорированные перегородки и настенные барельефы. Продумал до мелочей все световые решения, что позволило сделать квартиру пространство более глубоким и объемным. Помимо классических решений добавил реечную световую конструкцию и торшер-манекен, спроектированный по моим эскизам.

Это если кратко. А теперь давайте разберем все в деталях.

Чтобы добавить квартире легкого курортного настроения, я выбрал теплую пастельную цветовую палитру с бирюзовыми акцентами, которые должны напоминать о изумрудной водной глади морей и океанов.

Золотые перфорированные металлические перегородки, которые служат раздвижными дверями из спальной комнаты в ванную, добавляют проекту дубайской роскоши.

-5

Путь в спальную комнату ведет через две гардеробные – мужскую и женскую.

-6

Гостиная и кухня – единое пространство. Для более рационального использования пространства вместо стола в проекте предусмотрена барная стойка.

За диваном расположилась зеркальная стена, декорированная деревянными рейками.

-8

3D панели в виде нарезанных шестигранников и ромбов служат еще одним ярким акцентом.

Редактировать галерею
Редактировать галерею

Главной деталью и центром притяжения ванной комнаты является искуственно состаренный барельеф из травертина.

-10

Для тех, кто хочет всегда быть на связи, подписывайтесь на мой блог здесь и на мой личный аккаунт в Instagram.

А чтобы быть в курсе всех наших новостей, вы можете подписаться на аккаунты моих дизайн-студий Cliff Rock и DM Studio.