Найти в Дзене
Первый кадастровый

Зачем нужна геодезическая исполнительная схема

Что нужно показать на исполнительной схеме, кто её должен оформлять и где можно заказать в Москве и области.
Оглавление

Когда на руках есть результаты исполнительной съемки всех элементов на строительном объекте, то на основании их составляют исполнительную геодезическую схему. На ней отображают линейные и угловые размеры, значение координат, расстояния между объектами, размеры диаметров, различных уклонов, отметок и иных геометрических параметров.

Именно по исполнительной схеме и определяется, насколько проектная документация соответствует требованиям нормативных актах и документов. По этой схеме также оценивается и качество строительства и наносятся новые элементы строительства на топографические планы.

Исполнительная геодезическая съёмка
Исполнительная геодезическая съёмка

Оформление данного документа довольно сложная и кропотливая задача, так как требуется высокая точность измерений. Поэтому оформлением исполнительных геодезических схем, как правило, занимаются специалисты с большим опытом работы и высокой квалификацией. Такие инженеры работают в компании «Гео Плюс».

Основные требования при оформлении исполнительной схемы

После окончания монтажа на строительстве составляются исполнительные схемы. Вся информация и все данные, которые заносятся в исполнительную схему, должны точно соответствовать действительности. Кроме этого, необходимо, чтобы схемы были представлены специалистами организаций, которые будут проводить монтажные и наладочные работы на объекте.

Например, если идет речь об исполнительных схемах трубопроводов, то в обязательном порядке должны быть указаны места, где:

  • произведено подключение временного трубопровода;
  • сделаны врезки спускных линий;
  • именно установлены воздушники;
  • сбрасывается вода;
  • установлены временные заглушки.

На схеме должны быть четко отображены все нюансы проведенных работ. Скачать пример исполнительной схемы.

Пример исполнительной схемы
Пример исполнительной схемы

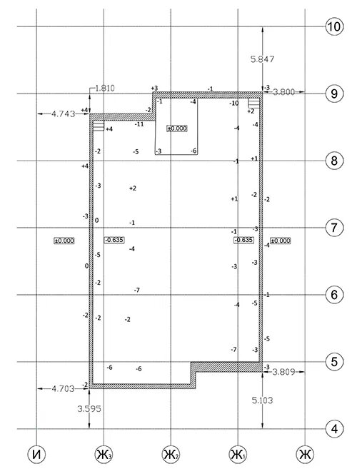
Составление схемы котлована

Схему котлована начинают оформлять после зачистки дна. Сначала проводится нивелирование поверхности, а по его результатам определяется внутренний контур. Далее делаются отметки дна и замеряется положение осей. Само нивелирование следует проводить по квадратам, которые имеют определенный размер. Это позволяет четко определить имеются ли отклонения от запроектированных значений.

Пример исполнительной схемы котлована
Пример исполнительной схемы котлована

Где заказать исполнительную схему

Исполнительная схема, как и вся геодезическая документация, очень важный документ. Составлять ее и вести все расчеты имеют право только специалисты высокого класса. В этом случае будет соблюдена достоверность и точность геометрических данных на любом строящемся объекте.

Если вы позвоните по нашему телефону или оставите заявку, то сможете узнать о сроках проведения исполнительной съёмки, а также ее приблизительной стоимости в зависимости от объекта. С другими геодезическими услугами вы можете ознакомиться на нашем сайте.

Геодезист
Геодезист

Источник