Добавить в корзинуПозвонить
Найти в Дзене
Home and garden

Строительство дома в Финляндии. Особенности проектирования

Когда выбран участок, недостаточно самим решить, что и где строить. Это в России, хочешь - пирожное, хочешь - мороженное. Один стоит скворечник, другой 3-этажную домину из палок по собственному проекту. В Финляндии нельзя строить без архитектора и прораба. Архитектор должен иметь соответствующее образование и иметь разрешение на проектирование. Он делает все чертежи. Прораб руководит строительством. Многие финны строят дома сами, но прораб должен приезжать обязательно и проверять, все ли сделано правильно, указывать на недочеты, которые нужно исправить. Требований к проекту достаточно много, особенно если дом строится в городе. Например, материал дома, материал крыши, количество этажей, покрытие подъездных дорожек, даже цвет иногда. Есть требования к энергетическому классу дома, т.е. строить из говна и веток нельзя, жесткие требования к материалам (никакого пенопласта и прочего пожароопасного), к расстоянию построек от края участка. В России из этого только с требованиями к этажности

Когда выбран участок, недостаточно самим решить, что и где строить. Это в России, хочешь - пирожное, хочешь - мороженное. Один стоит скворечник, другой 3-этажную домину из палок по собственному проекту.

В Финляндии такое построить просто невозможно. Дом в 20 км от МКАД
В Финляндии такое построить просто невозможно. Дом в 20 км от МКАД

В Финляндии нельзя строить без архитектора и прораба. Архитектор должен иметь соответствующее образование и иметь разрешение на проектирование. Он делает все чертежи. Прораб руководит строительством. Многие финны строят дома сами, но прораб должен приезжать обязательно и проверять, все ли сделано правильно, указывать на недочеты, которые нужно исправить.

Требований к проекту достаточно много, особенно если дом строится в городе. Например, материал дома, материал крыши, количество этажей, покрытие подъездных дорожек, даже цвет иногда. Есть требования к энергетическому классу дома, т.е. строить из говна и веток нельзя, жесткие требования к материалам (никакого пенопласта и прочего пожароопасного), к расстоянию построек от края участка. В России из этого только с требованиями к этажности можно столкнуться и к расстоянию до построек.

Некоторые требования могут показаться смешными. Например, в проекте обязательно должен быть шкаф для принадлежностей для уборки, в техническую комнату должен быть отдельный вход с улицы, а порог входных дверей не должен быть высоким, чтобы инвалидам было удобно заехать.

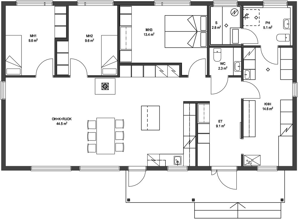
План одного из домов от jopera.fi.
План одного из домов от jopera.fi.

Требований еще миллион и они все учитываются в проекте архитектором (вы же помните, что без него нельзя). Хозяева с ними сталкиваются, когда хотят сделать так, как не положено.

Нашим друзьям очень повезло - они познакомились с архитектором, живущим недалеко, пока выбирали участок. Финны очень дружелюбные и охотно подходят поговорить. Когда определились с участком, к нему и обратились - рассказали что хотим, где выходы-входы, а он сделал все чертежи и подготовил всю документацию. Архитектор очень помог не только с проектом, но и с процедурами оформления разрешений и документами, давал полезные советы и контакты.

"Из-за местных требований, нам нельзя было использовать черепицу для кровли, на выбранном участке выдавали разрешение только на одноэтажное строительство, а подъездную дорожку к дому нельзя асфальтировать или выложить плиткой - только щебень или крошка.
Из-за требований к расстоянию построек от края участка нам и пришлось спилить сосны, иначе у нас гараж не вписывался. Был вариант делать гараж меньше, но решили пожертвовать деревьями.
Сауна есть в любом проекте. Это не обязательно, но если когда-то продавать дом, то без сауны это сделать сложно. Мы пользуемся редко, но пусть будет."

КОММУНИКАЦИИ

Устройство отопления, водоснабжения, вентиляции (называются общим словом LVI - lämmitys-, vesijohto- ja ilmanvaihtotekniikka) и электричества строго регламентированы. Под них делаются отдельные проекты, а ответственность за соответствие требования несут сертифицированные специалисты и фирмы.

Что-то можно что-то сделать самостоятельно, но строго по их проекту, и они должны приехать, все проверить и выдать сертификат.

"Мы из этого только вентиляцию частично делали сами. "

На этапе проектирования нужно было выбрать тип фундамента, материалы стен, крыши и цвет дом. Для каркасного дома почти все без вариантов, только толщина утеплителя может варьироваться.

Забегая вперед. Дом уже построен и друзья в нем постоянно живут.
Забегая вперед. Дом уже построен и друзья в нем постоянно живут.

Продолжение: Строительство дома в Финляндии. Начало строительных работ.

Началась эта история с выбора участка. Как выбирают участок для строительства в Финляндии, я рассказала в первой части.