Найти в Дзене
Планировка

Типовой проект одноэтажного летнего садового домика 6х6м

Простой летний садовый домик проще всего заказать готовым, привезут и соберут за один день.
Но для тех, кто хочет самостоятельно построить типовой летний домик выкладываю данный проект. Проект выполнен в 1986 ЦНИЭП Граждансельстроем. Включает в себя полный комплект чертежей и спецификации материалов.
Самостоятельная постройка обойдется значительно дешевле готового варианта, да и материалы можно

Простой летний садовый домик проще всего заказать готовым, привезут и соберут за один день.

Но для тех, кто хочет самостоятельно построить типовой летний домик выкладываю данный проект. Проект выполнен в 1986 ЦНИЭП Граждансельстроем. Включает в себя полный комплект чертежей и спецификации материалов.

Самостоятельная постройка обойдется значительно дешевле готового варианта, да и материалы можно выбрать качественные. Предназначен для сезонного проживания. Размеры в плане 6х6 м.

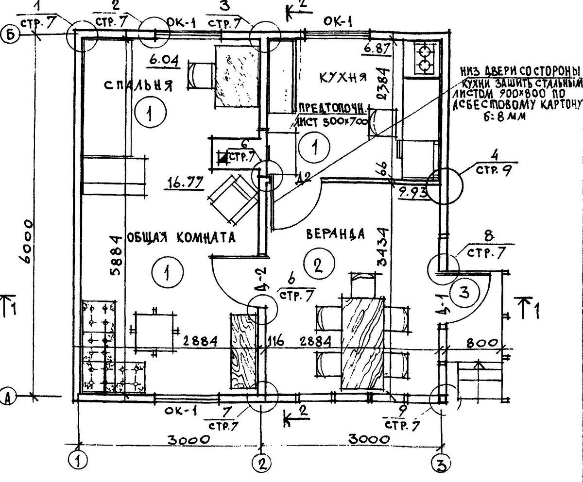
Планировка домика
Планировка домика

Отопление печное.

Кстати для малых строений, печное отопление в сочетании с электрическими конвекторами для сезонного проживания будет наиболее экономичным.

-2
Фасады.
Фасады.
-4
-5
-6
Пояснительная записа
Пояснительная записа
Электроосвещение
Электроосвещение
План установки каркаса стен
План установки каркаса стен
Схема кладки печи.
Схема кладки печи.
Конструкции крыши
Конструкции крыши
Конструкции крыши
Конструкции крыши
-13

Конструкции стен злы и детали

Ведомость отделки (указаны площади отделки)
Ведомость отделки (указаны площади отделки)
Узлы цокольной части
Узлы цокольной части

Конструкции каркаса стен.
Конструкции каркаса стен.
План фундамента.
План фундамента.

Несмотря на значительный возраст (1986г), проект остается очень актуальным, т.к. данный формат дачных строений наиболее популярен.

Понравилось - подписывайся на канал!

Вам могут быть так же интересны:

Небольшой домик бруса. Типовой проект из СССР 1987г.

Типовой проект из СССР. Дом 6х6 м со стенами из кирпича

Где скачать проект дома бесплатно?

Типовой проект каркасного одноэтажного садового домика 1986г

Преимущества одноэтажных домов. Типовой проект из СССР.