Добавить в корзинуПозвонить
Найти в Дзене
Мøнøмир 🌒

Ещё один контроллер

Частичная автоматизация квартиры, продолжаем.

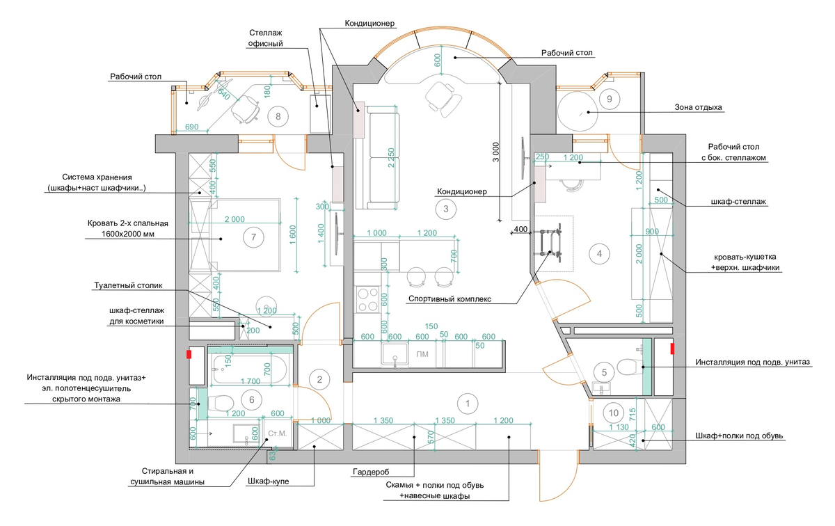
Ранее, в статье "Больше не буду отправлять показания счётчиков" писал о приобретенных контроллерах для частичной автоматизации. И уже после написания этой статьи, понял что я балбес. Расчёт оборудования я проводил на основе старой планировки, когда мы ещё рассматривали два полноценных сан узла. Вместо гостевого и гардероба, изначально думали сделать большой санузел, вместе с душем, из него же и шло водоотведение в кухню. По этим планам и купил. А сейчас расскажу где я ошибся.

-2

Красным, отмечены контроллеры Saures R2, которые куплены ранее. В каждом контроллере 8 портов для подключения устройств. Четыре порта сразу заняты, так как к ним подключается два электрошаровых крана и счётчики для снятия показания. В гостевом санузле всего 3 потребителя: инсталляция, раковина и гигиенический душ. По идее используется два датчика и ещё два остаётся свободными для кухни. Только вот мы всё переделали и водоотведение идёт с основного санузла, а в нём уже датчики выведены на ванну, стиральную машину, раковину и инсталляцию. И как бы всё, порты закончились. -_- Была мысль подключить несколько датчиков, но тогда они нужны без контроля обрыва линии, можно было бы поменять, но опять же в случае протечки я бы не видел какой датчик бьёт тревогу. Ну или можно было бы в кухню подключить через гостевой санузел, система бы забавно работала. В случае протечки, срабатывает оповещение, электрошаровые краны гостевого санузла перекрываются, но вода продолжает течь. xD Я об этом конечно узнаю, но чего толку то?

Именно поэтому решил не заморачиваться и докупить самый простой контроллер Saures R1. К тому же тут чёрная пятница началась и он мне обошелся в 3000 рублей, вместе с доставкой. Он всего на 4 порта, к нему мы подключим счётчики, а на R2 будут подключено 6 датчиков протечки и электрошаровые краны, это нужно, что бы даже без связи, система защиты отработала и устранила аварию.

Кстати данный контроллер можно установить просто для автоматического снятия показаний счётчиков, что бы каждый раз не корячиться, а получать всё на телефон. Ну а если вы проживаете в Москве, то вы ещё и автоматическую передачу показаний сможете настроить.

Как я ранее и думал, всего не предусмотришь...