Добавить в корзинуПозвонить
Найти в Дзене

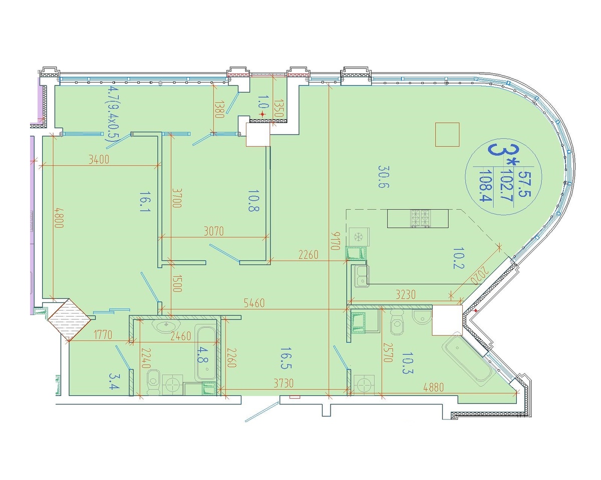
СИК ДЕВЕЛОПМЕНТ-ЮГ, Development Plaza 3-КОМНАТНАЯ СМАРТ 108.4м2

Этаж 7 из 15
Количество комнат 3*
Площадь балкона 2.5м2
Площадь лоджии 9.7м2
Оглавление

Этаж 7 из 15

Количество комнат 3*

Площадь балкона 2.5м2

Площадь лоджии 9.7м2

Площадь кухни 13.7м2

Общая площадь 108.4м2

Жилая площаль 57.5м2

Забронировать квартиру можно по телефону 8(861)218-55-08

ИНФОРМАЦИЯ О ДОМE

15

ЭТАЖЕЙ В ДОМЕ

Г. КРАСНОДАР, УЛ. 40-ЛЕТИЯ ПОБЕДЫ/ УЛ. МОСКОВСКАЯ

ДОСТУПНА ИПОТЕКА И РАССРОЧКА, ОПЛАТА МАТЕРИНСКИМ КАПИТАЛОМ

46% ГОТОВНОСТЬ ДОМА

46% ПРОДАНО КВАРТИР

Перейти на сайт "Девелопмент-Юг"