Добавить в корзинуПозвонить
Найти в Дзене
Владимир Попов

Готовый проект дома от архитектурной студии ProjectBP.ru

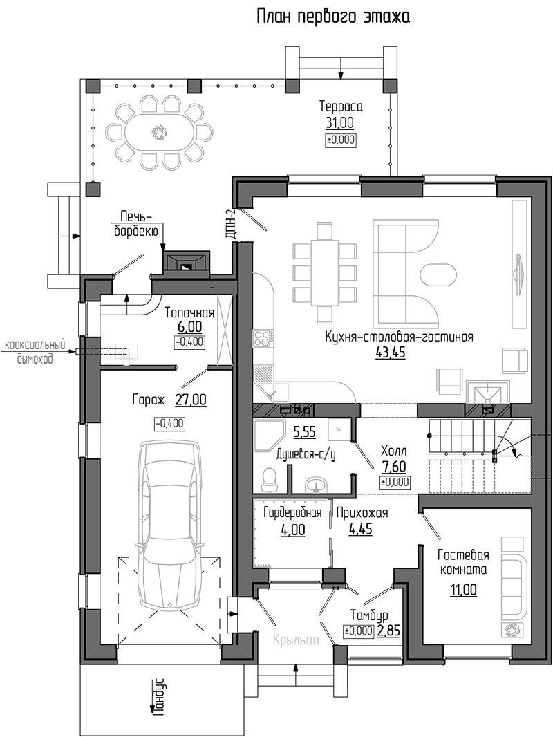
Одна из самых популярных планировок двухэтажного дома проекта B-183. Есть аналогичные проекты с подвалом, с гаражом на два автомобиля и без гаража.
Особенности проекта:
Удобная планировка с четким разделением на комнаты. При входе в дом вы оказываетесь в прихожей с гардеробной откуда можно попасть во все помещения коттеджа.
Объединённая кухня-столовая-гостиная с выходом на террасу.

Одна из самых популярных планировок двухэтажного дома проекта B-183. Есть аналогичные проекты с подвалом, с гаражом на два автомобиля и без гаража.

Особенности проекта:

  • Удобная планировка с четким разделением на комнаты. При входе в дом вы оказываетесь в прихожей с гардеробной откуда можно попасть во все помещения коттеджа.
  • Объединённая кухня-столовая-гостиная с выходом на террасу.
  • Проект украшен просторной террасой с зоной барбекю.
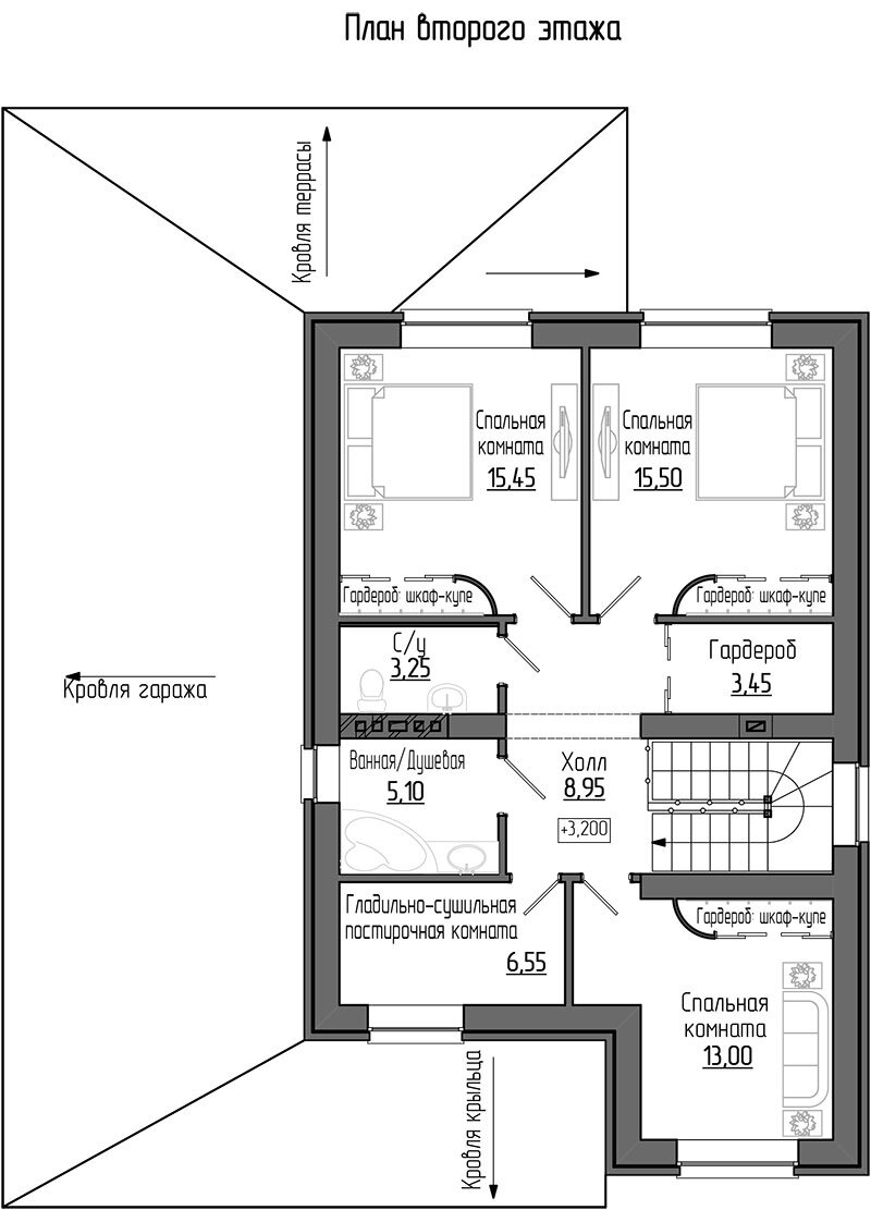
  • На втором этаже предусмотрена постирочная-гладильная для хозяйки дома, которой больше не потребуется бегать с утюгом по всему дому.