Найти в Дзене
Как живут другие

Как семье с ребёнком уместиться в квартире-студии 30 кв.м.? Поделили квартиру перегородкой

Когда-то давно я с мужем и двумя маленькими детьми жили в однокомнатной квартире! Это было хороший опыт, потому что тогда научилась формировать пространство под потребности 4-х человек на очень небольшой площади. Поэтому мне всегда интересно как люди организуют свою жизнь в однокомнатных квартирах или квартирах-студиях. Мы с вами в гостях у Яны в её небольшой квартире.
Оглавление

Всем привет!

Когда-то давно я с мужем и двумя маленькими детьми жили в однокомнатной квартире! Это было хороший опыт, потому что тогда научилась формировать пространство под потребности 4-х человек на очень небольшой площади. Поэтому мне всегда интересно как люди организуют свою жизнь в однокомнатных квартирах или квартирах-студиях.

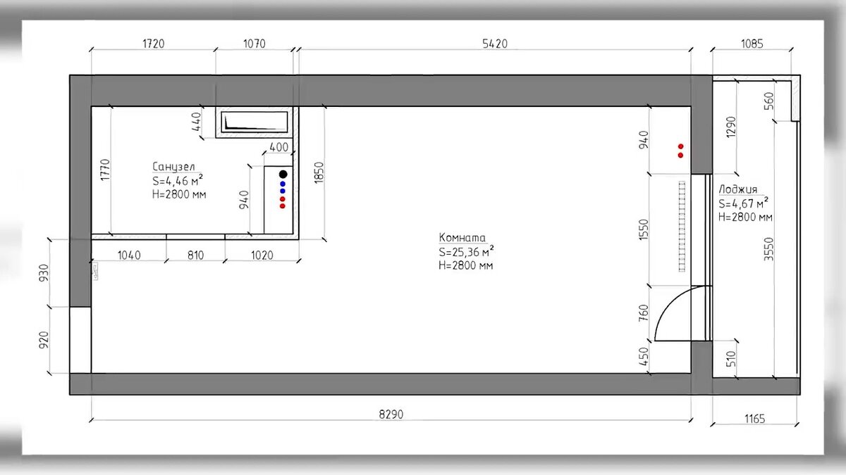
Мы с вами в гостях у Яны в её небольшой квартире, площадь которой 30 кв. м. (с лоджией 34,5 кв. м.).

План квартиры-студии 30 м2 от застройщика
План квартиры-студии 30 м2 от застройщика

Здесь живут три человека — Яна, ее муж и их маленький ребёнок. Квартиру покупали перед рождением ребенка и планируют тут какое-то время, чтобы далее переехать в квартиру побольше. Но тем не менее, Яна осознанно подошла к планированию будущего ремонта и получилась красивая, удобная и продуманная квартира. Давайте смотреть!

Хозяйка Яна на кухне в своей квартире-студии
Хозяйка Яна на кухне в своей квартире-студии

Спальня

Планировку квартиры Яна начала планировать «от окна», то есть сначала занялась спальней. Так как ребята не хотели отказываться от двуспальной кровати, а также нужно было рассчитать размер детской кроватки.

Это очень важный момент в планировке — тут важно учесть толщину батареи, подоконника и карниза для штор, то в какую сторону у вас открывается балконная дверь. Потому что все эти мелочи влияют на эргономику будущего пространства. То есть может получится так, что вы не просчитали толщину батареи и поставив кровать вы не сможете к ней подойти — батарея займет весь проход.

Яна сделала выбор в пользу кровати с подъемным механизмом и не ошиблась! Внутри очень много места для хранения, это практически еще один шкаф, только горизонтальный. Да, этот механизм удорожает стоимость кровати, но он того, стоит, особенно для тех, кто живет в небольших квартирах.

Аккуратно организованное хранение вещей под кроватью
Аккуратно организованное хранение вещей под кроватью

Спальню отделили от кухни межкомнатной перегородкой из матового стекла и металла. Это выкатная конструкция, по сути как две двери, которые выкатываются в направлении друг к другу.

Кухня

Это кухня из Икеа, Яна сразу решила, что она будет именно в сером цвете. Кухня очень компактная.

К сожалению, не получилось установить посудомоечную машину, потому что по нижнему ряду тогда не оставалось секции с ящиками (для столовых приборов).

В целях экономии пространства решили установить духовой шкаф с функцией СВЧ-печи. По истечении некоторого времени Яна поняла, что это не самое лучшее решение, так как такая техника не предусматривает вращение платформы с тарелкой во время работы СВЧ-печи. От этого прогрев не такой, как в обычной микроволновке. К тому же надоедает постоянно наклоняться, чтобы поставить или забрать тарелку.

Предлагаю посмотреть, что внутри шкафов, как хозяйка организовала хранение (листайте карусель):

На кухне хватило место для дивана, пускай и совсем маленького, но тем не менее есть где с комфортом посидеть, выпить кофе или посмотреть телевизор.

Вид на кухню из спальни
Вид на кухню из спальни
Небольшой диван дает возможность отдохнуть посреди будничной рутины
Небольшой диван дает возможность отдохнуть посреди будничной рутины

Коридор

В коридоре Яна здорово придумала обыграть пространство и сделать его максимально функциональным, но визуально простым. Для этого поставили два шкафа по той стене, которая совмещена с санузлом. А чтобы это выглядело как композиция — над дверью санузла повесили еще одну секцию в том же дизайне, что и шкафы.

В том шкафу, который ближе к входной двери хранится верхняя одежда и обувь. А в другом шкафу организован хозблок со стиральной машиной и бытовой химией.

Подписывайтесь на канал, чтобы видеть мои публикации в своей ленте!

До новых встреч!

#перепланировка #дизайн #интерьер #кухня #маленькая квартира