Найти в Дзене
Купольные дома Dome-Dom

Проект купольного дома 60 кв.м по инновационной технологии Dome-Dom

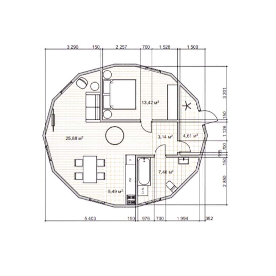
🏡 Это проект дома площадью 60 кв. м.
🏡 Наш заказчик мечтал о просторной гостиной, соединенной со столовой. Поэтому была предложена такая планировка, в которой практически половина площади дома отдана именно под гостиную зону.
🏡 Мы не забыли о комфорте хозяев, предусмотрев уютную спальню, вместительную ванную комнату с полноценной ванной. При необходимости можно еще разместить дополнительную

🏡 Это проект дома площадью 60 кв. м.

🏡 Наш заказчик мечтал о просторной гостиной, соединенной со столовой. Поэтому была предложена такая планировка, в которой практически половина площади дома отдана именно под гостиную зону.

🏡 Мы не забыли о комфорте хозяев, предусмотрев уютную спальню, вместительную ванную комнату с полноценной ванной. При необходимости можно еще разместить дополнительную мебель в купольном доме, камин, огромный телевизор.

🏡 На схеме представлены точные размеры и подробная инженерная информация. Если есть вопросы, готовы ответить – обращайтесь к экспертам Dome-Dom!

Подробнее на нашем сайте:

https://dome-dom.ru/?utm_source=yandex_rsy

Посмотреть и все потрогать руками можно в нашем офисе и шоу-руме по адресу: Московская область, г. Котельники, Дзержинское шоссе, Вл. 7/7, Мега "Белая дача", Выставочный комплекс "Малоэтажная страна".