Найти в Дзене

Проект одноэтажного дома с террасой - 132 кв.м. (3 спальни). Немецкий фахверковый стиль!

Общая площадь 135 кв. м.
Габариты 11.7 x 13.7 м. Ссылка на проект дома 1-232 Проект можно адаптировать под любой вид строительного материала — кирпич, газобетон, керамзитобетон, монолит и керамический блок. Планы этажей На первом этаже дома расположена: просторная гостиная, уютная кухня-столовая с выходом на террасу, три спальни, раздельный санузел и топочная. При этом холл и коридоры занимают минимум пространства. На кухне расположена эргономичная винтовая лестница, ведущая на мансардный этаж. Мансарда – это территория свободного пользования. Здесь Вы можете устроить тренажерный зал или библиотеку, комнату отдыха или кинозал. _____ Если Вас интересует посмотреть другие проекты домов, приглашаем Вас на наш сайт. Или подписывайтесь на наш канал будем радовать Вас новыми интересными проектами.

Общая площадь 135 кв. м.
Габариты 11.7 x 13.7 м.

Ссылка на проект дома 1-232

Проект можно адаптировать под любой вид строительного материала — кирпич, газобетон, керамзитобетон, монолит и керамический блок.

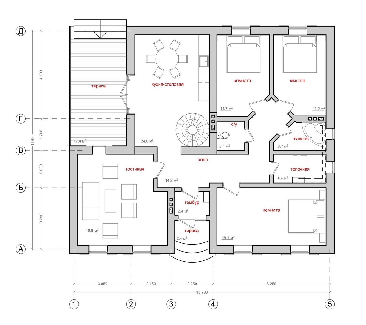
Планы этажей

Первый этаж
Первый этаж
Чердак
Чердак

На первом этаже дома расположена: просторная гостиная, уютная кухня-столовая с выходом на террасу, три спальни, раздельный санузел и топочная. При этом холл и коридоры занимают минимум пространства. На кухне расположена эргономичная винтовая лестница, ведущая на мансардный этаж. Мансарда – это территория свободного пользования. Здесь Вы можете устроить тренажерный зал или библиотеку, комнату отдыха или кинозал.

_____

Если Вас интересует посмотреть другие проекты домов, приглашаем Вас на наш сайт. Или подписывайтесь на наш канал будем радовать Вас новыми интересными проектами.