Добавить в корзинуПозвонить
Найти в Дзене
МонтажЗвукСервис

Шумоизоляция квартиры и дома

Многим владельцам квартир знакома проблема слабой звукоизоляции. Если у кого-то из соседей идет ремонт, бегают дети или празднуется чей-то день рождения, то об этом знают все в радиусе нескольких квартир. Спасением станет дополнительная звукоизоляция квартиры.
О вреде шума
Степень раздражающего действия шума зависит как от его физических параметров (громкостью, частота, повторяемость,
Оглавление

Многим владельцам квартир знакома проблема слабой звукоизоляции. Если у кого-то из соседей идет ремонт, бегают дети или празднуется чей-то день рождения, то об этом знают все в радиусе нескольких квартир. Спасением станет дополнительная звукоизоляция квартиры:

Необходимые мероприятия по звукоизоляции квартиры отличаются в зависимости от типа дома. Используются разные схемы и материалы, также отличается общий объем ограждающих конструкций, которые требуют шумоизоляции. Ниже мы рассмотрим принципы звукоизоляции в самых распространенных домах.

Какие шумы бывают?

Различают три вида шумов, с которыми приходится иметь дело при решении задач звукоизоляции:

  • Воздушный шум – крики, лай собак, телевизор и другие звуковые колебания, распространяющиеся по воздуху;
  • Ударный шум – топот, упавшие предметы, передвижение мебели и другие шумы возникающие при ударах на пол;
  • Структурный шум – движение воды в трубах, работа внутридомовых инженерных систем (лифты, насосы, вентиляция) и другие шумы вибрационного характера.

О вреде шума

Степень раздражающего действия шума зависит как от его физических параметров (громкостью, частота, повторяемость, длительность воздействия), так и от субъективных особенностей конкретного человека.

-2

Наша реакция на шум во многом определяется возрастом, состоянием здоровья, характером деятельности. Негативное действие шума проявляется, в первую очередь, на центральной нервной системе, провоцируя казалось бы беспричинную раздражительность и возникновение неврозов. Со стороны сердечно-сосудистой системы человека наблюдается повышение давления. При хронической подверженности шуму могут развиться гипертоническая и язвенная болезни.

Интересно, что шум с улицы (в первую очередь от автотранспорта), вызывает гораздо меньшее раздражение, чем более слабые звуки из соседних квартир. Это обусловлено психоакустическими особенностями человека.

Нормы шума в многоквартирном доме

В своде строительных правил СП 51.13330.2011 "Защита от шума" регламентируется минимальные значения шумоизоляции в жилом доме. В представленной таблице индексы Rw - звукоизоляция воздушного шума, а Lnw - изоляция ударного шума.

Нормативные значения звукоизоляции для жилого дома
Нормативные значения звукоизоляции для жилого дома

Необходимо особо отметить, что нормы СП не означают полной тишины в квартире, а лишь соответствие действующим санитарным нормам (СН 2.2.4/2.1.8.562-96), которые регламентируют допустимые уровни проникающего в квартиру шума для дневного и ночного времени суток:

Допустимые уровня шума в квартире в дневное и ночное время
Допустимые уровня шума в квартире в дневное и ночное время

По нашему опыту, говорить о реальном акустическом комфорте можно начиная со звукоизоляции Rw=60 дБ между двумя квартирами, что на 6 дБ выше самых строгих норм, и Rw=52 дБ для шумоизоляции межкомнатных стен, что также на 5 дБ выше самых жестких для этого случая норм СП!

Как шум передается по дому?

Шум проникает из одного помещения дома в другое не только через общую ограждающую конструкцию, но и через двери, систему вентиляции, по стоякам отопления и другим примыкающим строительным конструкциям.

В связи с этим по способу распространения шума в доме разделяют прямую и косвенную передачу:

  • Прямая передача – прохождение звука из одного помещения в другое непосредственно через смежную стену (или перекрытие);
  • Косвенная передача – распространяется шума от источника в соседние помещения по примыкающим к основному ограждению строительным конструкциям дома (говоря проще, в обход).

Воздушные шумы передаются напрямую, поэтому звукоизоляция такого шума определяется материалом и толщиной общей с соседями стены или перекрытия. Ударные и структурные шумы помимо передачи напрямую имеют еще и существенную косвенную составляющую, поскольку распространяются в виде вибраций по каркасу здания.

Косвенная передача существенно увеличивает радиус распространения шума, так, например, бегающих детей может быть слышно через 2-4 этажа, а шум перфоратора слышен во всем доме без исключения!

Шум инженерного оборудования дома (насосы, кондиционеры, лифты, вентиляторы и т.п.) мешает, как правило, жителям первых и последних этажей дома.

Звукоизоляция квартиры от соседей

Звукоизоляция квартиры может выполняться превентивно или "по факту":

  • Превентивная звукоизоляция – выполняется, когда конкретных источники шума неизвестны: например, квартира в новостройке;
  • Звукоизоляция по факту – случай, когда имеются явные источники шума: соседи сверху или за стенкой, лифт и другие.

Необходимые мероприятия по звукоизоляции квартиры определяются, в первую очередь, источником шума. Наиболее часто беспокойство доставляют:

  • ударный шум (топот, падающие предметы) из квартиры сверху (иногда сбоку);
  • воздушный шум (голоса, музыкальные центры и TV, лай собак) из смежных квартир;
  • внутренние шумы между помещениями внутри квартиры (в т.ч. шумоизоляция с/у);
  • инженерное оборудование (отопительные системы, водопроводы, системы кондиционирования, лифты);
  • шум с улицы.

Задача инженера-акустика состоит в оптимальной звукоизоляции для каждого конкретного случая, учитывая, при этом, пожелания клиента.

Как сделать шумоизоляцию в квартире?

В основе любых схем шумоизоляции лежит механизм многократных переотражений звуковой волны между поверхностями с разными волновыми сопротивлениями. Многослойная структура обеспечивает высокое поглощение звука при относительно небольших толщинах композитной звукоизоляционной системы.

Наиболее эффективную звукоизоляцию дают конструкции, в которых обычные строительные листовые материалы (ГКЛ, фанера) комбинируются со специальным звукоизоляционными материалами. Выполняется описанный выше принцип многослойности: твердые слои (отражающие звук) чередуются с мягкими (поглощающими звук).

Все схемы звукоизоляции можно разделить на каркасные и бескаркасные: у первых основой является металлический профиль к которому, подобно конструктору, крепятся все остальные слои, вторые - готовые к монтажу многослойные панели.

Каркасные облицовки на основе звукоизолирующих креплений, гипсокартона и акустических минплит позволяют одновременно решать проблему защиты от шума, выравнивать поверхность стен и потолка и позволяют навешивать на облицовки стен тяжелые элементы интерьера.

Бескаркасная звукоизоляция квартиры - это готовые сэндвич панели (например ЗИПС). Большинству панелей необходимо предварительное выравнивание поверхности, что является существенным недостатком по сравнению с каркасными системами. Да и совокупным затратам, шумоизоляция без каркаса, как правило, выходит дороже, поэтому на практике используется реже.

Получаемое в результате снижение шума зависит от толщины конструкции и применяемых материалов. Звукоизоляция, которая работает, начинается с тонких схем 5 см, максимальные варианты для квартир займут уже 11-12 см.

-8

Нужно учитывать тип дома в котором находится квартира. В зависимости от материала стен и перекрытий, их толщины, будут различается и необходимые меры для устранения проникающих шумов.

Звукоизоляция в панельном доме

Железобетон, который используется при постройке панельного дома, является отличным проводником звука. Поэтому в панельных домах звуки легко проникают сквозь стены и перекрытия из квартиры в квартиру.

В панельном доме стены выполнены из бетонных панелей 140-160 мм, а перекрытия из монолитных ж/б плит 120-140 мм или круглопустотных 220 мм. Таким образом масса перекрытий и стен оказывается примерно равной, что приводит к значительной косвенной передаче шума.

Сделать эффективную звукоизоляцию квартиры в панельном доме можно реализовав концепцию "коробка в коробке" - изоляцию всех поверхностей комнаты. На нашей практике встречались случаи, когда шум сверху передавался даже на пол нижерасположенной квартиры!

Кроме того, в бетонном доме, вследствие подвижек строительных конструкций относительно друг друга, всегда присутствуют щели и трещины на стыках примыкания панелей. Такие дефекты (иногда скрытые) заметно снижают звукоизоляцию и должны быть устранены. Хорошо помогает применение нетвердеющего силиконового герметика, который обеспечивает герметичность стыка.

Звукоизоляция в кирпичном доме

В кирпичном доме, например "сталинке", причин низкой звукоизоляции может быть больше. В старом, давно построенном здании, очень трудно определить точно каналы распространения шума. Это связано с тем, что как правило отсутствуют чертежи, да и дома со временем дают осадку и появляются микротрещины и неплотности. В этом случае необходимо анализировать конструкцию дома в целом и перекрытия/стены квартиры в частности.

При этом, несомненное преимущество таких домов в том, что построены они из кирпича. Тяжелые стены с прослойками кладочной смеси (песка с цементом) между кирпичами эффективно задерживают шум. Волны звука, проходя сквозь различные материалы конструкции, встречает разное волновое сопротивление - это приводит к потерям акустической мощности.

Слабым местом по шумоизоляции в кирпичном доме в большинстве случаев оказываются перекрытия. Они могут быть выполнены из ж/б плит, быть деревянными или смешанными, но, в любом случае, требуют дополнительной шумоизоляции.

Радиаторы и стояки

Вертикальные стояки отопления в панельных и кирпичных домах довольно эффективно передают звуки (особенно высокой эффективности) из квартиры в квартиру.

По трубам распространяется средне- и высокочастотная составляющая шума, которая переизлучается в комнату батареей. В этом легко убедиться, приблизив голову к радиатору: вы услышите голоса из квартир сверху и снизу, и даже через этаж. При этом легкие алюминиевые радиаторы излучают больше шума, а тяжелые чугунные меньше.

Звукоизоляция монолитного дома

Монолитные дома состоят из несущей основы здания (ж/б перекрытия 180-250 мм и стены/колонны) и стен из легкого бетона, кирпича или гипсовых блоков (легких по сравнению с перекрытиями).

Межквартирные стены из пено- газоблока обязательно следует оштукатурить, по возможности, с обеих сторон. Разница в звукоизоляции для стены из газоблока со штукатуркой и без может составлять 4-7 дБ. Прирост связан с увеличением массы стены, также штукатурка исключает дефекты кладки (щели, трещины) и закрывает пористую поверхность пенобетона, устраняя воздухопроницаемость.

Конструкции из монолитного бетона обеспечивают большую шумоизоляцию, по сравнению с перегородками из пеноблоков. Однако из-за высокой жесткости бетона по монолитным строениям без затухания распространяются структурные и ударные шумы.

Вторым вредным фактором являются стены и перегородки из легких блоков (пазогребень, пено-, газобетон). Из-за малой массы (всего 40 кг/м2 при толщине 100 мм) шум с массивных межэтажных перекрытий (300-500 кг/м2) легко передается на такие перегородки и хорошо переизлучается ими в помещение. Таким образом, звуки из квартир сверху и снизу будут гораздо лучше проникать в вашу квартиру через указанные перегородки (своего рода ретрансляторы), чем непосредственно через перекрытия.

Поэтому, если вас беспокоит шум сверху, шумоизоляции потолка в монолитном доме будет недостаточно, поскольку присутствует очень сильная косвенная передача звука по стенам.

При этом, в отличие от панельного дома, внутренние стены из блоков в монолитном доме не являются несущими, поэтому вместо дополнительной изоляции их можно снести и заместо них возвести специальные "тихие" перегородки со звукоизоляцией. При невозможности демонтажа необходимо, как минимум, выполнить разрыв между верхней кромкой внутренних перегородок и перекрытием потолка, заполнив его звукопоглощающими плитами и виброакустическим герметиком по краям.

Указанный метод применим только к межкомнатным перегородкам. Наружные и межквартирные стены монолитного дома необходимо дополнительно звукоизолировать.

Миф о тонкой звукоизоляции

В быту широко распространен миф о возможности тонкой шумоизоляции толщиной 2-3 см (иногда даже встречаются цифры в несколько миллиметров). Применяя любые тонкие материалы мы гарантировано получает усилитель шума, а не изолятор, поскольку резонансная частота такой конструкции лежит в области 250-450 Гц, т.е. в самом критичном для человеческого уха диапазоне. На этих частотах, согласно законам физики, будет наблюдаться провал звукоизоляции.

Современные материалы для шумоизоляции квартиры

-9

Полная или частичная шумоизоляция квартиры

Звукоизоляция квартиры может проводиться целиком, либо частично. Полная изоляция всего периметра квартиры дает наибольшую прибавку децибел, однако необходимость в такой кардинальной мере возникает нечасто.

Концепция частичной звукоизоляции квартиры подразумевает дополнительную изоляцию наиболее уязвимых мест, за которыми непосредственно находятся соседи. В этом варианте выполняется шумоизоляция пола, потолка, а также межквартирных стен. В большинстве случаев такое решение оказывается оптимальным с точки зрения сохранности бюджета и разумно-достаточной шумоизоляции вашего дома.

Хорошей идеей будет разделить квартиру на разные шумовые зоны: в жилых комнатах, где мы спим, выполнить усиленные схемы, а в остальной части квартиры сделать звукоизоляцию попроще.

Последовательность монтажа звукоизоляции

Часто возникает вопрос очередности работ в квартире: что делать раньше звукоизоляцию стен, потолка или пола? Если речь про квартиру в новостройке, то логичнее всего начать со звукоизоляции пола, поскольку типовая схема "плавающего" пола подразумевает устройство пескобетонной стяжки, а значит, повышенную влажность.

После полного высыхания стяжки (~2 недели) можно переходить к монтажу шумозащитных облицовок потолка и стен. Какую последовательность выбрать "потолок -> стены" или "стены -> потолок"? Обе последовательности эффективны, но с некоторыми особенностями.

Если главная задача уменьшить шум от соседа сверху, то лучше сначала выполнить звукоизоляцию потолка, а после примыкание к нему перегородок и стен. Второй вариант обладает более высокой "горизонтальной" изоляцией шума между смежными комнатами (или квартирами), но меньшей эффективностью от шума сверху.

Разница в изоляции ударного шума сверху составляет 5-10 дБ и, в некоторых случаях, может быть критичной!

Цены на звукоизоляцию квартиры

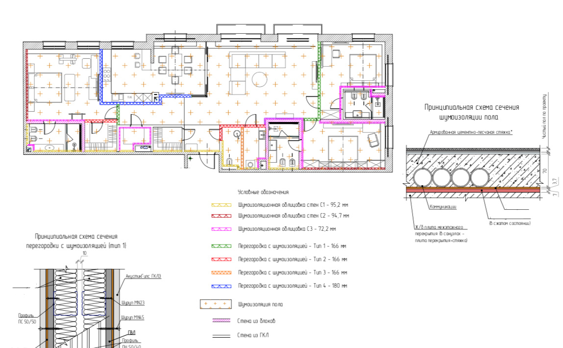
Стоимость звукоизоляции квартиры может сильно различаться в зависимости от планировки (расположение комнат, количество общих стен с соседями и т.д.), а также от того делаем ли мы комплексную звукоизоляцию или частичную. Если шумоизолировать квартиру целиком (новостройка или вторичка с капремонтом), то ориентироваться можно на 7-10 т.р. за квадратный метр за материалы и работы. В цену входит шумоизоляция пол и потолка по всей площади квартиры, стен с соседями + каркасно-обшивные межкомнатные перегородки с шумоизоляциляцией.

Если рассматривать частичную шумоизоляцию квартиры и делать что-то отдельно, то цены "под ключ" на популярные схемы из альбома типовых звукоизолирующих конструкций будут такими:

  • пол 2000-2500 руб./м2
  • стены 2800-4000 руб./м2
  • потолок 3600-5000 руб./м2
  • перегородки 3500-4500 руб./м2

Что нужно учитывать для принятия решения

  1. При выборе материала под стяжку лучше основываться не на картинках и описания в интернете, а на проведенных измерениях уровня пола в квартире (расстояние до входной двери, перепады по полу). Не редки случаи когда клиент просит уложить какой-то конкретный материал, составляется смета, а после замеров оказывается что стяжка с данной шумоизоляцией не пролезает по толщине или наоборот: клиент считает, что ему подойдет только самая тонкая подложка 4 мм, а оказывается, что места хватает и на более эффективный вариант. Звукоизоляции пола у нас посвящена отдельная статья, где мы подробно разбираем возможные варианты.
  2. Стяжка в квартире выполняется в любом случае, поэтому фактически из всей суммы вы доплачиваете только за саму звукоизоляцию (300-500 руб./м2) и за ее раскладку (300-400 руб./м2). Сложите и умножьте на площадь квартиры, получится не такая большая сумма за ваше спокойствие. И если звукоизоляцию потолка или стен можно выполнить и в условиях готового ремонта, то в случае с полом материалы укладываются строго под стяжку - после заливки котороой уже ничего нельзя будет предпринять.
  3. После монтажа звукоизолирующих конструкций стен или потолка получаются ровные поверхности, поэтому там где делается звукоизоляцию, помимо снижения шума получаем экономию на выравнивании (не нужно шпаклевать или использовать натяжные потолки). Посчитайте стоимость мешков смеси, их доставки/подъема и цену на работы по черновой отделке - на этом вы экономите. Делая шумоизоляцию, клиенты также экономят на штроблении под электрику, поскольку штробы не нужны - элекропроводка просто разводится внутри каркаса и выводится в нужных местах.

В рамках статьи невозможно рассказать обо всех аспектах шумоизоляции квартиры. Если рассмотренная проблема с шумом актуальна для вас, задавайте вопросы, подскажем более предметно!

Источники: https://acousticdom.ru/poleznoe/shumoizolyaciya-kvartiry/

https://acousticdom.ru/poleznoe/zvukoizolyaciya-doma/