Z397 Проект двухэтажного дома в стиле кубизм, подходит для строительства на узком участке
22 октября 202022 окт 2020
995
~1 мин
Уникальный дизайн привлечет внимание всех прохожих. Выбор такого дома говорит об изумительном вкусе застройщика.
Для отделки фасада используется 3 цвета. Каждый из накладывающихся друг на друга кубов отделан другим материалом.
Уникальный дизайн привлечет внимание всех прохожих. Выбор такого дома говорит об изумительном вкусе застройщика.
Для отделки фасада используется 3 цвета. Каждый из накладывающихся друг на друга кубов отделан другим материалом.
...Читать далее
Z397 представляет собой проект двухэтажного дома в стиле кубизм, подходит для строительства на узком участке. Уникальный дизайн привлечет внимание всех прохожих. Выбор такого дома говорит об изумительном вкусе застройщика.
Преимущества проекта Z397:
Для отделки фасада используется 3 цвета. Каждый из накладывающихся друг на друга кубов отделан другим материалом. Для отделки применяются дерево, серая и белая штукатурка. Чтобы придать строению некой легкости, было решено применить стеклянные перила.
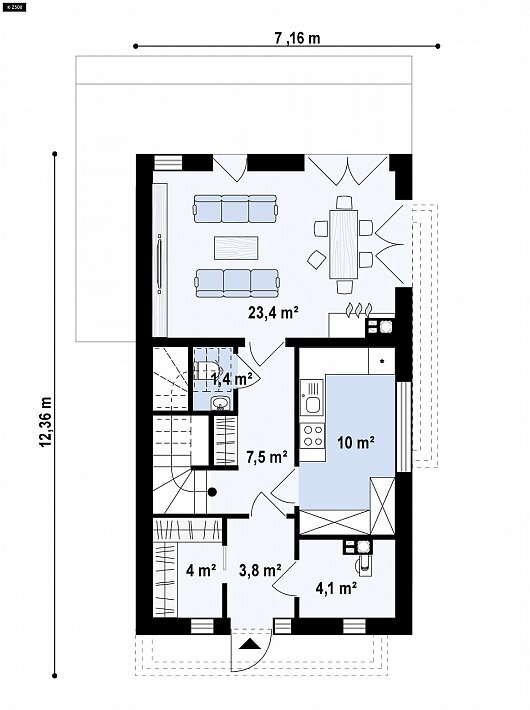
Зоны четко разграничены по этажам: первый - дневная зона, второй - зона сна.
Освещают гостиную, объединенную с обеденной зоной, большие раздвижные стеклянные двери, ведущие на террасу.
Если участок слишком узок, возвести здание можно максимально близко к участку соседа. Этому способствует отсутствие остекления на одном из фасадов.
Проект Z397 является прекрасным примером того, как выглядит современный дом.